Obiekt na sprzedaż
85 000 zł
34 m2







1 / 7
Szczegóły ogłoszenia
- Symbol oferty BAJ-BS-6571
- Typ oferty obiekt na sprzedaż
- Cena 85 000 zł
- Charakterystyka mieszkania 33.6 m2
- Budynek rok budowy: 2020
- Media Prąd: jest
- Dojazd asfalt
Lokalizacja
- Adres kujawsko-pomorskie, Grudziądz, Tuszewo
Opis nieruchomości
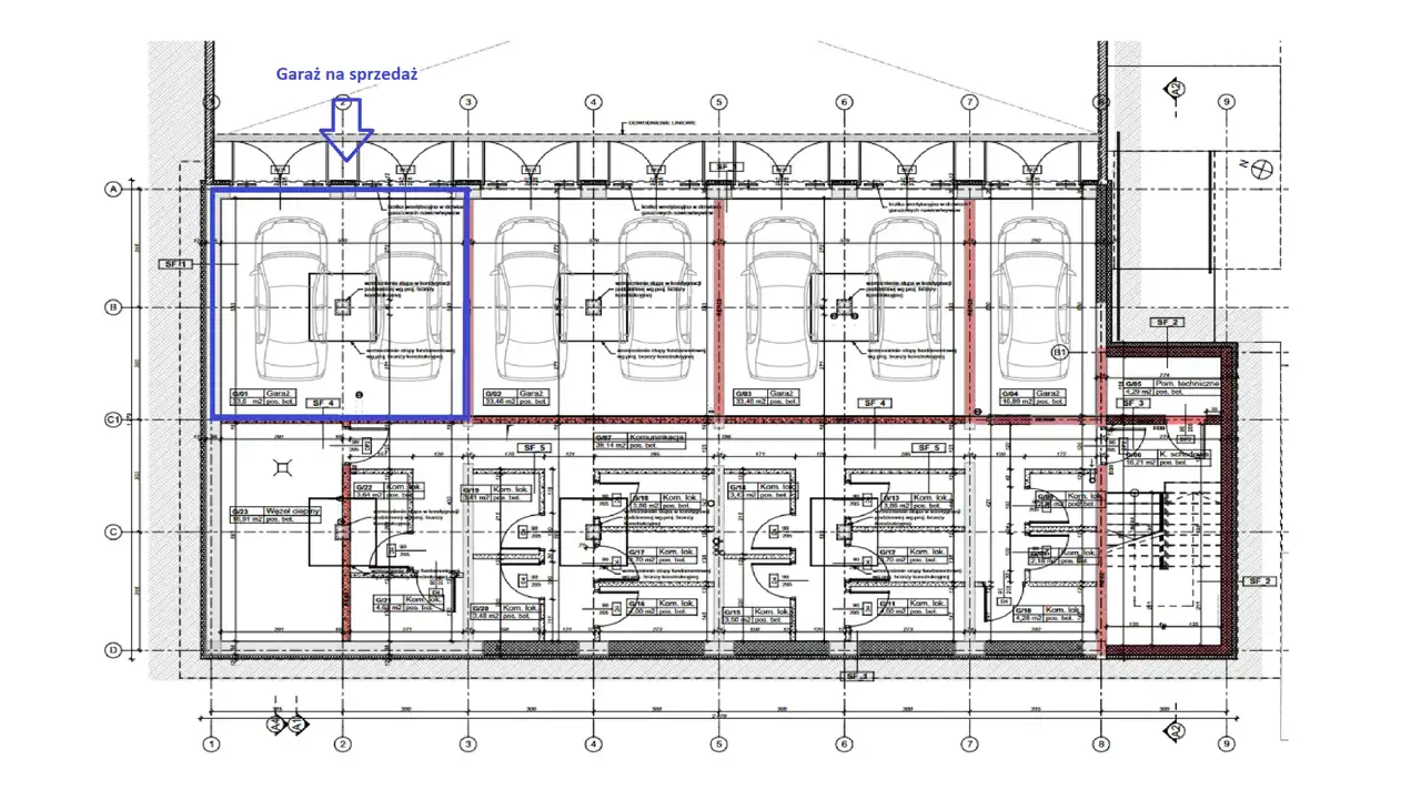
Biuro nieruchomości BAJ HOME posiada w swojej ofercie sprzedaży garaż, znajdujący się przy ulicy Lipowej 35A w Grudziądzu. Zlokalizowany jest on na parterze nowego bloku mieszkalnego. Powierzchnia garażu dwustanowiskowego wynosi 33,60 m2.
Garaż posiada ściany pomalowane na biało i zainstalowano w nim oświetlenie. W garażu zamontowane są 2 uchylne bramy wjazdowe. Wysoki standard nieruchomości potwierdza również fakt, że teren bloku jest dodatkowo ogrodzony wraz z elektrycznie sterowaną na pilota bramą. Wnętrze oferowanej do najmu nieruchomości jest ciepłe, dzięki ogrzewanym mieszkaniom, znajdującym się bezpośrednio nad garażem. Plan nieruchomości ukazany jest w załączonym slajdzie.
Opłata eksploatacyjna do zarządcy 102,48 zł/m-c.
Oferta na wyłączność biura BAJ HOME.
Warunkiem wprowadzenia na teren nieruchomości celem dokonania jej prezentacji jest uzyskanie statusu klienta Poszukującego poprzez podpisanie Karty Zamawiającego - dokumentu potwierdzającego prezentację nieruchomości przez pośrednika oraz określającego wysokość wynagrodzenia prowizyjnego wyłącznie w przypadku zakupu prezentowanej nieruchomości. Podanie danych jest dobrowolne, lecz niezbędne do realizacji usługi.
Zapraszamy na prezentację, oferując rzetelną i profesjonalną opiekę nad całością transakcji przeprowadzonej w bezpieczny sposób przez licencjonowanego Pośrednika. Nr licencji zawodowej 22219. .
Garaż posiada ściany pomalowane na biało i zainstalowano w nim oświetlenie. W garażu zamontowane są 2 uchylne bramy wjazdowe. Wysoki standard nieruchomości potwierdza również fakt, że teren bloku jest dodatkowo ogrodzony wraz z elektrycznie sterowaną na pilota bramą. Wnętrze oferowanej do najmu nieruchomości jest ciepłe, dzięki ogrzewanym mieszkaniom, znajdującym się bezpośrednio nad garażem. Plan nieruchomości ukazany jest w załączonym slajdzie.
Opłata eksploatacyjna do zarządcy 102,48 zł/m-c.
Oferta na wyłączność biura BAJ HOME.
Warunkiem wprowadzenia na teren nieruchomości celem dokonania jej prezentacji jest uzyskanie statusu klienta Poszukującego poprzez podpisanie Karty Zamawiającego - dokumentu potwierdzającego prezentację nieruchomości przez pośrednika oraz określającego wysokość wynagrodzenia prowizyjnego wyłącznie w przypadku zakupu prezentowanej nieruchomości. Podanie danych jest dobrowolne, lecz niezbędne do realizacji usługi.
Zapraszamy na prezentację, oferując rzetelną i profesjonalną opiekę nad całością transakcji przeprowadzonej w bezpieczny sposób przez licencjonowanego Pośrednika. Nr licencji zawodowej 22219. .
Nota prawna
Opis oferty zawarty na stronie internetowej sporządzany jest na podstawie oględzin nieruchomości oraz informacji uzyskanych od właściciela, może podlegać aktualizacji i nie stanowi oferty określonej w art. 66 i następnych K.C.
Kalkulator kredytowy
Formularz kontaktowy