Mieszkanie na sprzedaż
















Szczegóły ogłoszenia
- Symbol oferty PNA-MS-2326
- Typ oferty mieszkanie na sprzedaż
- Cena 235 000 zł
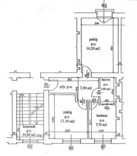
- Charakterystyka mieszkania 47.8 m2, 2 pokoje
- Budynek blok
- Rozkład mieszkania 2p piętro
- Media Ogrzewanie: C.O. miejskie; Woda: ciepła - piecyk gazowy; Gaz: jest
- Balkon drzwi balkonowe
- Dojazd ASFALTOWA
- Instalacje niewymienione
- Okna stare drewniane
- Otoczenie park
- Stan lokalu do generalnego remontu
- Technologia budowlana cegła
- Umeblowanie puste
Lokalizacja
- Adres kujawsko-pomorskie, Inowrocław
Opis nieruchomości
Zapraszam pomysłowe, przedsiębiorcze i operatywne osoby poszukujące wnętrz do zaprojektowania według własnej aranżacji w nowej dobrej cenie 235.000 zł.
Na sprzedaż mieszkanie o powierzchni 48,70 m2 położone na 2 piętrze na Osiedlu Nowym w bliskim sąsiedztwie Parku Solankowego. Lokal mieszkalny rozkładowy, dwustronny z wystawą okien wschód-zachód.
Mieszkanie składa się z 2 pokoi o pow. 16,20 m2, 13,10 m2; dużej, jasnej kuchni o pow. 7,70 m2, łazienki z WC- 3,40 m2 oraz przedpokoju - 7,40 m2. Drzwi balkonowe - tzw.balkon francuski.
Standard wykończenia: podłogi wyłożone parkietem i panelami, ściany pokryte tapetą. Podgrzewacz gazowy wody (niskie rachunki za wodę ciepłą). Okna PCV i drewniane.
Podstawowe atuty mieszkania: bardzo dobra lokalizacja, niskie koszty utrzymania mieszkania. Czynsz administracyjny w kwocie ok.600 zł na m-c (w tym fundusz remontowy, woda zimna, śmieci oraz prąd.) Brak podzielników na grzejnikach, zwroty za CO w rozliczeniu rocznym.
Świetna lokalizacja, w pobliżu Park Solankowy, Szkoła Podstawowa, Przedszkole, markety Biedronka i Delikatesy, apteka, Przychodnia, kościół, plac zabaw, przystanki MPK.
Budynek z cegły, docieplony po termoizolacji. Odnowiona i czysta klatka schodowa.
Mieszkanie wyodrębnione z gruntem, bez obciążeń. Szybka dostępność mieszkania dla Nowego Nabywcy ! Dla zdecydowanego Klienta cena podlega negocjacji ! Klucze w biurze!
OFERTA na WYŁĄCZNOŚĆ Biura PERFEKT Nieruchomości.