Mieszkanie na sprzedaż
748 680 zł
101 m2





1 / 5
Szczegóły ogłoszenia
- Symbol oferty PAC-MS-9348
- Typ oferty mieszkanie na sprzedaż
- Cena 748 680 zł
- Charakterystyka mieszkania 100.7 m2, 4 pokoje
- Budynek nowe budownictwo; rok budowy: 2024
- Rozkład mieszkania 1p piętro
- Media Ogrzewanie: C.O. GAZOWE; Woda: jest; Gaz: jest
- Balkon jest
- Dojazd ASFALTOWA
- Garaż miejsce postojowe
- Ilość sypialni 3
- Instalacje nowe
- Okna PCV 3 szyby, ciepły montaż
- Otoczenie działki niezabudowane
- Stan lokalu deweloperski
- Taras taras duży
- Technologia budowlana tradycyjna
Lokalizacja
- Adres małopolskie, Iwanowice, Zalesie
Opis nieruchomości
OSTATNIE 2 WOLNE MIESZKANIA!!!
Do sprzedania czteropokojowe mieszkanie zlokalizowane na 1 piętrze w miejscowości Zalesie gm. Iwanowice. Mieszkanie o pow. 100,70m2. Do mieszkania przynależy taras + 2 balkony o łącznej powierzchni 46m2. Osiedle kameralne, oświetlone. Nieruchomość położona w spokojnej części miejscowości, wokół dużo zieleni.
Media: prąd, woda, gaz, przydomowa oczyszczalnia ścieków
Mieszkanie sprzedawane w stanie deweloperskim obejmującym:
- fundamenty – ława fundamentowa beton B25,
- ściany zewnętrzne żelbetowe gr. 18cm, porotherm/beton komórkowy,
- strop parteru: beton; stropy nad parterem żelbetowe,
- posadzki: wylewki cementowe dylatowane,
- dach: blacha płaska na rąbek,
- okna PCV kolor od wewnątrz biały, od zewnątrz szary,
- drzwi wejściowe stalowe firmy MAR-TOM,
- ściany zewnętrzne: tynk sylikonowy / sylikatowy typu baranek,
- balustrady na balkonach: szklane, słupki metalowe,
- ogrzewanie podłogowe,
- opaska, taras; podjazd i podejścia: kostka brukowa,
- ogródek,
- instalacje: wod-kan, C.O. gazowe, elektryczne,
- piec gazowy dwufunkcyjny,
- oświetlenie terenu – wysokie lampy oświetlające teren drogowy,
- podjazd oraz miejsca postojowe płyty ażurowe,
- chodnik kostka brukowa.
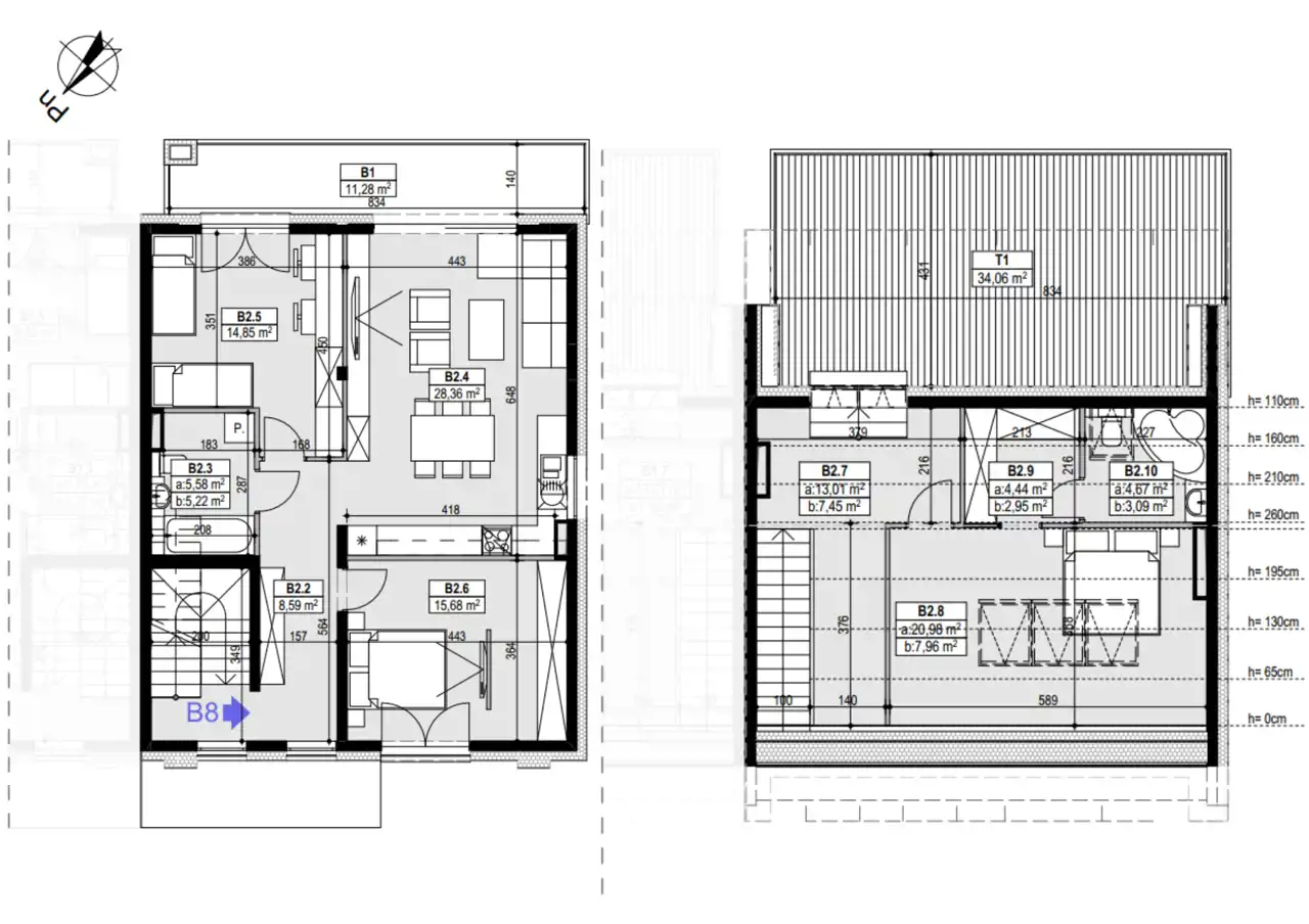
1 piętro: klatka schodowa (6,55m2), korytarz (8,59m2), łazienka (5,22m2), pokój z aneksem kuchennym (28,36m2), pokój (14,85m2), pokój (15,68m2)
Poddasze: korytarz (7,45m2), pokój (7,96m2), garderoba (2,95m2), łazienka (3,09m2)
LOKALIZACJA
Dogodna lokalizacja z dala od miejskiego zgiełku w połączeniu z szybką komunikacją z Krakowem (ok. 15km do granic miasta). W niedalekiej odległości (300m2) od inwestycji znajduje się Las w Goszczy oraz Las Zaleski.
Cena: 748.680 zł
Dodatkowo do mieszkania przynależą 2 miejsca postojowe w cenie 40.000 zł
Serdecznie polecamy i zachęcamy do bezpłatnej prezentacji !!! Więcej podobnych ofert na naszej stronie www.pacanowscy.pl Kontakt do opiekuna oferty: 500-813-213 Tomasz Turek
Nota prawna
Opis oferty zawarty na stronie internetowej sporządzany jest na podstawie oględzin nieruchomości oraz informacji uzyskanych od właściciela, może podlegać aktualizacji i nie stanowi oferty określonej w art. 66 i następnych K.C.
Kalkulator kredytowy
Formularz kontaktowy