Hala na sprzedaż










































Szczegóły ogłoszenia
- Symbol oferty 2M2-HS-205
- Typ oferty hala na sprzedaż
- Cena 599 000 zł
- Charakterystyka mieszkania 400 m2
- Budynek rok budowy: 1980
- Media Ogrzewanie: centralne
- Działka Zagospodarowana, płaska, kwadrat
- Liczba kondygnacji 1
- Otoczenie działki zabudowane
Lokalizacja
- Adres podkarpackie, Iwierzyce, Sielec
Opis nieruchomości
Informacje podstawowe
-
Powierzchnia działki: 42,23 ar
-
Powierzchnia użytkowa budynku: ok. 360 m²
-
Powierzchnia zabudowy: ok. 400 m²
-
Budynek z lat 80.
-
Pełna własność, brak obciążeń
Budynek
Budynek produkcyjno-usługowy wykonany w technologii murowanej, z konstrukcją i poszyciem dachu stalowym. Obiekt w dobrym stanie technicznym, przygotowany do dalszej eksploatacji bez konieczności natychmiastowych nakładów.
-
Wysokość pomieszczeń: 3,8 m
-
Dach w dobrej kondycji
-
Ogrzewanie centralne z pieca SAS
W budynku znajduje się duży piec przemysłowy o wymiarach 3 × 3 m i wysokości 3 m, wykorzystywany wcześniej do wypieku chleba. Istnieje możliwość jego dalszego wykorzystania lub adaptacji do innych procesów technologicznych.
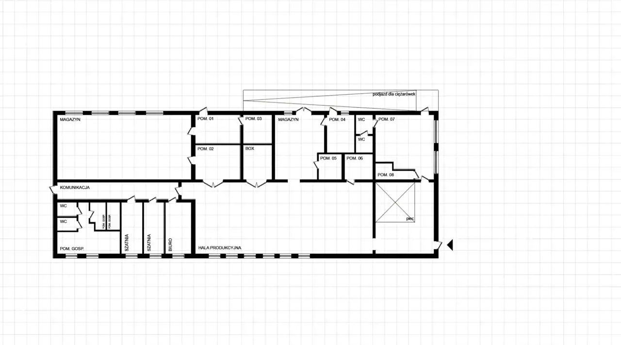
Rozkład nieruchomości:
- budynek administracyjny
- waga manualna towarowa
- studnia
- kładka rozładowawcza
- utwardzony plac manewrowy
- budynek produkcyjno-usługowy
Rozkład budynku:
- piec przemysłowy 3x3x3m
- piec SAS (ogrzewanie centralne)
- 16 pomieszczeń
- 1 hala produkcyjna
- 2 magazyny
- 4 wc
Media
-
Prąd – podłączony, sprawny
-
Kanalizacja – podłączona do sieci
-
Woda – z własnej studni zlokalizowanej na działce (woda źródlana bardzo dobrej jakości)
-
Gaz – działce sąsiedniej
Dodatkowa infrastruktura
Na terenie nieruchomości znajduje się:
-
Waga towarowa manualna o udźwigu do 40 ton
-
Budynek administracyjny:
-
konstrukcja murowana
-
powierzchnia zabudowy ok. 10 m²
-
Działka i dojazd
-
Utwardzony plac manewrowy, przystosowany do obsługi transportu ciężkiego
-
Kładka rozładunkowa dla samochodów ciężarowych
-
Ostatnie 29 m drogi dojazdowej na podstawie służebności
Lokalizacja
-
Odległość od centrum Sędziszowa Małopolskiego – ok. 4,5 km
-
Bardzo dobra ekspozycja i dostępność komunikacyjna
-
Lokalizacja sprzyjająca działalności przemysłowej, logistycznej i magazynowej
Przeznaczenie
Nieruchomość idealnie nadaje się pod:
-
działalność produkcyjną
-
magazynowanie
-
usługi
-
logistykę i dystrybucję
- zaplecze techniczne lub przemysłowe
Informacje dodatkowe
- cała działka widoczna jest na rzucie z wymiarami, granice działki wychodzą poza bramy
Nie czekaj – ta oferta może być Twoją szansą na zamieszkanie w tym miejscu.
Zapraszamy do kontaktu!
Agent prowadzący: Dawid Więcek