Mieszkanie na sprzedaż












Szczegóły ogłoszenia
- Symbol oferty BS5-MS-305752
- Typ oferty mieszkanie na sprzedaż
- Cena 449 000 zł
- Charakterystyka mieszkania 55.9 m2, 2 pokoje
- Budynek bliźniak; rok budowy: 2025
- Rozkład mieszkania poddasze piętro
- Media Ogrzewanie: pompa ciepła; Woda: tak - własna
- Balkon taras
- Dojazd asfalt
- Ilość sypialni 1
- Instalacje nowe
- Okna PCV 3 szyby, ciepły montaż
- Otoczenie zabudowa jednorodzinna
- Stan lokalu deweloperski
- Taras taras mały
- Technologia budowlana ceramiczny porotherm
Lokalizacja
- Adres małopolskie, nowotarski, Jabłonka
Opis nieruchomości
Mieszkanie z panoramicznym widokiem na całe pasmo Tatry
Oferujemy do sprzedaży 2–pokojowe mieszkanie w stanie deweloperskim o pow. 55,90 m2, zlokalizowane w malowniczej Jabłonce, na kameralnym „Osiedlu pod Magurą” – inwestycji składającej się z 3 domów w zabudowie bliźniaczej (w sumie oferującej 12 lokali mieszkalnych)
Oferta stanowi doskonałą inwestycję zarówno z myślą o zamieszkaniu w uroczym miejscu jak i o ulokowaniu gotówki i czerpaniu zysków z najmu.
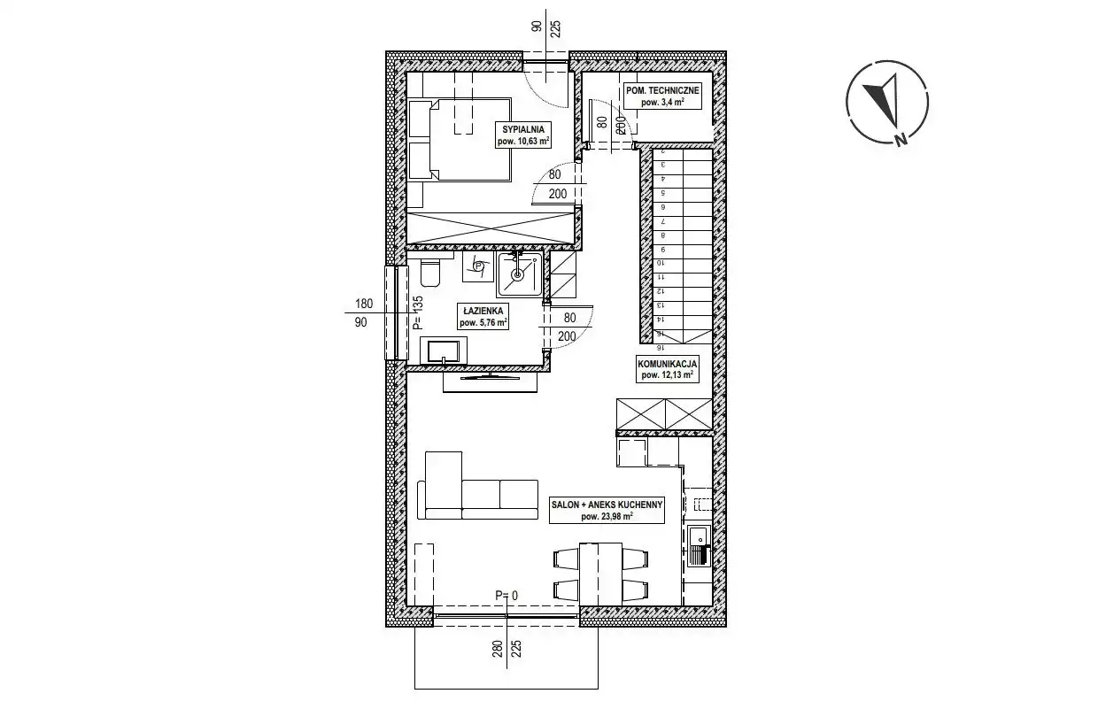
ROZKŁAD POMIESZCZEŃ
Na funkcjonalne wnętrze o powierzchni 55,90 m2 składa się:
salon z aneksem kuchennym – 23,98 m2
sypialnia – 10,63 m2
łazienka – 5,76 m2
komunikacja – 12,13 m2
pomieszczenie gospodarcze – 3,4 m2
Dodatkowo, mieszkanie posiada balkon oraz poddasze z możliwością adaptacji, które nie jest wliczane do powierzchni użytkowej budynku.
Do mieszkania przynależą dwa miejsca postojowe.
MOŻLIWOŚĆ BEZPŁATNEGO DOKONANIA ZMIAN W ROZKŁADZIE POMIESZCZEŃ - WSPÓLNIE Z ARCHITEKTEM
OPIS TECHNICZNY, MEDIA, INSTALACJE
Dom wybudowany w technologii tradycyjnej (pustak ceramiczny)
Wysoki standard wykończenia: stan deweloperski
pełne instalacje: wodna (woda z własnej studni), kanalizacyjna, elektryczna
Każdy apartament posiada:
pompę ciepła
ogrzewanie podłogowe
duże, trzyszybowe przeszklenia
DOJAZD, KOMUNIKACJA I NAJBLIŻSZA OKOLICA
Lokalizacja łączy zalety cichej i spokojnej okolicy zapewniającej miejsce relaksu i odpoczynku z bliskością placówek handlowych, usługowych i edukacyjnych.
Okolica zapewnia idealne warunki zarówno do turystyki pieszej, rowerowej, jak i innych form relaksu które stwarzają niepowtarzalne rejony Orawy i Podhala.
FINANSOWANIE
- 10 % zaliczki (w tym: 5 000 zł - zaliczka rezerwacyjna)
- reszta ustalonej ceny płatna przy odbiorze mieszkania (!)
KUPUJĄCY NIE PŁACI PROWIZJI
KUPUJĄCY ZWOLNIONY Z PODATKU 2%
DOSTĘPNOŚĆ
Termin oddania - pierwszy kwartał 2026
INNE
Możliwość zakupu mieszkania na parterze w cenie 419 000 zł lub całego segmentu w cenie 859 000 zł (pełne oferty w innych ogłoszeniach)
Zapraszam do kontaktu oraz wizyty na miejscu.
Biuro pomaga bezpiecznie przeprowadzić transakcję.
Szczegóły oferty:
798 352 683
marek3@sadurscy.pl
DOSTĘPNE MIESZKANIA:
budynek nr 4 piętro
budynek nr 5 piętro
budynek nr 6 piętro