Mieszkanie na sprzedaż



















Szczegóły ogłoszenia
- Symbol oferty FRP-MS-199222
- Typ oferty mieszkanie na sprzedaż
- Cena 299 000 zł
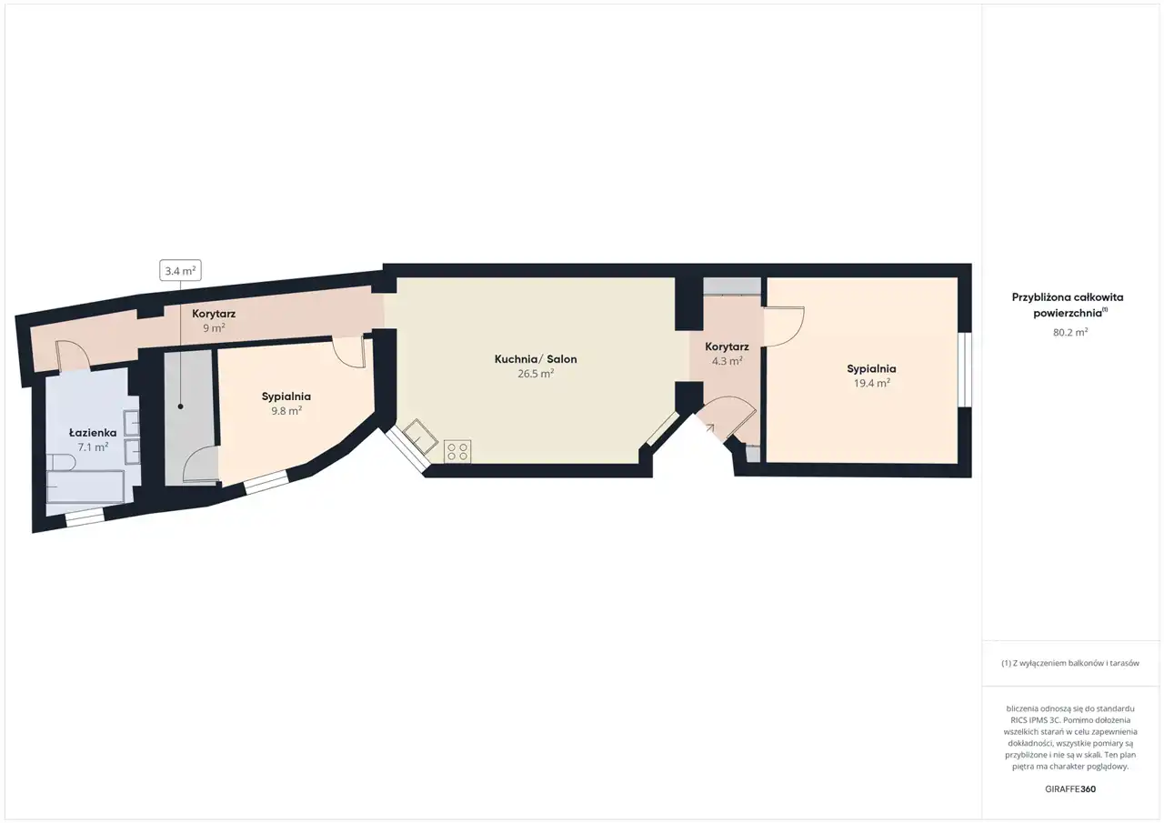
- Charakterystyka mieszkania 81.5 m2, 3 pokoje
- Budynek kamienica
- Rozkład mieszkania parter piętro
- Media Woda: ciepła - terma; Gaz: brak
- Dojazd ASFALTOWA
- Instalacje dobre
- Okna PCV
- Otoczenie centrum miasta
Lokalizacja
- Adres wielkopolskie, Jastrowie
Opis nieruchomości
Urokliwe mieszkanie w kamienicy z ogrodem – centrum Jastrowia
Na sprzedaż wyjątkowe mieszkanie o pow. 81,5 m2 położone w samym sercu Jastrowia. To idealna propozycja dla rodzin, które cenią sobie przestrzeń, wygodę i dostęp do miejskich udogodnień.
Opis nieruchomości:
Mieszkanie składa się z:
-
przestronnego salonu z aneksem kuchennym o pow. 26,6 m2, idealnego miejsca do wspólnego spędzania czasu,
-
sypialni o pow. 9,8 m2, zapewniającej spokój i prywatność,
- pokoju dziecięcego o pow. 19,4 m2, który można dowolnie zaaranżować,
- garderoby o pow. 3,4 m2
- łazienki o pow. 7,1 m2 z nowoczesnym wykończeniem.
- korytarza o pow. 9 m2
https://tour.giraffe360.com/6d4ab0ac501f4d9ba399e3b086d7e361
W całym mieszkaniu zastosowano ogrzewanie podłogowe, co zapewnia komfort cieplny przez cały rok.
Dodatkowe atuty:
Do mieszkania przynależy prawo do korzystania z dużej piwnicy o pow. 20 m2 , szopy o pow. 10 m2 oraz zagospodarowany ogródek o powierzchni ok. 100 m², strefa relaksu z placem zabaw dla dzieci – doskonałe miejsce do wypoczynku na świeżym powietrzu.
Mieszkanie w dobrym stanie technicznym, po licznych modernizacjach z dbałością o funkcjonalność i wygodę mieszkańców.
✅ Najważniejsze atuty:
-
W każdym pokoju indywidualne sterowanie ogrzewaniem podłogowym – możliwość dopasowania temperatury do własnych potrzeb.
-
Wszystkie instalacje (elektryczna, hydrauliczna, grzewcza) zostały wymienione 5 lat temu, co gwarantuje bezpieczne i bezproblemowe użytkowanie.
-
Dach wymieniony w tym roku – nowa konstrukcja i pokrycie zapewniające doskonałą izolację i spokój na długie lata.
Nieruchomość gotowa do zamieszkania bez konieczności dodatkowych wysokich nakładów finansowych.
Lokalizacja:
Kamienica znajduje się w centrum Jastrowia, w pobliżu sklepów, licznych punktów handlowo-usługowych, kościoła, poczty i urzędu miasta. Doskonała komunikacja oraz spokojne, przyjazne sąsiedztwo czynią to miejsce wygodnym do życia.
Termin wydania - do uzgodnienia.
Powyższy opis ma charakter informacyjny i nie stanowi oferty w rozumieniu przepisów Kodeksu Cywilnego. Wszelkie prawa zastrzeżone! Opis oraz zdjęcia są własnością biura. Kopiowanie, powielanie, wykorzystywanie zdjęć i opisu bez zgody autora zabronione.
Zapraszam serdecznie do zapoznania się z ofertą i prezentację
Udzielamy bezpłatnej pomocy w uzyskaniu kredytu na zakup w/w nieruchomości.