Mieszkanie na sprzedaż













Szczegóły ogłoszenia
- Symbol oferty PRP-MS-75756
- Typ oferty mieszkanie na sprzedaż
- Cena 311 920 zł
- Charakterystyka mieszkania 32.2 m2, 1 pokój
- Budynek apartamentowiec; rok budowy: 2026
- Rozkład mieszkania 3p piętro
- Media Ogrzewanie: C.O. GAZOWE; Woda: tak - miejska; Gaz: jest
- Balkon jest
- Dojazd asfalt
- Instalacje nowe
- Okna PCV
- Otoczenie staw
- Stan lokalu deweloperski
- Winda Tak
Lokalizacja
- Adres świętokrzyskie, Jędrzejów
Opis nieruchomości
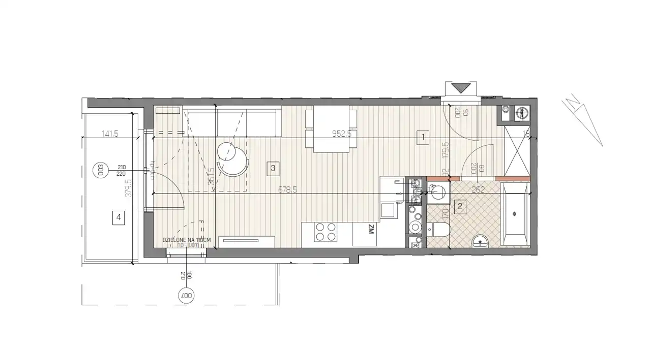
Na sprzedaż 1-pokojowe mieszkanie o powierzchni 32,20 m2, zlokalizowane na 3 piętrze w nowoczesnej inwestycji w Jędrzejowie. Lokal w stanie deweloperskim.
Mieszkanie składa się z:
– salonu z aneksem kuchennym o pow. 22,87m2,
– łazienki o pow. 4,33m2,
– holu o pow. 5m2,
– balkonu o pow. 4,72 m2.
Termin realizacji inwestycji: III kwartał 2026 r.
Układ mieszkania jest funkcjonalny, a jednopoziomowy rozkład oraz dostęp do windy zwiększają komfort użytkowania. Ogrzewanie z własnej kotłowni gazowej dla budynku.
Istnieje możliwość zakupu:
– miejsca w hali garażowej – 48 000 zł (winda z poziomu garażu),
– komórki lokatorskiej – 4000 zł/m2.
Inwestycja
Kompleks obejmuje 57 mieszkań w budynku apartamentowym z garażem w bryle. Na terenie dostępne są udogodnienia takie jak: siłownia, sauna, pokój zabaw dla dzieci, pokój majsterkowicza, stacja uzdatniania wody, stacja ładowania pojazdów elektrycznych, miejsca dla gości oraz restauracja.
Lokalizacja
Osiedle położone jest w pobliżu Parku Miejskiego i zalewem – w otoczeniu terenów rekreacyjnych i zieleni, z wygodnym dostępem do infrastruktury miejskiej: szkół, usług, komunikacji (dworce PKP/PKS, przystanki autobusowe), sklepów i obiektów sportowych.
>> Kupujący zwolniony z kosztów obsługi biura i podatku PCC <<
Dane kontaktowe do agenta: Magdalena Prokopoudi Tel: 888-889-594 E-mail: magdalena.prokopoudi@properco.pl
For service in English call Magdalena Prokopoudi at +48 888-889-594
--------
For sale: a 1-room apartment with an area of 32.20 m2, located on the 3rd floor in a modern development in Jędrzejów. The apartment is in developer standard.
The apartment consists of:
– living room with kitchenette with an area of 22.87m2,
– bathroom with an area of 4.33m2,
– hall with an area of 5m2,
– balcony with an area of 4.72m2.
Project completion date: Q3 2026.
The layout is functional, and the single-level arrangement together with elevator access increases user comfort. Heating from the building’s own gas boiler room.
There is a possibility to purchase:
– a parking space in the underground garage – PLN 48,000 (elevator access from garage level),
– a storage unit – PLN 4,000/m2.
Development
The complex includes 57 apartments in an apartment building with an integrated underground garage. The premises offer amenities such as: a gym, sauna, children’s playroom, DIY room, water treatment station, electric vehicle charging station, guest parking spaces and a restaurant.
Location
The estate is located near the City Park and the reservoir – surrounded by recreational areas and greenery, with convenient access to urban infrastructure: schools, services, transport (PKP/PKS stations, bus stops), shops and sports facilities.
>>The buyer is exempt from office service fees and PCC tax <<
Contact details for the agent: Magdalena Prokopoudi Tel: 888-889-594 E-mail: magdalena.prokopoudi@properco.pl