Lokal na wynajem












Szczegóły ogłoszenia
- Symbol oferty NXTH-LW-1273
- Typ oferty lokal na wynajem
- Czynsz wynajmu 1 500 zł / miesiąc
- Charakterystyka mieszkania 137.31 m2
- Budynek obiekt handlowy; rok budowy: 1985
- Rozkład mieszkania parter piętro
- Media Ogrzewanie: elektryczne
- Dojazd asfalt
- Kaucja jednomiesięczna, 1500 zł
- Okna PCV
- Stan lokalu do adaptacji
Lokalizacja
- Adres dolnośląskie, Jelenia Góra, Zabobrze
Opis nieruchomości
Biuro nieruchomości nextHome prezentuje lokal usługowy do wynajęcia – Zabobrze, ul. Komedy-Trzcińskiego.
Do wynajęcia przestronny lokal usługowy o łącznej powierzchni ok. 137,31 m², położony w bardzo dobrze skomunikowanej części Jeleniej Góry.
Na lokal składają się:
Parter: ok. 18,5 m² – idealne na recepcję, biuro obsługi lub punkt przyjęć klientów,
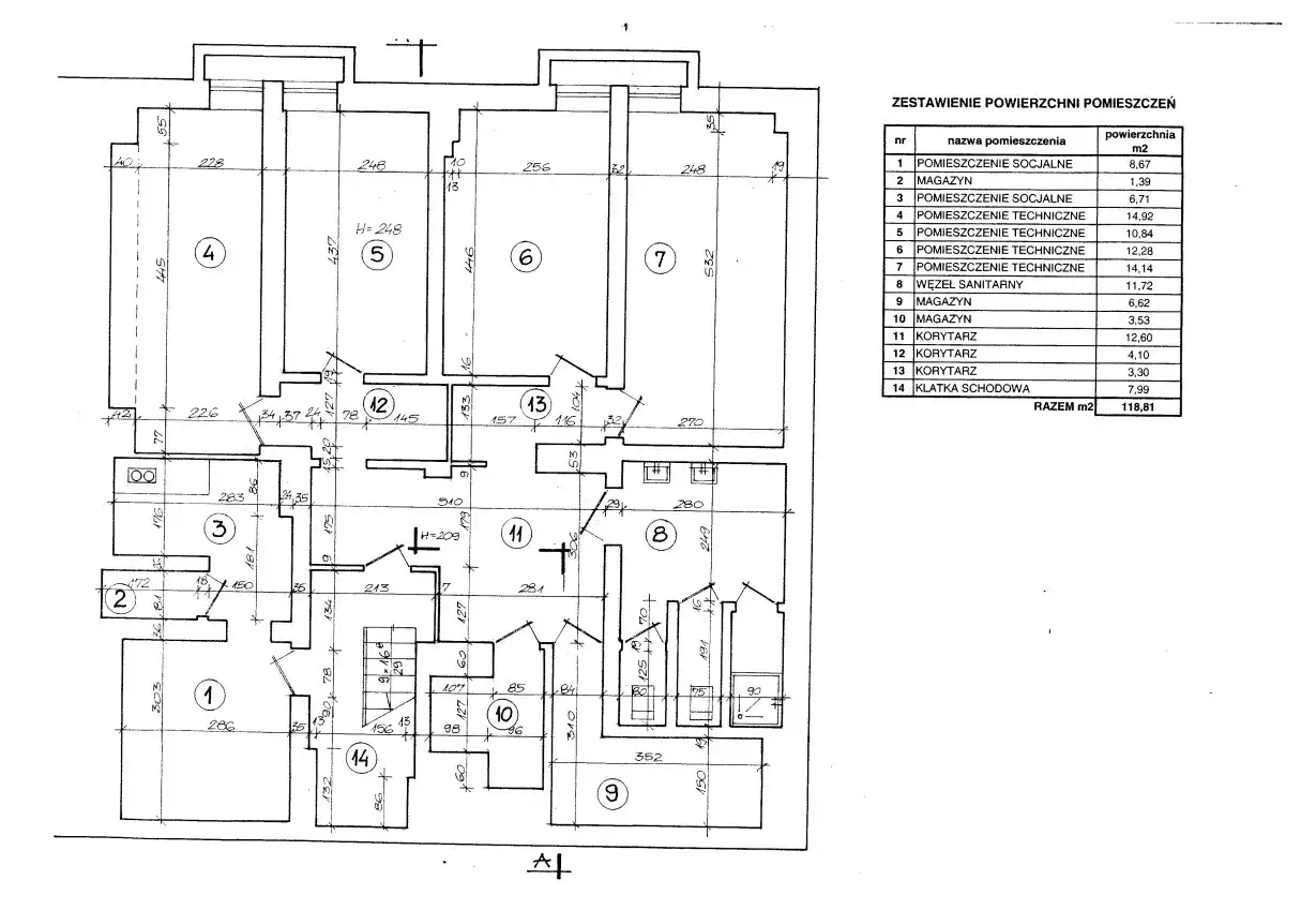
Przyziemie (piwnica) ok. 118,81 m² – powierzchnia obejmująca 10 pomieszczeń o różnym metrażu, które można zaadaptować według własnych potrzeb (np. gabinety, magazyn, pracownię, zaplecze socjalne itp.).
Lokal posiada osobne wejście od strony ulicy. Układ pomieszczeń daje szerokie możliwości aranżacyjne – świetnie sprawdzi się pod działalność usługową, biurową, medyczną, szkoleniową, magazynową czy artystyczną.
Lokalizacja:
Zabobrze – ul. Komedy-Trzcińskiego 12, w pobliżu licznych punktów handlowych i usługowych. Dogodny dojazd komunikacją miejską oraz dostęp do miejsc parkingowych w okolicy.
Atuty:
-możliwość własnej aranżacji,
-duża powierzchnia użytkowa,
-atrakcyjna lokalizacja wśród zabudowy mieszkaniowej,
-widoczność z ulicy.
Zadzwoń i umów się na prezentację!
Uwaga! Proszę pamiętać, że przy podpisywaniu umowy najmu są następujące koszty : opłata za pierwszy miesiąc najmu (1500 zł) , kaucja (1500 zł) oraz prowizja dla biura za pośrednictwo w najmie (jednorazowo, jednomiesięczny koszt najmu).