Mieszkanie na sprzedaż









Szczegóły ogłoszenia
- Symbol oferty BS5-MS-312399
- Typ oferty mieszkanie na sprzedaż
- Cena 397 000 zł
- Charakterystyka mieszkania 42 m2, 2 pokoje
- Budynek apartamentowiec; rok budowy: 2024
- Rozkład mieszkania 1p piętro
- Media Ogrzewanie: piec dwufunkcyjny; Woda: tak - miejska; Gaz: jest
- Balkon duży
- Czynsz Czynsz letni: 350 zł
- Dojazd asfalt
- Ilość sypialni 1
- Instalacje nowe
- Okna PCV 3 szyby, ciepły montaż
- Otoczenie centrum miasta
- Plac zabaw Tak
- Stan lokalu bardzo dobry
- Technologia budowlana cegła + styropian
Lokalizacja
- Adres małopolskie, Kalwaria Zebrzydowska
Opis nieruchomości
Na sprzedaż: nowe, wykończone i urządzone mieszkanie 42 m², Kalwaria Zebrzydowska
Nowoczesne 2-pokojowe, umeblowane mieszkanie z dużym balkonem i przypisanym miejscem parkingowym.
Prezentujemy Państwu funkcjonalne mieszkanie o pow. 42 m², położone w Kalwarii Zebrzydowskiej, zaledwie 500 m od Rynku, w nowo wyremontowanym budynku z cegły. To wyjątkowa oferta dla osób szukających komfortowego miejsca do życia lub inwestorów szukających lokalu z potencjałem rozbudowy.
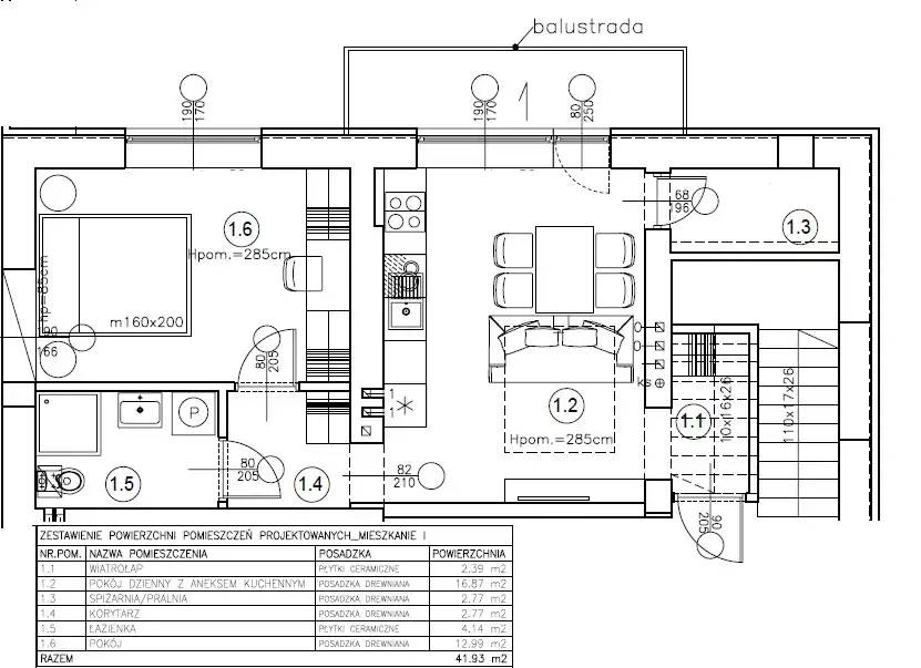
Rozkład mieszkania (42 m²):
- Salon z aneksem kuchennym – 16,9 m²
- Spiżarnia - 2,8 m2
- Sypialnia – 13 m² z dużym balkonem
- Łazienka – 4,1 m²
- Przedpokój – 5,2 m²
- Komórka lokatorska - 2, m2
Budynek:
-
Lata 80-te, cegła pełna
-
Kompletny remont w latach 2023–2024:
-
Skute stare warstwy ścian wewnętrznych i zewnętrznych
-
Ocieplenie 15 cm styropianem
-
Tynk silikonowo-silikatowy KREISEL
-
Nowe dachy, rynny i parapety zewnętrzne (aluminiowe)
-
Wymiana instalacji wod-kan, elektrycznej i gazowej
-
Okna 3-szybowe OKNOPLAST, parapety wewnętrzne z konglomeratu kwarcowego
-
Podłogi: panele drewniane w pokojach, ceramika w łazience, przedpokoju i kuchni
-
Ogrzewanie i media:
-
Ogrzewanie gazowe – piec dwufunkcyjny z zamkniętą komorą spalania
-
Wszystkie media miejskie
-
Możliwość podłączenia internetu światłowodowego
Dodatki i udogodnienia:
- Miejsce parkingowe
- Dodatkowy parking dla gości
- Umeblowane: kuchnia na wymiar + AGD, sofa, stół + 4 krzesła, łóżko tapicerowane, szafa, pralka, itp.
- Strefa zielona dla mieszkańców
- Cicha okolica, a jednocześnie blisko centrum miasta
Lokalizacja:
-
500 m do kalwaryjskiego Rynku
-
W bliskim sąsiedztwie: sklepy, szkoły, przedszkola, kościół, przystanki komunikacji
Idealne dla:
-
par lub singli szukających nowoczesnego lokum
-
inwestorów – bezproblemowa możliwość wynajmu mieszkania
-
osób poszukujących mieszkania w dobrze skomunikowanej, spokojnej lokalizacji
Stan prawny: pełna własność
Zapraszam do kontaktu oraz na bezpłatną prezentację nieruchomości.
Adam Malik
511 272 088
adam2@sadurscy.pl