Mieszkanie na sprzedaż











Szczegóły ogłoszenia
- Symbol oferty KWD-MS-516
- Typ oferty mieszkanie na sprzedaż
- Cena 357 500 zł
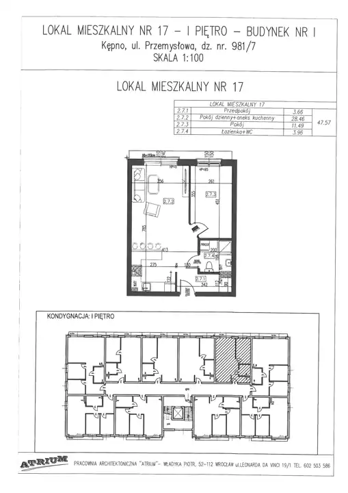
- Charakterystyka mieszkania 47.57 m2, 2 pokoje
- Budynek blok; rok budowy: 2024
- Rozkład mieszkania 1p piętro
- Media Ogrzewanie: C.O. Z SIECI MIEJSKIEJ; Woda: jest; Gaz: brak
- Balkon duży
- Instalacje ELEKTRYCZNA
- Okna PCV
- Plac zabaw Tak
- Stan lokalu deweloperski
- Technologia budowlana pustak ceramiczny
- Winda Tak
Lokalizacja
- Adres wielkopolskie, kępiński, Kępno
Opis nieruchomości
Nowoczesne mieszkania – Kępno!!! Osiedle Lawendowe
KWADRAT prezentuje na sprzedaż mieszkania w nowo powstałej inwestycji w Kępnie przy ul. Przemysłowej.
Osiedle Lawendowe to dwa budynki wielorodzinne z mieszkaniami dwu lub trzy pokojowymi o powierzchniach od 37m2 do 63m2.
W budynkach znajdować się będą lokale mieszkalne, komórki lokatorskie oraz indywidualne garaże.
Prezentowany lokal położony jest na pierwszym piętrze budynku. Powierzchnia wynosi 47,57m². Mieszkanie posiada ustawny salon wraz z aneksem kuchennym, sypialnię, łazienkę + WC oraz przedpokój. Z salonu mamy wyjście na duży balkon.
Mieszkania zostaną oddane do użytkowania w podwyższonym standardzie deweloperskim.
- funkcjonalne układy mieszkań
- balkon w każdym mieszkaniu
- indywidualne garaże oraz komórki lokatorskie
- winda osobowa w każdym budynku
- elegancka architektura
- monitoring osiedla
- rolety elektryczne w standardzie
- światłowód w każdym mieszkaniu
- drzwi tarasowe w systemie PSK
- osiedle przystosowane będzie do potrzeb osób niepełnosprawnych
- bezpieczny plac zabaw dla najmłodszych
- osiedle będzie ogrodzone, co dodatkowo zapewni mieszkańcom spokój i bezpieczeństwo
Deweloper zastosował nowoczesne technologie oraz materiały najwyższej jakości. Mieszkania będą ogrzewane z sieci miejskiej natomiast ciepła woda z centralnej kotłowni gazowej. Dodatkowo w każdym mieszkaniu dostępny będzie TV i Internet instalacja światłowodowa, system domofonowy oraz monitoring osiedla.
Całe osiedle będzie ogrodzone a części wspólne obsadzone roślinnością na terenie inwestycji urządzone zostaną elementy małej architektury – plac zabaw dla najmłodszych, stojaki na rowery oraz ławki.
Zapraszamy na prezentację mieszkań tel.: 730 908 806
Nie pobieramy prowizji od kupujących!!!
Dodatkowo oferujemy: BEZPŁATNĄ POMOC W UZYSKANIU KREDYTU!!!
Więcej szczegółów w biurze spółki: KWADRAT Sp. J. ul. Rynek 33; 63-600 Kępno
Nota prawna: Opis oferty zawarty na stronie internetowej sporządzany jest na podstawie oględzin nieruchomości oraz informacji uzyskanych od właściciela, może podlegać aktualizacji i nie stanowi oferty określonej w art. 66 i następnych K.C. W ofercie użyto materiałów ze zrealizowanych wcześniej inwestycji dewelopera.