Lokal na sprzedaż
1 005 980 zł
96 m2






1 / 6
Szczegóły ogłoszenia
- Symbol oferty PRP-LS-75957
- Typ oferty lokal na sprzedaż
- Cena 1 005 980 zł
- Charakterystyka mieszkania 96.22 m2, 2 pokoje
- Budynek budynek wielorodzinny
- Rozkład mieszkania parter piętro
- Balkon loggia
- Ilość sypialni 1
- Instalacje nowe
- Okna PCV
- Stan lokalu deweloperski
- Technologia budowlana beton
- Winda Tak
Lokalizacja
- Adres świętokrzyskie, Kielce, Uroczysko
Opis nieruchomości
Na sprzedaż lokal użytkowy o pow. 96,22 m2, dostępne na parterze budynku, zlokalizowanego w nowoczesnej inwestycji położonej przy ul. Klonowej, w sąsiedztwie Zalewu Kieleckiego i lasu/parku nad zalewem. Lokal jest oferowany w standardzie deweloperskim.
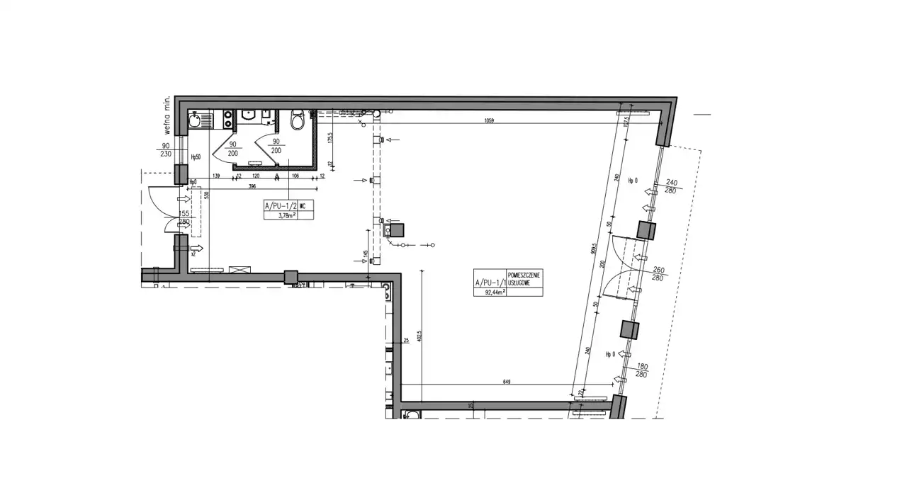
W skład lokalu wchodzi:
- pomieszczenie główne (92,44 m2),
- wc (3,78 m2).
Ogrzewanie i ciepła woda z sieci miejskiej.
Inwestycja zlokalizowana jest w spokojnej części Kielc, blisko terenów rekreacyjnych. Składać się będzie z jednego budynku o zróżnicowanej wysokości. Klatka A gdzie znajdować się będą lokale usługowe oraz mieszkalne jest z III piętrami natomiast klatka B i C stanowi wyłącznie cześć mieszkalną to IV piętra.
W budynku łącznie zaprojektowano 51 mieszkań, 9 zespołów pokojowych i 3 lokale usługowe oraz halę garażową w części podziemnej z 44 miejscami postojowymi, komórkami lokatorskimi i boksami gospodarczymi. Budynki zostaną wyposażone w cichobieżne windy.
Termin zakończenia inwestycji: II kwartał 2026 r.
>> Kupujący zwolniony z kosztów obsługi biura i podatku PCC <<
Sprzedaż inwestycji prowadzi biuro PROPERCO.pl - Kielce, ul. Kozia 3A/1.
Dane kontaktowe do agenta: Krzysztof Jakubowski Tel: 888 889 568 E-mail: krzysztof.jakubowski@properco.pl
W skład lokalu wchodzi:
- pomieszczenie główne (92,44 m2),
- wc (3,78 m2).
Ogrzewanie i ciepła woda z sieci miejskiej.
Inwestycja zlokalizowana jest w spokojnej części Kielc, blisko terenów rekreacyjnych. Składać się będzie z jednego budynku o zróżnicowanej wysokości. Klatka A gdzie znajdować się będą lokale usługowe oraz mieszkalne jest z III piętrami natomiast klatka B i C stanowi wyłącznie cześć mieszkalną to IV piętra.
W budynku łącznie zaprojektowano 51 mieszkań, 9 zespołów pokojowych i 3 lokale usługowe oraz halę garażową w części podziemnej z 44 miejscami postojowymi, komórkami lokatorskimi i boksami gospodarczymi. Budynki zostaną wyposażone w cichobieżne windy.
Termin zakończenia inwestycji: II kwartał 2026 r.
>> Kupujący zwolniony z kosztów obsługi biura i podatku PCC <<
Sprzedaż inwestycji prowadzi biuro PROPERCO.pl - Kielce, ul. Kozia 3A/1.
Dane kontaktowe do agenta: Krzysztof Jakubowski Tel: 888 889 568 E-mail: krzysztof.jakubowski@properco.pl
Nota prawna
Opis oferty zawarty na stronie internetowej sporządzany jest na podstawie oględzin nieruchomości oraz informacji uzyskanych od właściciela, może podlegać aktualizacji i nie stanowi oferty określonej w art. 66 i następnych K.C.
Kalkulator kredytowy
Formularz kontaktowy