Lokal na wynajem









Szczegóły ogłoszenia
- Symbol oferty PRP-LW-76040
- Typ oferty lokal na wynajem
- Czynsz wynajmu 4 920 zł / miesiąc
- Charakterystyka mieszkania 127.16 m2
- Budynek budynek wolnostojący
- Rozkład mieszkania parter piętro
- Media Ogrzewanie: gazowe
- Miejsce parkingowe Tak
- Dojazd asfalt
- Instalacje ELEKTRYCZNA, GAZOWA
- Kaucja trzymiesięczna
- Okna PCV
- Stan lokalu do adaptacji
Lokalizacja
- Adres świętokrzyskie, Kielce, Herby
Opis nieruchomości
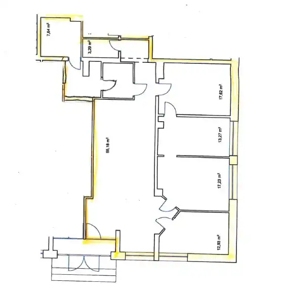
Loka składa się z:
- pomieszczenia głównego o pow. 55,16 m2
- czterech pomieszczeń biurowych/magazynowych o powierzchniach: 12,93m2, 17,23m2, 13,27m2 i 17,62m2
- kotłowni o pow. 7,64m2
- toalety o pow. 3,29m2
Wysokość pomieszczeń ok. 3m
Lokal sprawdzi się zarówno pod działalność handlową/magazynową czy usługową. Przed lokalem parking - do lokalu przynależą 2 miejsca postojowe do użytku najemcy. Możliwość umieszczenia reklamy w witrynach. Lokal wyposażony w zewnętrzne rolety antywłamaniowe.
Ogrzewanie gazowe, ciepła woda z elektrycznego podgrzewacza.
Lokal wolny od 1 czerwca 2026.
Koszty utrzymania: czynsz najmu 4000 PLN netto (4920 PLN brutto) + media według liczników (gaz, prąd) + opłata za wodę w wysokości ok. 110 PLN netto/3 miesiące (135,30 PLN brutto).
Kaucja trzymiesięczna.
Dla lokalu nie sporządzono świadectwa charakterystyki energetycznej.
Dane kontaktowe do agenta: Agata Grela, tel: 692-929-191, E-mail: ag@properco.pl
For service in English call Agata Grela, tel: 692-929-191, E-mail: ag@properco.pl
--------
For rent: a commercial unit with an area of 127.16 m², located on the ground floor of a 1-storey building at the busy 1 Maja Street, in the Herby district.
The unit consists of:
- main room of 55.16 m²,
- four office/storage rooms of 12.93 m², 17.23 m², 13.27 m², and 17.62 m²,
- boiler room of 7.64 m²,
- toilet of 3.29 m².
Ceiling height: approx. 3 m.
The property is suitable for retail, storage, or service activities. There is parking in front of the building – 2 parking spaces are assigned to the tenant. Possibility to place advertising in the shop windows. The unit is equipped with external anti-burglary shutters.
Heating: gas. Hot water from an electric heater.
Available from June 1, 2026.
Costs:
rent: 4,000 PLN net (4,920 PLN gross)
utilities: gas and electricity according to meter readings
water: approx. 110 PLN net / 3 months (135.30 PLN gross)
security deposit: three-month rent
An Energy Performance Certificate has not been prepared for the property.
Agent contact details: Agata Grela Tel: +48 692-929-191 E-mail: ag@properco.pl