Lokal na wynajem









Szczegóły ogłoszenia
- Symbol oferty PRP-LW-75796
- Typ oferty lokal na wynajem
- Czynsz wynajmu 5 289 zł / miesiąc
- Charakterystyka mieszkania 127.16 m2
- Budynek budynek wolnostojący
- Rozkład mieszkania parter piętro
- Media Ogrzewanie: gazowe
- Miejsce parkingowe Tak
- Dojazd asfalt
- Instalacje ELEKTRYCZNA, GAZOWA
- Kaucja trzymiesięczna
- Okna PCV
- Stan lokalu do adaptacji
- Umeblowanie nieumeblowane
Lokalizacja
- Adres świętokrzyskie, Kielce, Herby
Opis nieruchomości
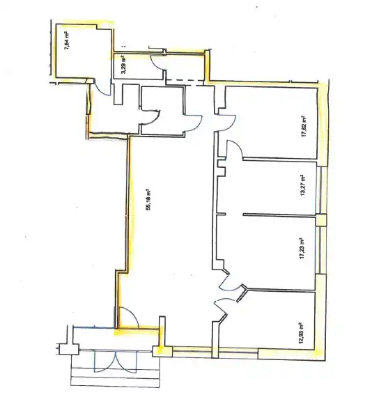
Loka składa się z:
- pomieszczenia głównego o pow. 55,16 m2
- czterech pomieszczeń biurowych/magazynowych o powierzchniach: 12,93m2, 17,23m2, 13,27m2 i 17,62m2
- kotłowni o pow. 7,64m2
- toalety o pow. 3,29m2
Wysokość pomieszczeń ok. 3m
Lokal sprawdzi się zarówno pod działalność handlową/magazynową czy usługową. Przed lokalem parking - do lokalu przynależą 2 miejsca postojowe do użytku najemcy. Możliwość umieszczenia reklamy w witrynach. Lokal wyposażony w zewnętrzne rolety antywłamaniowe.
Ogrzewanie gazowe, ciepła woda z elektrycznego podgrzewacza.
Lokal wolny od 1 lutego 2026.
Koszty utrzymania: czynsz najmu 4300 PLN netto (5289 PLN brutto) + media według liczników (gaz, prąd) + opłata za wodę w wysokości ok. 110 PLN netto/3 miesiące (135,30 PLN brutto).
Kaucja trzymiesięczna.
Dla lokalu nie sporządzono świadectwa charakterystyki energetycznej.
Dane kontaktowe do agenta: Agata Grela, tel: 692-929-191, E-mail: ag@properco.pl
For service in English call Agata Grela, tel: 692-929-191, E-mail: ag@properco.pl
--------
For rent: a unit with an area of 127.16 m2, located on the ground floor of a 1-storey building, on the busy 1 Maja Street, in the Herby estate.
The unit consists of:
-
main room with an area of 55.16 m2
-
four office/storage rooms with areas: 12.93 m2, 17.23 m2, 13.27 m2 and 17.62 m2
-
boiler room with an area of 7.64 m2
-
toilet with an area of 3.29 m2
Room height approx. 3 m
The unit is suitable for commercial, storage or service activities. In front of the unit there is a parking area – 2 parking spaces are assigned for the tenant’s use. Possibility to place advertising in the shop windows. The unit is equipped with external anti-burglary shutters.
Gas heating, hot water from an electric heater.
The unit is available from 1 February 2026.
Maintenance costs: rent 4300 PLN net (5289 PLN gross) + utilities according to meter readings (gas, electricity) + water fee approx. 110 PLN net / 3 months (135.30 PLN gross).
Three-month deposit.
No energy performance certificate has been issued for the unit.
Contact details for the agent: Agata Grela, tel: 692-929-191, e-mail: ag@properco.pl