Mieszkanie na sprzedaż
1 011 800 zł
103 m2









1 / 9
Szczegóły ogłoszenia
- Symbol oferty PRP-MS-75614
- Typ oferty mieszkanie na sprzedaż
- Cena 1 011 800 zł
- Charakterystyka mieszkania 103.25 m2, 5 pokoi
- Budynek blok; rok budowy: 2025
- Rozkład mieszkania 10p piętro
- Media Ogrzewanie: miejskie; Woda: ciepła - miejska; Gaz: brak
- Balkon duży
- Dojazd asfalt
- Garaż garaż podziemny
- Ilość sypialni 4
- Instalacje nowe
- Okna PCV 3 komorowe
- Otoczenie zabudowa mieszana
- Stan lokalu deweloperski
- Technologia budowlana cegła
- Winda Tak
Lokalizacja
- Adres świętokrzyskie, Kielce, KSM
Opis nieruchomości
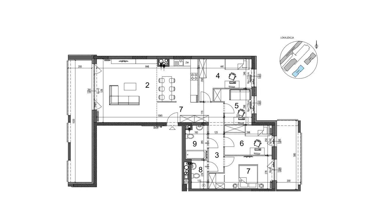
Na sprzedaż 5 - pokojowe mieszkanie o pow. 103,25 Alei Solidarności oraz ul. Górnej, oferowane w standardzie deweloperskim.
W skład mieszkania wchodzą:
a) hall (pow. 7,26 m2),
b) salon z aneksem kuchennym (pow. 38,69 m2),
c) 4 sypialnie (pow. 11,98 m2; 7,61 m2; 9,82 m2; 12,63 m2),
d) łazienka (pow. 4,90 m2),
e) WC (pow. 3,10 m2).
f) komunikacja (pow. 7,26 m2)
Do lokalu przynależą 2 balkony o powierzchniach 20,15 m2 i 11,30 m2.
Ogrzewanie i ciepła woda z sieci miejskiej (brak piecyków gazowych w mieszkaniach).
Planowany termin zakończenia inwestycji: IV kwartał 2025.
Inwestycja składać się będzie z pięciu 10-cio piętrowych budynków, powstających etapami. Drugi budynek inwestycji zawiera 94 komfortowe mieszkania oraz 6 lokali usługowych. W części podziemnej zaprojektowano dwupoziomowy podziemny garaż.
Na dachu budynku zaprojektowane zostały panele fotowoltaiczne, do obsługi części wspólnych budynku. Teren nieruchomości zostanie ogrodzony i wyposażony w instalacje domofonową i monitoring. Budynki zostaną wyposażone w cichobieżne windy. Ciepło dostarczane z sieci miejskiej.
W pobliżu inwestycji znajdują się: Politechnika Świętokrzyska, Uniwersytet Jana Kochanowskiego, szkoła podstawowa, przedszkole, żłobek, centra medyczne, galeria handlowa "Echo". Dogodne połączeniem z centrum miasta i drogami krajowymi.
Możliwość zakupu miejsca postojowego w garażu podziemnym na poziomie -1 w cenie 54 000 PLN lub na poziomie -2 w cenie 49 000 PLN. Możliwość zakupu komórki lokatorskiej w cenie 5 900 PLN/m2.
W skład mieszkania wchodzą:
a) hall (pow. 7,26 m2),
b) salon z aneksem kuchennym (pow. 38,69 m2),
c) 4 sypialnie (pow. 11,98 m2; 7,61 m2; 9,82 m2; 12,63 m2),
d) łazienka (pow. 4,90 m2),
e) WC (pow. 3,10 m2).
f) komunikacja (pow. 7,26 m2)
Do lokalu przynależą 2 balkony o powierzchniach 20,15 m2 i 11,30 m2.
Ogrzewanie i ciepła woda z sieci miejskiej (brak piecyków gazowych w mieszkaniach).
Planowany termin zakończenia inwestycji: IV kwartał 2025.
Inwestycja składać się będzie z pięciu 10-cio piętrowych budynków, powstających etapami. Drugi budynek inwestycji zawiera 94 komfortowe mieszkania oraz 6 lokali usługowych. W części podziemnej zaprojektowano dwupoziomowy podziemny garaż.
Na dachu budynku zaprojektowane zostały panele fotowoltaiczne, do obsługi części wspólnych budynku. Teren nieruchomości zostanie ogrodzony i wyposażony w instalacje domofonową i monitoring. Budynki zostaną wyposażone w cichobieżne windy. Ciepło dostarczane z sieci miejskiej.
W pobliżu inwestycji znajdują się: Politechnika Świętokrzyska, Uniwersytet Jana Kochanowskiego, szkoła podstawowa, przedszkole, żłobek, centra medyczne, galeria handlowa "Echo". Dogodne połączeniem z centrum miasta i drogami krajowymi.
Możliwość zakupu miejsca postojowego w garażu podziemnym na poziomie -1 w cenie 54 000 PLN lub na poziomie -2 w cenie 49 000 PLN. Możliwość zakupu komórki lokatorskiej w cenie 5 900 PLN/m2.
>>Kupujący zwolniony z kosztów obsługi biura i podatku PCC<<
Dane kontaktowe do agenta: Jacek Kotlarz, tel: 888 889 441, e-mail: jacek.kotlarz@properco.pl
For more information in English please call: 888 889 441, e-mail: jacek.kotlarz@properco.pl
For more information in English please call: 888 889 441, e-mail: jacek.kotlarz@properco.pl
Nota prawna
Opis oferty zawarty na stronie internetowej sporządzany jest na podstawie oględzin nieruchomości oraz informacji uzyskanych od właściciela, może podlegać aktualizacji i nie stanowi oferty określonej w art. 66 i następnych K.C.
Kalkulator kredytowy
Formularz kontaktowy