Mieszkanie na sprzedaż











Szczegóły ogłoszenia
- Symbol oferty PRP-MS-75963
- Typ oferty mieszkanie na sprzedaż
- Cena 390 000 zł
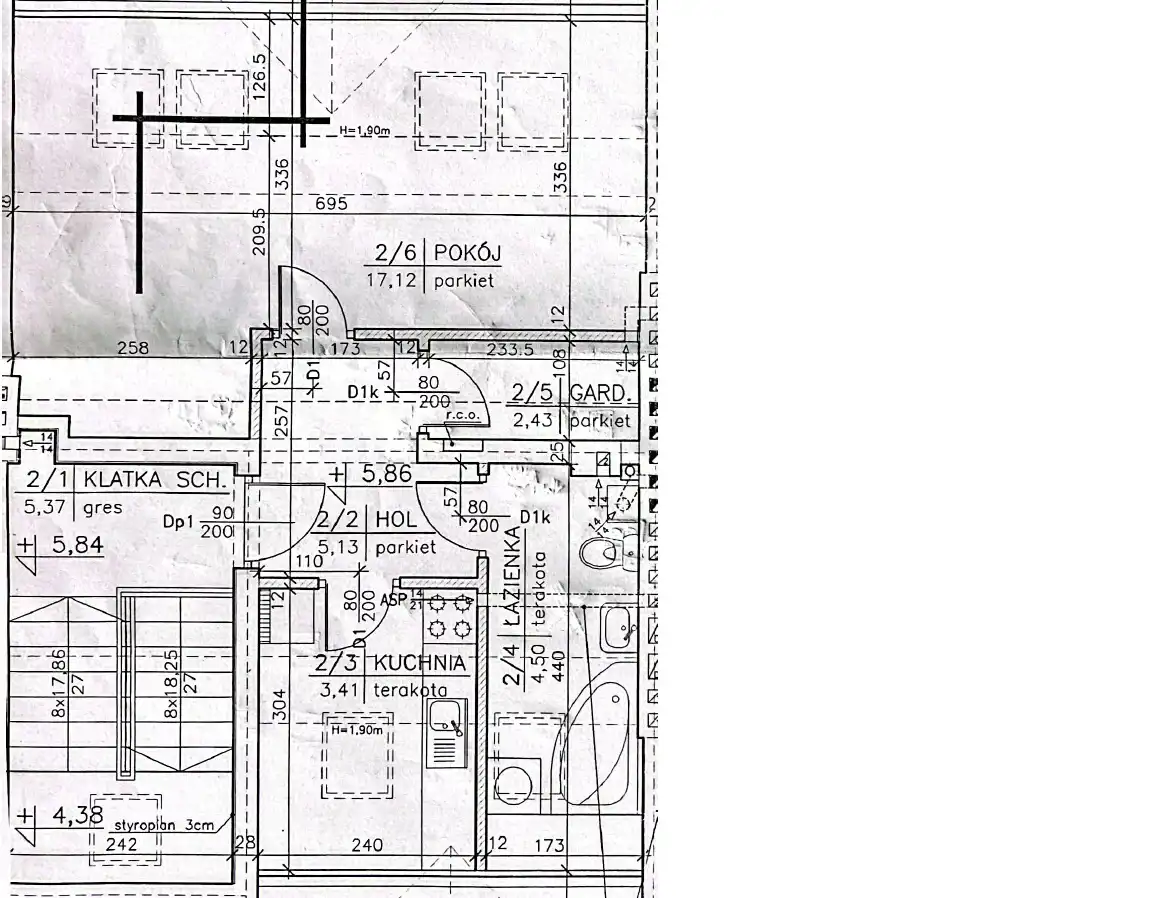
- Charakterystyka mieszkania 32.59 m2, 2 pokoje
- Budynek budynek wielorodzinny; rok budowy: 2009
- Rozkład mieszkania 1p piętro
- Media Ogrzewanie: piec dwufunkcyjny; Woda: piec gazowy dwufunkcyjny; Gaz: jest
- Czynsz Czynsz letni: 350 zł
- Dojazd asfalt
- Ilość sypialni 1
- Okna drewniane
- Stan lokalu do odnowienia
- Technologia budowlana cegła + styropian
Lokalizacja
- Adres świętokrzyskie, Kielce, Szydłówek
Opis nieruchomości
Na sprzedaż – klimatyczne mieszkanie z zaadaptowanym poddaszem | ul. Szydłówek Górny, Kielce
Na sprzedaż funkcjonalne i klimatyczne mieszkanie o powierzchni 32,59 m² (zgodnie z księgą wieczystą), położone przy ul. Szydłówek Górny w Kielcach. Nieruchomość znajduje się na pierwszym - ostatnim piętrze kameralnego budynku wielorodzinnego z 2009 roku.
Przemyślany układ i dodatkowa przestrzeń
Mieszkanie składa się z:
-
ustawnego pokoju dziennego
-
oddzielnej kuchni
-
łazienki
-
holu
Dzięki obecności skosów rzeczywista powierzchnia podłóg wynosi około 50 m², co znacząco zwiększa funkcjonalność lokalu.
Dodatkowym atutem jest zaadaptowane poddasze nad mieszkaniem, które obecnie pełni funkcję sypialni. Przestrzeń tę można zaaranżować jako pokój dla dziecka, gabinet do pracy zdalnej lub obszerną garderobę.
Jasne, dwustronne mieszkanie, klimatyzowaane.
Lokal ma dwustronną ekspozycję (północ–południe), co zapewnia naturalne doświetlenie przez cały dzień. Okna połaciowe nadają wnętrzu wyjątkowy, przytulny klimat i podkreślają jego nietypowy, klimatyczny charakter.
Dodatkowe udogodnienia
-
komórka lokatorska o powierzchni 2,87 m²
-
na poziomie wejścia do lokalu znajduje się tylko jedno mieszkanie zatem klatka schodowa użytkowana jest wyłącznie przez właścicieli, pełniąc funkcję prywatnego przedsionka
- kameralny budynek z 2009 roku.
- niski koszt utrzymania czynsz w wysokości 350 PLN.
Dla nieruchomości nie zostało sporządzone świadectwo charakterystyki energetycznej.
Dane kontaktowe do agenta: Dorota Pękalska - Perz Tel: 608-827-080 E-mail: dorota.pekalska-perz@properco.pl
For service in English please call Magdalana Prokopoudi at: +48 888-889-594.
-------
For sale: Charming apartment with adapted attic | Szydłówek Górny Street, Kielce
For sale is a functional and charming apartment with an area of 32.59 m² (according to the land and mortgage register), located on Szydłówek Górny Street in Kielce. The property is situated on the first (top) floor of an intimate multi-family building from 2009.
Well-designed layout and additional space
The apartment consists of:
-
a well-proportioned living room,
-
a separate kitchen,
-
bathroom,
-
hall.
Due to sloped ceilings, the actual floor area is approximately 50 m², significantly increasing the usability and comfort of the space.
An additional advantage is the adapted attic above the apartment, currently used as a bedroom. This space can also be arranged as a child’s room, home office, or a spacious walk-in wardrobe.
Bright dual-aspect apartment
The apartment has dual exposure (north–south), providing natural light throughout the day. Roof windows give the interior a unique, cosy atmosphere and highlight its distinctive character.
Additional features
-
storage unit of 2.87 m²,
-
only one apartment is located on the entrance level, meaning the staircase is used exclusively by the owners and functions as a private vestibule,
-
intimate residential building from 2009.
An Energy Performance Certificate has not been prepared for the property.
Agent contact details:
For service in English please call Magdalena Prokopoudi at: +48 888-889-594.