Mieszkanie na sprzedaż
544 320 zł
68 m2







1 / 7
Szczegóły ogłoszenia
- Symbol oferty PRP-MS-74898
- Typ oferty mieszkanie na sprzedaż
- Cena 544 320 zł
- Charakterystyka mieszkania 68.04 m2, 3 pokoje
- Budynek budynek wielorodzinny; rok budowy: 2025
- Rozkład mieszkania 2p piętro
- Media Ogrzewanie: C.O. GAZOWE; Woda: jest; Gaz: jest
- Dojazd ASFALTOWA
- Garaż garaż w budynku
- Ilość sypialni 2
- Instalacje nowe
- Okna PCV
- Stan lokalu deweloperski
- Winda Tak
Lokalizacja
- Adres świętokrzyskie, Kielce, Na Stoku
Opis nieruchomości
Na sprzedaż 3 - pokojowe mieszkanie o pow. 68,04 m2 dostępne na II piętrze budynku zlokalizowanego w nowoczesnej inwestycji, położonej w bezpośrednim sąsiedztwie os. Na Stoku. Mieszkanie jest oferowane w standardzie deweloperskim.
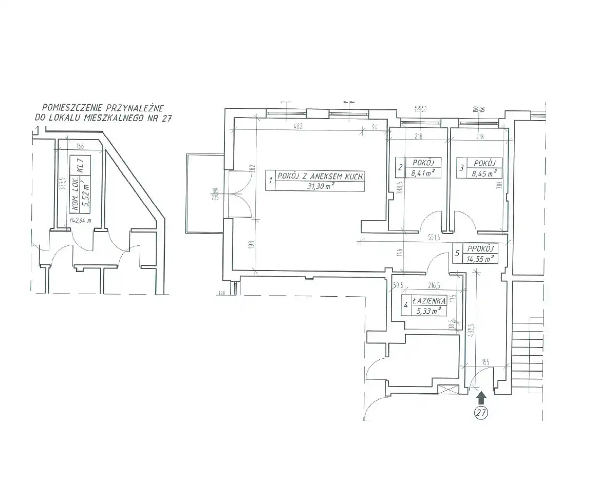
W skład mieszkania wchodzą:
a) salon z aneksem kuchennym (pow. 31,30 m2),
b) 2 pokoje (pow. 8,41 m2, 8,45 m2),
c) korytarz (pow. 14,55 m2),
d) łazienka (pow. 5,33 m2).
Do mieszkania przynależy komórka lokatorska o pow. 5,52 m2.
Ogrzewanie i ciepła woda z własnej kotłowni gazowej.
Inwestycja oddana do użytkowania.
Możliwość zakupu miejsca postojowego w garażu podziemnym w cenie 42 000 PLN, miejsce postojowe zewnętrzne w cenie 18 000 PLN.
Do mieszkania należy zakupić komórkę lokatorską w cenie 4000 PLN/m2.
Inwestycja będzie się składać z 5 budynków mieszkalnych, wielorodzinnych. Bloki będą miały 5 kondygnacji naziemnych oraz garaże podziemne. Zostało zaplanowanych również 200 miejsc postojowych zewnętrznych. Część mieszkań zostanie wykończona pod klucz. W osiedlu zaplanowany jest plac zabaw i dużo zieleni. Teren wokół budynków zostanie ogrodzony. Widok rozciąga się na panoramę Kielc i Gór Świętokrzyskich.
>>Kupujący zwolniony z kosztów obsługi biura i podatku PCC<<
Dane kontaktowe do agenta: Agata Grela Tel: 692-929-191 E-mail: ag@properco.pl
For service in English call Agata Grela at +48 692-929-191, e-mail: ag@properco.pl
W skład mieszkania wchodzą:
a) salon z aneksem kuchennym (pow. 31,30 m2),
b) 2 pokoje (pow. 8,41 m2, 8,45 m2),
c) korytarz (pow. 14,55 m2),
d) łazienka (pow. 5,33 m2).
Do mieszkania przynależy komórka lokatorska o pow. 5,52 m2.
Ogrzewanie i ciepła woda z własnej kotłowni gazowej.
Inwestycja oddana do użytkowania.
Możliwość zakupu miejsca postojowego w garażu podziemnym w cenie 42 000 PLN, miejsce postojowe zewnętrzne w cenie 18 000 PLN.
Do mieszkania należy zakupić komórkę lokatorską w cenie 4000 PLN/m2.
Inwestycja będzie się składać z 5 budynków mieszkalnych, wielorodzinnych. Bloki będą miały 5 kondygnacji naziemnych oraz garaże podziemne. Zostało zaplanowanych również 200 miejsc postojowych zewnętrznych. Część mieszkań zostanie wykończona pod klucz. W osiedlu zaplanowany jest plac zabaw i dużo zieleni. Teren wokół budynków zostanie ogrodzony. Widok rozciąga się na panoramę Kielc i Gór Świętokrzyskich.
>>Kupujący zwolniony z kosztów obsługi biura i podatku PCC<<
Dane kontaktowe do agenta: Agata Grela Tel: 692-929-191 E-mail: ag@properco.pl
For service in English call Agata Grela at +48 692-929-191, e-mail: ag@properco.pl
Nota prawna
Opis oferty zawarty na stronie internetowej sporządzany jest na podstawie oględzin nieruchomości oraz informacji uzyskanych od właściciela, może podlegać aktualizacji i nie stanowi oferty określonej w art. 66 i następnych K.C.
Kalkulator kredytowy
Formularz kontaktowy