Mieszkanie na sprzedaż



























Szczegóły ogłoszenia
- Symbol oferty TWJ-MS-2536
- Typ oferty mieszkanie na sprzedaż
- Cena 547 000 zł
- Charakterystyka mieszkania 53.88 m2, 3 pokoje
- Budynek blok; rok budowy: 1986
- Rozkład mieszkania 2p piętro
- Media Ogrzewanie: centralne; Woda: ciepła - terma
- Balkon jest
- Czynsz Czynsz letni: 550 zł
- Instalacje nowe
- Okna PCV
- Stan lokalu po generalnym remoncie
- Technologia budowlana wielka płyta
Lokalizacja
- Adres świętokrzyskie, Kielce
Opis nieruchomości
Biuro Nieruchomości
TWOJE M
Prezentuje ofertę sprzedaży lub zamiany
Komfortowe 3 pokojowe mieszkanie, po generalnym remoncie.
Doskonała lokalizacja dla rodziny lub pod wynajem
- po generalnym remoncie
- gotowe do wprowadzenia
- jedna z najlepszych lokalizacji w mieście
- atrakcyjne 2 piętro
- dużo terenów zielonych w pobliżu
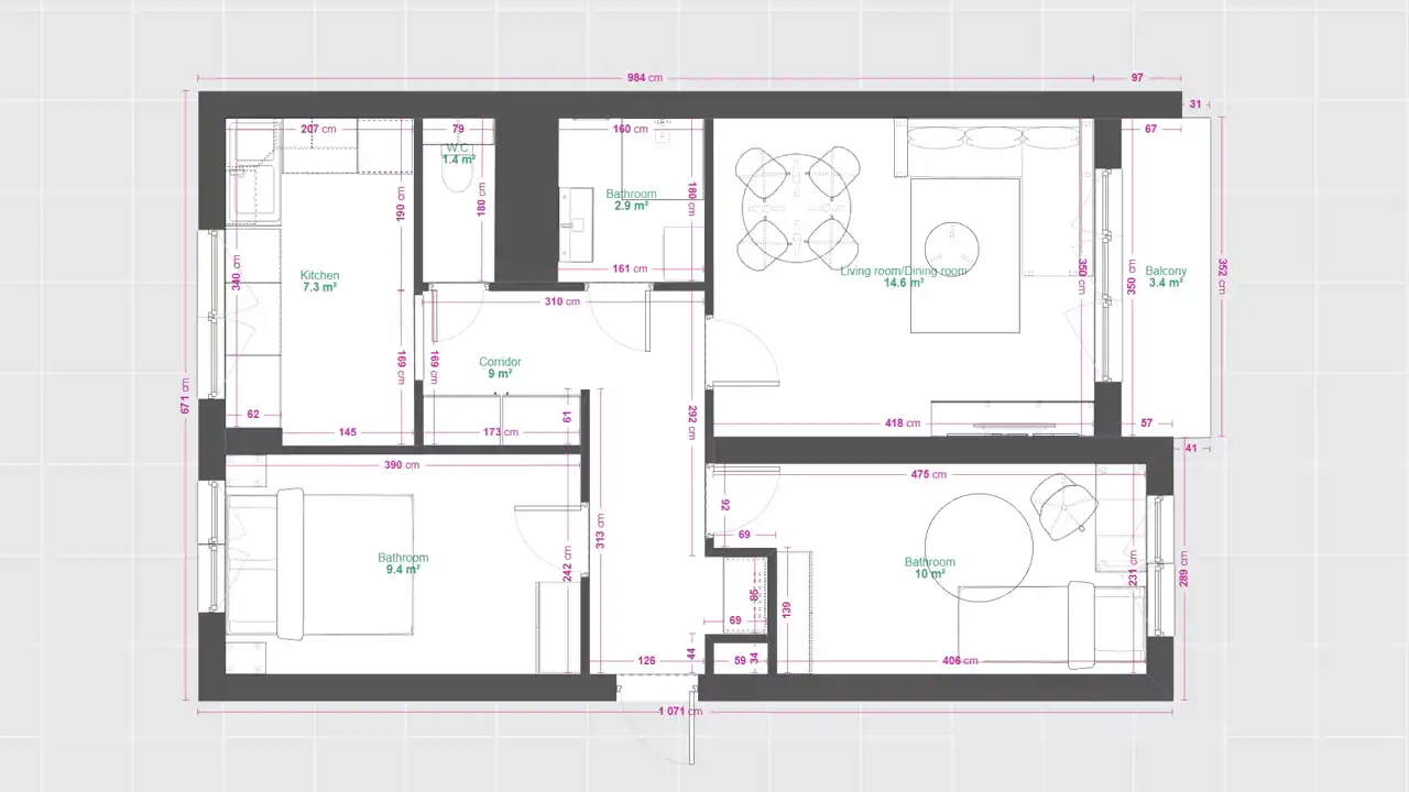
Oferujemy Państwu piękne, 3 pokojowe mieszkanie o powierzchni 53,88m2, z widną kuchnią. Lokal usytuowany jest na 2 piętrze, w monitorowanym bloku 4 piętrowym, przy ul. Dalekiej 23 w Kielcach. Nieruchomość położona jest w jednej z najbardziej atrakcyjnych i poszukiwanych lokalizacji na osiedlu KSM.
Na powierzchnię mieszkania składają się:
- ustawny salon z balkonem - 14,6m2
- przestronna sypialnia - 9,4m2
- funkcjonalny pokój, który idealnie sprawdzi się jako pokój dziecięcy - 10m2
- w pełni wyposażona łazienka - 2,9m2
- osobne WC - 1,4m2
- przedpokój z szafą w zabudowie - 9m2
Do mieszkania przynależy piwnica.
Wykonane prace remontowe:
- wymiana instalacji elektrycznej oraz wodno-hydraulicznej
- położenie gładzi gipsowych oraz pomalowanie ścian
- położenie nowych paneli, płytek
- generalny remont łazienki
- wymiana drzwi wewnętrznych i zewnętrznych
- instalacja nowoczesnego oświetlenie LED.
- wykonana nowoczesna zabudowa kuchenna
W mieszkaniu znajduje się duża, funkcjonalna, widna kuchnia, w której została wykonana wysokiej klasy zabudowa meblowa przez stolarza. Zainstalowano wszelkie niezbędne sprzęty AGD znanych marek tj: okap, piekarnik elektryczny, płyta indukcyjna, lodówko-zamrażarka oraz zmywarka. Łazienki w mieszkaniu zostały zaprojektowane w nowoczesnym stylu. Zainstalowano w niej wysokiej klasy armaturę oraz energooszczędne i modne oświetlenie LED, a także wstawiono pralkę. W przedpokoju znajduje się wysokiej klasy szafa z lustrem w zabudowie wykonana przez stolarza na wymiar. Do wykończenia mieszkania zostały użyte wysokogatunkowe materiały w nowoczesnym dizajnie: świetnej jakości farby w jasnych kolorach, panele o wysokiej klasie oraz energooszczędne i modne oświetlenie. Zabudowa sypialni widoczna na zdjęciach poglądowych, jest dostępna za dodatkową dopłatą.
Nieruchomość położona jest w wyjątkowo dogodnej lokalizacji, która idealnie sprawdzi się jako miejsce dla rodziny, doskonałe położenie oraz bliskość niezbędnej infrastruktury sprawia, że mieszkanie stanowi bardzo opłacalną lokatę kapitału jeżeli chodzi o wynajem. Zaledwie 5 minut drogi autem dzieli prezentowaną nieruchomość od CH ECHO. W promieniu kilkudziesięciu metrów znajdują się również, szkoły, przedszkola, przychodnia zdrowia. Bardzo blisko są również przystanki komunikacji miejskiej zapewniające dobre połączenie z centrum oraz wszystkimi innymi dzielnicami miasta.
Jeżeli chcesz bezpiecznie przeprowadzić transakcję kupna, to koniecznie skorzystaj z pomocy profesjonalnego biura nieruchomości, które ma doświadczenie w obrocie nieruchomościami, zna rynek i współpracuje z kancelarią notarialną. We współpracy z radcą prawnym przygotowujemy umowę przedwstępną, uczestniczymy w negocjacjach, pomagamy uregulować stan prawny nieruchomości, kompletujemy wszystkie dokumenty do aktu notarialnego, uczestniczymy w akcie notarialnym, wykonujemy protokół zdawczo odbiorczy. Tę kompleksową usługę wykonamy na preferencyjnych warunkach.
Współpracujemy z najlepszymi ekspertami finansowymi w Kielcach, którzy znajdą dla Państwa najtańszy kredyt hipoteczny i przeprowadzą sprawnie całą procedurę kredytową. Dzięki współpracy ekspertów proces kredytowy jest przeprowadzony skutecznie i Państwa zaangażowanie co do formalności jest ograniczone do minimum.
Opiekun oferty:
Agata Kunecka