Mieszkanie na sprzedaż












Szczegóły ogłoszenia
- Symbol oferty TWJ-MS-2607
- Typ oferty mieszkanie na sprzedaż
- Cena 557 000 zł
- Charakterystyka mieszkania 58.9 m2, 3 pokoje
- Budynek blok; rok budowy: 1980
- Rozkład mieszkania 2p piętro
- Media Ogrzewanie: C.O. miejskie; Woda: ciepła - terma; Gaz: brak
- Balkon jest
- Czynsz Czynsz letni: 500 zł
- Dojazd ASFALTOWA
- Instalacje ELEKTRYCZNA
- Okna PCV
- Otoczenie centrum miasta
- Stan lokalu bardzo dobry
- Technologia budowlana wielka płyta
- Umeblowanie częściowo umeblowane
Lokalizacja
- Adres świętokrzyskie, Kielce, Szydłówek
Opis nieruchomości
Tylko u NAS!
Biuro Nieruchomości TWOJE M
prezentuje ofertę sprzedaży lub zamiany
Ustawnego, dwustronnego, 3 pokojowego mieszkania po generalnym remoncie.
Idealne dla rodziny jak i pod inwestycje z uwagi na kapitalną lokalizację !
Oferujemy Państwu na sprzedaż mieszkanie 3 pokojowe o powierzchni 58,90 m2, z widną, osobną kuchnią. Lokal zlokalizowany na 2 piętrze w kameralnym 4 piętrowym bloku, przy ul. Starej 2. Nieruchomość położona w Centrum Kielc, duży potencjał inwestycyjny.
Główne atuty nieruchomości
- po generalnym remoncie
- bliska odległość do punktów codziennego użytku
- oddzielna, widna kuchnia
- balkon
- miejsca parkingowe dla mieszkańców
- gotowe do wprowadzenia
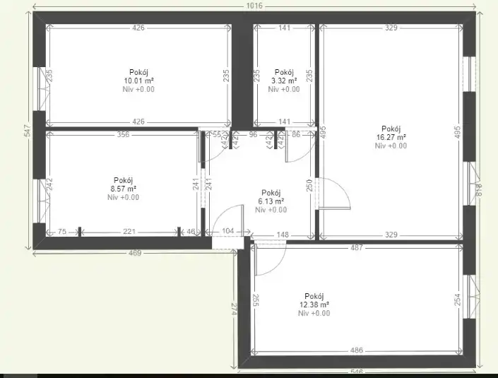
Na powierzchnię mieszkania składają się:
- ustawny salon o powierzchni 16,27 m2
- osobna, widna kuchnia - 8,57 m2,
- przestronna sypialnia z miejscem na szafę - 12,38 m2,
- druga sypialnia/pokój dziecięcy - 10 m2,
- łazienka z wanną i wc - 3,32 m2,
- przedpokój z szafą - 6,13 m2.
Do nieruchomości przynależy również duża piwnica o powierzchni 4 m2 .
Piękne mieszkanie po generalnym remoncie! Nowoczesny design, wysokiej jakości wykończenia - idealne miejsce do życia dla wymagających osób. Zainstalowane wszelkie niezbędne sprzęty AGD codziennego użytku.
Wykonane prace remontowe:
- wymiana instalacji elektrycznej i wodno-kanalizacyjnej
- wymiana podłóg na wysokiej jakości panele podłogowe oraz gres
- wymiana drzwi wewnętrznych i zewnętrznych
- położenie gładzi gipsowych na ścianach oraz pomalowanie na modne, neutralne kolory
- wstawienie nowych sprzętów AGD (okap, piekarnik, płyta grzewcza, lodówka, zmywarka)
- wymiana oświetlenia
Dużym atutem nieruchomości jest jej lokalizacja – bliska odległość do Centrum miasta. Pożądana ekspozycja okien wschód – zachód. Dogodna lokalizacja pozwala na łatwy dostęp do niezbędnej infrastruktury, która ułatwia codzienne życie mieszkańcom.
Nieruchomość posiada świadectwo charakterystyki energetycznej.
Dla nieruchomości prowadzona jest księga wieczysta bez żadnych obciążeń.
Najbliższe odległości:
- Collegium Medicum - 5 minut
- Przedszkole – 1 minuta
- Politechnika Świętokrzyska – 3 minuty
- Centrum / Rynek - 6 minut
- Galeria Korona - 5 minut
- Sklep - 2 minuty
- Kościół – 3 minuty
Cena: 557 000 zł
Zapraszam do kontaktu w celu uzyskania dodatkowych informacji oraz umówienia się na prezentację
Weronika Mularczyk
Licencjonowany Pośrednik Nieruchomości
Numer licencji PFRN 31551
Współpracujemy z najlepszymi ekspertami finansowymi w Kielcach, którzy znajdą dla Państwa najtańszy kredyt hipoteczny i przeprowadzą sprawnie całą procedurę kredytową. Dzięki współpracy ekspertów proces kredytowy jest przeprowadzony skutecznie, a Państwa zaangażowanie co do formalności jest ograniczone do minimum.
Jeżeli chcesz bezpiecznie przeprowadzić transakcję kupna, koniecznie skorzystaj z pomocy profesjonalnego biura nieruchomości, które ma doświadczenie w obrocie nieruchomościami, zna rynek i współpracuje z kancelarią notarialną. We współpracy z radcą prawnym przygotowujemy umowę przedwstępną, uczestniczymy w negocjacjach, pomagamy uregulować stan prawny nieruchomości, kompletujemy wszystkie dokumenty do aktu notarialnego, uczestniczymy w akcie notarialnym, wykonujemy protokół zdawczo odbiorczy. Tę kompleksową usługę wykonamy na preferencyjnych warunkach.