Mieszkanie na sprzedaż




















Szczegóły ogłoszenia
- Symbol oferty TWJ-MS-2523
- Typ oferty mieszkanie na sprzedaż
- Cena 587 000 zł
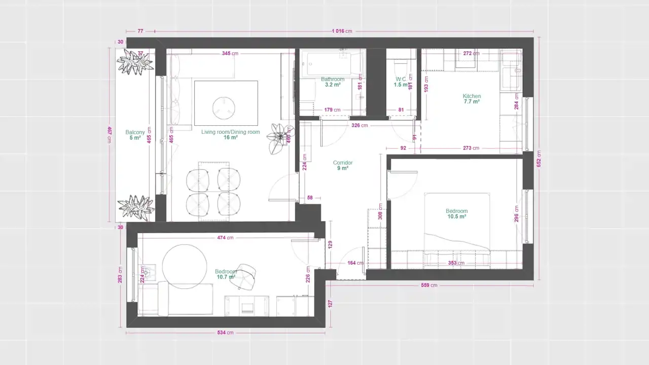
- Charakterystyka mieszkania 58.77 m2, 3 pokoje
- Budynek blok; rok budowy: 1980
- Rozkład mieszkania 3p piętro
- Media Ogrzewanie: C.O. miejskie; Woda: ciepła - terma; Gaz: brak
- Balkon jest
- Instalacje nowe
- Okna PCV
- Stan lokalu bardzo dobry
- Technologia budowlana wielka płyta
- Umeblowanie częściowo umeblowane
Lokalizacja
- Adres świętokrzyskie, Kielce, KSM
Opis nieruchomości
Tylko u NAS!
Biuro Nieruchomości TWOJE M
prezentuje ofertę sprzedaży lub zamiany
3 pokojowego mieszkania z balkonem po generalnym remoncie.
Idealne dla rodziny jak i pod inwestycje z uwagi na bardzo dobrą lokalizację.
Mieszkanie dostępne od zaraz.
Na sprzedaż lub zamianę mieszkanie 3 pokojowe o powierzchni 58,77 m2 z widną, osobną kuchnią, zlokalizowane na 3 piętrze w kameralnym 4 piętrowym bloku przy ul. Dalekiej 19 w dzielnicy KSM. Nieruchomość położona w jednej z atrakcyjniejszych lokalizacji Kielc.
Załączone zdjęcia odzwierciedlają rzeczywisty wygląd oferowanego mieszkania.
Główne atuty nieruchomości
- cicha okolica, bliska odległość do punktów codziennego użytku
- oddzielna, widna kuchnia
- duży balkon
- miejsca parkingowe dla mieszkańców
- bliskość terenów zielonych
Na powierzchnię mieszkania składają się:
- duży, widny pokój dzienny z wyjściem na balkon – 16 m2
- 2 ustawne pokoje / sypialnie – 10.5 m2 , 10.7 m2
- jasna kuchnia – 7.7 m2
- łazienka z wanną – 3,2 m2
- osobne WC – 1.5 m2
- balkon – 5 m2
- duży korytarz z szafą, z którego mamy oddzielne wejścia do pomieszczeń – 9.0 m2
Do nieruchomości przynależy piwnica - około 10m2.
Piękne mieszkanie po generalnym remoncie. Nowoczesny design, wysokiej jakości wykończenia - idealne miejsce do życia dla wymagających osób. Zainstalowane wszelkie niezbędne sprzęty AGD codziennego użytku. Stałe zabudowy meblowe wykonane przez sprawdzonego stolarza.
Lokal zabezpieczają drzwi antywłamaniowe.
Ogrzewanie miejskie, woda ciepła z inteligentnej termy.
Wykonane prace remontowe:
- wymiana instalacji elektrycznej i wodnokanalizacyjnej
- wymiana podłóg na wysokiej jakości panele podłogowe oraz gres
- wymiana drzwi wewnętrznych i zewnętrznych
- położenie gładzi gipsowych na ścianach oraz pomalowanie na modne, neutralne kolory
- wykonanie zabudowy meblowej na wymiar przez stolarza w kuchni, łazience oraz przedpokoju
- wstawienie nowych sprzętów AGD (okap, piekarnik, płyta grzewcza, lodówka, zmywarka)
- wymiana okien
- wymiana parapetów
- wymiana oświetlenia
Dużym atutem nieruchomości jest jej lokalizacja – bliska odległość do Centrum miasta, przy jednoczesnej ciszy i spokoju. Pożądana ekspozycja okien południe - północ. Dogodna lokalizacja pozwala na łatwy dostęp do niezbędnej infrastruktury, która ułatwia codzienne życie mieszkańcom.
Nieruchomość posiada świadectwo charakterystyki energetycznej.
Najbliższe odległości:
- Przedszkole – 1 minuta
- Szkoła Podstawowa numer 15 - 5 minut
- Politechnika - 10 minut
- UJK 15 minut
- Centrum / Rynek - 8 minut
- Galeria Korona - 10 minut
- Galeria Echo - 10 minut
- Sklep - 1 minuta
Cena: 587 000 zł
Zapraszam na prezentację mieszkania
Magdalena Jurek
Licencjonowany pośrednik w obrocie nieruchomościami
numer licencji 31264
Współpracujemy z najlepszymi ekspertami finansowymi w Kielcach, którzy znajdą dla Państwa najtańszy kredyt hipoteczny i przeprowadzą sprawnie całą procedurę kredytową. Dzięki współpracy ekspertów proces kredytowy jest przeprowadzony skutecznie, a Państwa zaangażowanie co do formalności jest ograniczone do minimum.
Jeżeli chcesz bezpiecznie przeprowadzić transakcję kupna, koniecznie skorzystaj z pomocy profesjonalnego biura nieruchomości, które ma doświadczenie w obrocie nieruchomościami, zna rynek i współpracuje z kancelarią notarialną. We współpracy z radcą prawnym przygotowujemy umowę przedwstępną, uczestniczymy w negocjacjach, pomagamy uregulować stan prawny nieruchomości, kompletujemy wszystkie dokumenty do aktu notarialnego, uczestniczymy w akcie notarialnym, wykonujemy protokół zdawczo odbiorczy. Tę kompleksową usługę wykonamy na preferencyjnych warunkach.