Mieszkanie na sprzedaż
836 700 zł
78 m2









1 / 9
Szczegóły ogłoszenia
- Symbol oferty PRP-MS-75612
- Typ oferty mieszkanie na sprzedaż
- Cena 836 700 zł
- Charakterystyka mieszkania 78.2 m2, 4 pokoje
- Budynek blok; rok budowy: 2025
- Rozkład mieszkania 10p piętro
- Media Ogrzewanie: miejskie; Woda: ciepła - miejska; Gaz: brak
- Balkon duży
- Dojazd asfalt
- Garaż garaż podziemny
- Ilość sypialni 3
- Instalacje nowe
- Okna PCV 3 komorowe
- Otoczenie zabudowa mieszana
- Stan lokalu deweloperski
- Technologia budowlana cegła
- Winda Tak
Lokalizacja
- Adres świętokrzyskie, Kielce, KSM
Opis nieruchomości
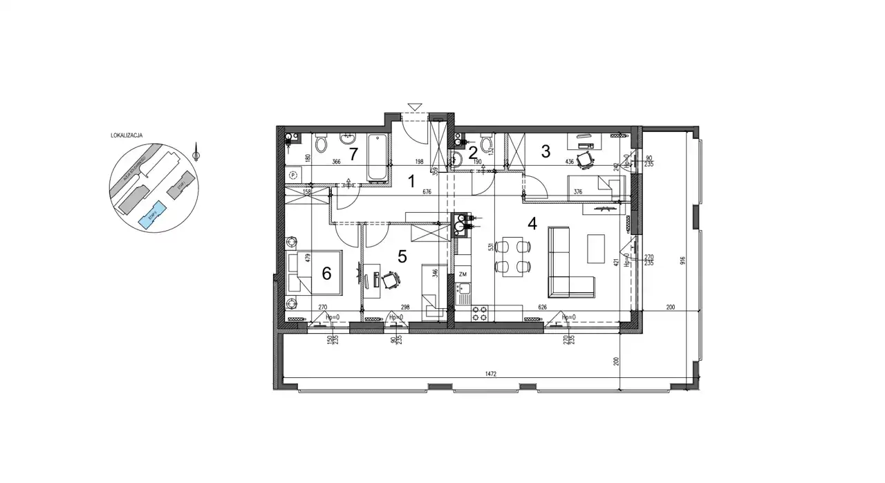
Na sprzedaż 4 - pokojowe mieszkanie o pow. 78,20 m2 dostępne na I piętrze budynku zlokalizowanego w nowoczesnej inwestycji, położonej na osiedlu KSM przy Alei Solidarności oraz ul. Górnej, oferowane w standardzie deweloperskim.
W skład mieszkania wchodzą:
a) hall (pow. 9,81 m2),
b) salon z aneksem kuchennym (pow. 28,56 m2),
c) 3 sypialnie (pow. 9,75 m2; 10,39 m2; 11,29 m2;),
d) łazienka (pow. 6,25 m2),
e) WC (pow. 2,15 m2).
Do lokalu przynależy balkon o powierzchni 42,75 m2.
Ogrzewanie i ciepła woda z sieci miejskiej (brak piecyków gazowych w mieszkaniach).
Planowany termin zakończenia inwestycji: IV kwartał 2025.
Inwestycja składać się będzie z pięciu 10-cio piętrowych budynków, powstających etapami. Drugi budynek inwestycji zawiera 94 komfortowe mieszkania oraz 6 lokali usługowych. W części podziemnej zaprojektowano dwupoziomowy podziemny garaż.
Na dachu budynku zaprojektowane zostały panele fotowoltaiczne, do obsługi części wspólnych budynku. Teren nieruchomości zostanie ogrodzony i wyposażony w instalacje domofonową i monitoring. Budynki zostaną wyposażone w cichobieżne windy. Ciepło dostarczane z sieci miejskiej.
W pobliżu inwestycji znajdują się: Politechnika Świętokrzyska, Uniwersytet Jana Kochanowskiego, szkoła podstawowa, przedszkole, żłobek, centra medyczne, galeria handlowa "Echo". Dogodne połączeniem z centrum miasta i drogami krajowymi.
Możliwość zakupu miejsca postojowego w garażu podziemnym na poziomie -1 w cenie 54 000 PLN lub na poziomie -2 w cenie 49 000 PLN. Możliwość zakupu komórki lokatorskiej w cenie 5 900 PLN/m2.
W skład mieszkania wchodzą:
a) hall (pow. 9,81 m2),
b) salon z aneksem kuchennym (pow. 28,56 m2),
c) 3 sypialnie (pow. 9,75 m2; 10,39 m2; 11,29 m2;),
d) łazienka (pow. 6,25 m2),
e) WC (pow. 2,15 m2).
Do lokalu przynależy balkon o powierzchni 42,75 m2.
Ogrzewanie i ciepła woda z sieci miejskiej (brak piecyków gazowych w mieszkaniach).
Planowany termin zakończenia inwestycji: IV kwartał 2025.
Inwestycja składać się będzie z pięciu 10-cio piętrowych budynków, powstających etapami. Drugi budynek inwestycji zawiera 94 komfortowe mieszkania oraz 6 lokali usługowych. W części podziemnej zaprojektowano dwupoziomowy podziemny garaż.
Na dachu budynku zaprojektowane zostały panele fotowoltaiczne, do obsługi części wspólnych budynku. Teren nieruchomości zostanie ogrodzony i wyposażony w instalacje domofonową i monitoring. Budynki zostaną wyposażone w cichobieżne windy. Ciepło dostarczane z sieci miejskiej.
W pobliżu inwestycji znajdują się: Politechnika Świętokrzyska, Uniwersytet Jana Kochanowskiego, szkoła podstawowa, przedszkole, żłobek, centra medyczne, galeria handlowa "Echo". Dogodne połączeniem z centrum miasta i drogami krajowymi.
Możliwość zakupu miejsca postojowego w garażu podziemnym na poziomie -1 w cenie 54 000 PLN lub na poziomie -2 w cenie 49 000 PLN. Możliwość zakupu komórki lokatorskiej w cenie 5 900 PLN/m2.
>>Kupujący zwolniony z kosztów obsługi biura i podatku PCC<<
Dane kontaktowe do agenta: Jacek Kotlarz, tel: 888 889 441, e-mail: jacek.kotlarz@properco.pl
For more information in English please call: 888 889 441, e-mail: jacek.kotlarz@properco.pl
For more information in English please call: 888 889 441, e-mail: jacek.kotlarz@properco.pl
Nota prawna
Opis oferty zawarty na stronie internetowej sporządzany jest na podstawie oględzin nieruchomości oraz informacji uzyskanych od właściciela, może podlegać aktualizacji i nie stanowi oferty określonej w art. 66 i następnych K.C.
Kalkulator kredytowy
Formularz kontaktowy