Mieszkanie na sprzedaż
947 000 zł
95 m2







1 / 7
Szczegóły ogłoszenia
- Symbol oferty PRP-MS-75605
- Typ oferty mieszkanie na sprzedaż
- Cena 947 000 zł
- Charakterystyka mieszkania 94.7 m2, 5 pokoi
- Budynek blok; rok budowy: 2024
- Rozkład mieszkania 10p piętro
- Media Ogrzewanie: miejskie; Woda: ciepła - sieć; Gaz: brak
- Balkon duży
- Dojazd asfalt
- Garaż garaż podziemny
- Ilość sypialni 4
- Instalacje nowe
- Okna PCV 3 komorowe
- Otoczenie zabudowa mieszana
- Stan lokalu deweloperski
- Technologia budowlana cegła
- Winda Tak
Lokalizacja
- Adres świętokrzyskie, Kielce, KSM
Opis nieruchomości
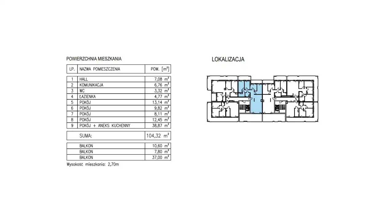
Na sprzedaż 5 - pokojowe mieszkanie o pow. 104,32 m2 dostępne na X piętrze budynku zlokalizowanego w nowej inwestycji, położonej na osiedlu KSM przy Al. Solidarności, oferowane w standardzie deweloperskim.
W skład mieszkania wchodzą:
a) hall (7,08 m2),
b) korytarz (6,76m2),
c) salon z aneksem kuchennym (38,87m2),
d) 4 pokoje (9,82 m2; 8,11 m2; 13,14m2; 12,45m2),
e) łazienka (4,77 m2),
f) WC (3,32 m2).
Do lokalu przynależą 3 balkony o pow. 10,60 m2, 7,80 m2, 37,00 m2. Ogrzewanie i ciepła woda z sieci miejskiej (brak piecyków gazowych w mieszkaniach).
Planowany termin zakończenia inwestycji: II kwartał 2024.
Inwestycja składać się będzie z pięciu 10-cio piętrowych budynków, powstających etapami. Pierwszy budynek liczy 100 komfortowych lokali mieszkalnych oraz 6 lokali usługowych. W części podziemnej zaprojektowano dwupoziomowy podziemny garaż.
Na dachu budynku zaprojektowane zostały panele fotowoltaiczne, do obsługi części wspólnych budynku. Teren nieruchomości zostanie ogrodzony i wyposażony w instalacje domofonową i monitoring. Budynki zostaną wyposażone w cichobieżne windy.
W pobliżu inwestycji znajdują się: Politechnika Świętokrzyska, Uniwersytet Jana Kochanowskiego, szkoła podstawowa, przedszkole, żłobek, centra medyczne, galeria handlowa "Echo". Dogodne połączeniem z centrum miasta i drogami krajowymi.
Adres strony internetowej, o którym mowa w art. 19a ust. 3 ustawy z dnia 20 maja 2021 r. o ochronie praw nabywcy lokalu mieszkalnego lub domu jednorodzinnego oraz Deweloperskim Funduszu Gwarancyjnym to komplexbud(kropka)info
Możliwość zakupu miejsca postojowego w garażu podziemnym na poziomie -1 w cenie 54 000 PLN lub na poziomie -2 w cenie 49 000 PLN. Możliwość zakupu komórki lokatorskiej w cenie 5 900 PLN/m2.
W skład mieszkania wchodzą:
a) hall (7,08 m2),
b) korytarz (6,76m2),
c) salon z aneksem kuchennym (38,87m2),
d) 4 pokoje (9,82 m2; 8,11 m2; 13,14m2; 12,45m2),
e) łazienka (4,77 m2),
f) WC (3,32 m2).
Do lokalu przynależą 3 balkony o pow. 10,60 m2, 7,80 m2, 37,00 m2. Ogrzewanie i ciepła woda z sieci miejskiej (brak piecyków gazowych w mieszkaniach).
Planowany termin zakończenia inwestycji: II kwartał 2024.
Inwestycja składać się będzie z pięciu 10-cio piętrowych budynków, powstających etapami. Pierwszy budynek liczy 100 komfortowych lokali mieszkalnych oraz 6 lokali usługowych. W części podziemnej zaprojektowano dwupoziomowy podziemny garaż.
Na dachu budynku zaprojektowane zostały panele fotowoltaiczne, do obsługi części wspólnych budynku. Teren nieruchomości zostanie ogrodzony i wyposażony w instalacje domofonową i monitoring. Budynki zostaną wyposażone w cichobieżne windy.
W pobliżu inwestycji znajdują się: Politechnika Świętokrzyska, Uniwersytet Jana Kochanowskiego, szkoła podstawowa, przedszkole, żłobek, centra medyczne, galeria handlowa "Echo". Dogodne połączeniem z centrum miasta i drogami krajowymi.
Adres strony internetowej, o którym mowa w art. 19a ust. 3 ustawy z dnia 20 maja 2021 r. o ochronie praw nabywcy lokalu mieszkalnego lub domu jednorodzinnego oraz Deweloperskim Funduszu Gwarancyjnym to komplexbud(kropka)info
Możliwość zakupu miejsca postojowego w garażu podziemnym na poziomie -1 w cenie 54 000 PLN lub na poziomie -2 w cenie 49 000 PLN. Możliwość zakupu komórki lokatorskiej w cenie 5 900 PLN/m2.
>>Kupujący zwolniony z kosztów obsługi biura i podatku PCC.
Wynagrodzenie biura pokrywa strona sprzedająca.<<
Wynagrodzenie biura pokrywa strona sprzedająca.<<
Dane kontaktowe do agenta: Jacek Kotlarz, tel: 888 889 441, e-mail: jacek.kotlarz@properco.pl
For more information in English please call: 888 889 441, e-mail: jacek.kotlarz@properco.pl
For more information in English please call: 888 889 441, e-mail: jacek.kotlarz@properco.pl
Nota prawna
Opis oferty zawarty na stronie internetowej sporządzany jest na podstawie oględzin nieruchomości oraz informacji uzyskanych od właściciela, może podlegać aktualizacji i nie stanowi oferty określonej w art. 66 i następnych K.C.
Kalkulator kredytowy
Formularz kontaktowy