Lokal na wynajem
0 zł
15 m2




1 / 4
Szczegóły ogłoszenia
- Symbol oferty PKP-LW-432
- Typ oferty lokal na wynajem
- Czynsz wynajmu 0 zł / miesiąc
- Charakterystyka mieszkania 14.97 m2
- Rozkład mieszkania parter piętro
- Media Ogrzewanie: centralne
- Dojazd droga utwardzona
- Kaucja trzymiesięczna
- Okna PCV
- Stan lokalu po remoncie
Lokalizacja
- Adres opolskie, kluczborski, Kluczbork
Opis nieruchomości
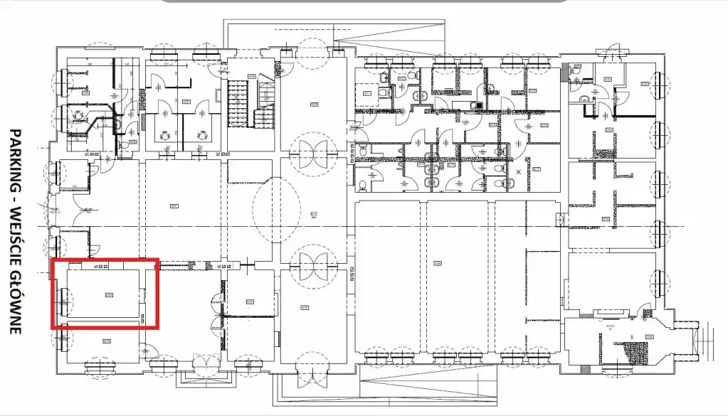
Lokal w budynku dworca w Kluczborku
Do wynajęcia lokal o powierzchni 14,97 m2 w budynku dworca w Kluczborku. Lokal położony od północno zachodniej strony budynku dworca, z wejściem od strony holu. Duże, wysokie okna zapewniają dobre naświetlenie pomieszczenia. Jedno z okien znajduje się od frontalnej strony dworca, przez co jest idealnym miejscem na reklamę, która będzie widoczna przez każdego klienta odwiedzającego dworzec.
W lokalu znajduje się dodatkowo duże okno wewnętrzne od strony holu. Może ono pełnić funkcję okna sprzedażowego lub miejsca do wydawania lub przyjmowania towarów i paczek.
Lokal jest wykończony i gotowy do przejęcia. Na podłogach glazura, na ścianach gładzie, pomalowane białą farbą. Najemca nie potrzebuje ponosić żadnych kosztów związanych z przystosowaniem lokalu do użytku.
W lokalu znajduje się podłączenie do wody.
Dworzec w Kluczborku jest położony przy ul. Wołczyńskiej. Komunikację pieszą z budynku na perony zapewniają estakady o konstrukcji stalowej wykonanej nad torami, a dojazd do budynku stacyjnego jest możliwy od strony wiaduktu kolejowego.
Budynek dworca jest po modernizacji i został oddany do użytku w grudniu 2013r.
Wszystkie lokale są ogrzewane centralnym ogrzewaniem, a cały budynek monitorowany i podlega całodobowej ochronie. Obiekt przystosowany dla osób niepełnosprawnych.
Do wynajęcia lokal o powierzchni 14,97 m2 w budynku dworca w Kluczborku. Lokal położony od północno zachodniej strony budynku dworca, z wejściem od strony holu. Duże, wysokie okna zapewniają dobre naświetlenie pomieszczenia. Jedno z okien znajduje się od frontalnej strony dworca, przez co jest idealnym miejscem na reklamę, która będzie widoczna przez każdego klienta odwiedzającego dworzec.
W lokalu znajduje się dodatkowo duże okno wewnętrzne od strony holu. Może ono pełnić funkcję okna sprzedażowego lub miejsca do wydawania lub przyjmowania towarów i paczek.
Lokal jest wykończony i gotowy do przejęcia. Na podłogach glazura, na ścianach gładzie, pomalowane białą farbą. Najemca nie potrzebuje ponosić żadnych kosztów związanych z przystosowaniem lokalu do użytku.
W lokalu znajduje się podłączenie do wody.
Dworzec w Kluczborku jest położony przy ul. Wołczyńskiej. Komunikację pieszą z budynku na perony zapewniają estakady o konstrukcji stalowej wykonanej nad torami, a dojazd do budynku stacyjnego jest możliwy od strony wiaduktu kolejowego.
Budynek dworca jest po modernizacji i został oddany do użytku w grudniu 2013r.
Wszystkie lokale są ogrzewane centralnym ogrzewaniem, a cały budynek monitorowany i podlega całodobowej ochronie. Obiekt przystosowany dla osób niepełnosprawnych.
Nota prawna
Opis oferty zawarty na stronie internetowej sporządzany jest na podstawie oględzin nieruchomości oraz informacji uzyskanych od właściciela, może podlegać aktualizacji i nie stanowi oferty określonej w art. 66 i następnych K.C.
Formularz kontaktowy