Obiekt na sprzedaż

























Szczegóły ogłoszenia
- Symbol oferty TRA-BS-5106
- Typ oferty obiekt na sprzedaż
- Cena 2 649 990 zł
- Charakterystyka mieszkania 220 m2, do zamieszkania
- Media Ogrzewanie: C.O. GAZOWE; Woda: ciepła - miejska; Kanalizacja: miejska; Prąd: jest; Gaz: jest
- Bezpieczeństwo Rolety antywłamaniowe
- Miejsce parkingowe Tak
- Dojazd asfalt
- Działka Zagospodarowana, płaska, nieregularny
- Garaż w budynku
- Instalacje dobre
- Okna PCV
- Otoczenie zabudowa mieszana
- Taras taras duży
Lokalizacja
- Adres dolnośląskie, Kobierzyce, Bielany Wrocławskie
Opis nieruchomości
(dwie niezależne funkcje, po termomodernizacji, fotowoltaika, możliwa wysoka stopa zwrotu (wynajem), 15 minut od centrum Wrocławia)
Dla osób poszukujących ciekawej lokalizacji pod usługi, handel lub biuro. Jeżeli uważasz, że Twoje miejsce prowadzenia działalności gospodarczej stanowi wizytówkę Twojej firmy, jesteś w dobrym miejscu! Skontaktuj się ze mną a ja spróbuje zachęcić Cię do prezentacji nieruchomości.
*Zobacz film z drona na Traczyk Nieruchomości YouTube channel.
MOŻLIWOŚĆ MONTAŻU WITRYN SPRZEDAŻOWYCH W CZĘŚCI USŁUGOWEJ BUDYNKU
OPIS
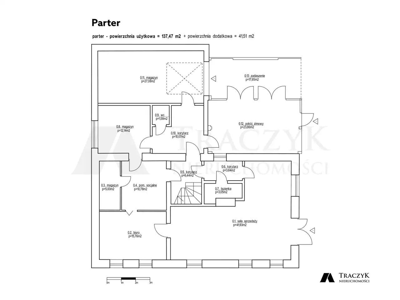
Budynek usytuowany na działce w kształcie trapezu, w całości ogrodzony z bramą wjazdową na pilota. Budynek po termomodernizacji z nowoczesnym dachem oraz zadbaną elewacją, z łatwością może zostać dostosowany do różnych potrzeb przyszłych właścicieli. Prezentowana nieruchomość składa się z dwóch kondygnacji plus nieużytkowego strychu. W obiekcie przewidziano następujące pomieszczenia:
POZIOM 0 (137,47 m2) - przeznaczony do użytku komercyjnego — idealny na restaurację z barem i zapleczem sanitarno - kuchennym, sklep, punkt usługowy
- sala sprzedaży/obsługa gości (41,93 m2)
- biuro/bar (15,76 m2)
- magazyn
- magazyn
- pomieszczenie socjalne
- komunikacja
- łazienka z WC
- WC
- garaż jednostanowiskowy/magazyn (27,08 m2)
- pokój zimowy/showroom (23,86 m2)
- zadaszenie/możliwość obsługi klienta w ogrodzie (17,65 m2)
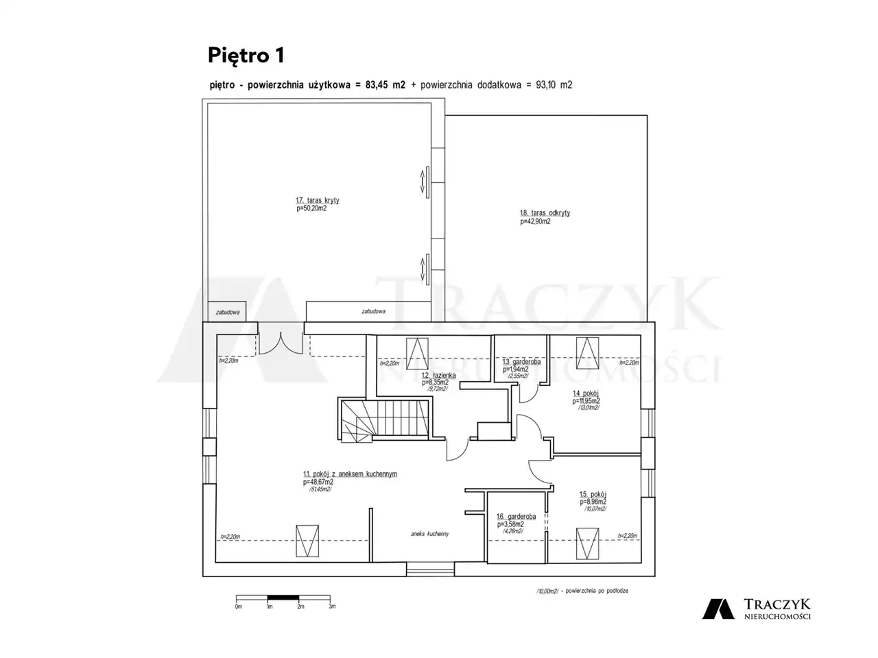
POZIOM 1 (83,45 m2) - komfortowa przestrzeń biurowa częściowo z zadaszonym tarasem (obecnie funkcja mieszkalna)
- salon/pokój z aneksem kuchennym (48,67 m2)
- sypialnia/pokój 2
- pokój 3/gabinet do pracy
- łazienka/pokój kąpielowy z wanną (8,35 m2)
- garderoba
- pokój 4/garderoba
- komunikacja
- taras kryty
- taras odkryty
MEDIA: prąd, woda (miejska), kanalizacja (miejska), CO (gaz - piec dwu funkcyjny, bojler elektryczny), sieć telekomunikacyjna.
Fotowoltaika (zmniejszenie kosztów zużycia prądu), możliwość ładowania samochodu elektrycznego.
Internet – radiowy, bezprzewodowy LTE, światłowód (przy działce/możliwość instalacji)
Garaż jednostanowiskowy (obecnie magazyn z elektryczną bramą wjazdową). Przed budynkiem liczne miejsca parkingowe, bezpośrednio przy ulicy prywatne miejsca postojowe dla klientów. Z boku budynku możliwość wybudowania dodatkowego zadaszenia na kolejny samochód.
Dlaczego warto rozważyć zakup tej nieruchomości?
- bliskość dużego rynku - jedna z najważniejszych części aglomeracji wrocławskiej - dostęp do zamożnej i zróżnicowanej grupy odbiorców
- lokalizacja tuż przy ul. Wrocławskiej - wysokie natężenie ruchu sprzyja widoczności sklepu/biura/usług
- przy autostradzie A4: łączy Bielany Wrocławskie z dużymi miastami jak Katowice, Kraków, i Wrocław oraz niemieckimi ośrodkami handlowymi, co zapewnia łatwą logistykę
- bliskość międzynarodowego portu lotniczego (do 20 minut)
- obszar znany jako strefa logistyczna i handlowa Wrocławia
- wartość nieruchomości w Bielanach Wrocławskich wzrosła średnio o 14% rok do roku. To wskazuje na rosnące zainteresowanie inwestycyjne w tej okolicy.
- na parkingu nieruchomości zmieści się kilkanaście aut klientów oraz pojazdy dostawcze. Taka infrastruktura to rzadkość w Bielanach Wrocławskich
- możliwość aranżacji profesjonalnego showroomu
- fotowoltaika: system fotowoltaiczny może obniżyć koszty energii o 30-40% rocznie (przy zużyciu na poziomie 8-10 MWh rocznie, typowym dla sklepu średniej wielkości
- przyjazność dla e-commerce: bliskość węzłów logistycznych (np. Amazon we Wrocławiu) skraca czas dostaw przy sprzedaży internetowej
- Internet światłowodowy: szybki internet umożliwia obsługę płatności, prowadzenie e-sklepu i zdalną diagnostykę sprzętu
- zimowy ogród jako showroom premium: ogród zimowy może pełnić funkcję strefy VIP, w której klienci testują sprzęt lub negocjują zakup usług
- ekologiczny wizerunek marki: fotowoltaika i możliwość organizacji eventów promujących ekologię wpisują się w trendy proekologiczne
- różnorodność działalności: parter idealny na sklep/serwis/usługi, a piętro jako przestrzeń biurowa lub pod wynajem
- odległość do centrum Wrocławia: tylko 15 minut jazdy samochodem.
*Zobacz film z drona na Traczyk Nieruchomości YouTube channel.
Ten dom warto zobaczyć! Zadzwoń i umów się na prezentację. Odpowiem na wszelkie pytania.
Traczyk Nieruchomości
Oferta na wyłączność
Pomożemy Ci w zakupie tej nieruchomości, sprawdziliśmy jej stan prawny i dokumenty. W odpowiednim czasie nasz notariusz przygotuje umowę notarialną a doradca kredytowy wybierze najlepszy kredyt w banku, wypełni wszystkie dokumenty za Ciebie.
Niniejsze ogłoszenie nie stanowi oferty w rozumieniu przepisów Kodeksu Cywilnego oraz innych właściwych przepisów prawnych, a dane w niej zawarte mają jedynie charakter informacyjny.
***Rekrutujemy! Dołącz do naszego Zespołu. Sprawdź z kim chętnie nawiążemy współpracę na naszej stronie internetowej w zakładce O firmie -praca.