Obiekt na sprzedaż










Szczegóły ogłoszenia
- Symbol oferty PLM-BS-478
- Typ oferty obiekt na sprzedaż
- Cena 3 600 000 zł
- Charakterystyka mieszkania 1000 m2
- Media Woda: tak - miejska; Kanalizacja: na działce; Prąd: w budynku; Gaz: tak - miejski
- Miejsce parkingowe Tak
- Dojazd płyty betonowe
Lokalizacja
- Adres mazowieckie, Kobyłka
Opis nieruchomości
Na sprzedaż obiekt składający się z części usługowej i części mieszkalnej, w bardzo atrakcyjnej lokalizacji - położony blisko centrum miasta, a jednocześnie w otoczeniu drzew i zieleni.
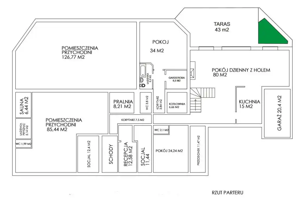
Budynek o powierzchni ok. 1000 m2, dwukondygnacyjny, niepodpiwniczony, z recepcją na parterze Zainstalowana jest również stacjonarna sauna. Media miejskie. Sieć komputerowa, telefon, Internet, monitoring. Ogrzewanie własne, gazowe.
Rozdział obwodów części użytkowej i mieszkalnej- nowe oddzielne piece co i oddzielny licznik gazowy na część usługową..
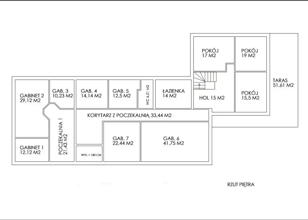
Obecnie parter jest wynajęty na prowadzenie działalności medycznej, piętro wymaga modernizacji.
Sześciopokojowa część mieszkalna oddzielona jest od części usługowej, ma własne wejście, garaż i schody na piętro, oraz duże tarasy na parterze i piętrze.
Działka o powierzchni 3400 m2, ogrodzona, zagospodarowana, Na działce budynek gospodarczy o powierzchni około.130 m2 z dwoma wrotami garażowymi, oraz własny, duży parking.
Obiekt może doskonale funkcjonować jako przychodnia lekarska, dom opieki, przedszkole, centrum zdrowia i urody itp.
Istnieje możliwość rozbudowy obiektu i powiększenia działki.
Właściciele mają zezwolenie na wybudowanie hali om pow. około 250 m2, można starać się o zmianę pozwolenia na wybudowanie budynku mieszkalnego.
Zapraszam do kontaktu.