Mieszkanie na sprzedaż



Szczegóły ogłoszenia
- Symbol oferty GLDV-MS-12
- Typ oferty mieszkanie na sprzedaż
- Cena 415 000 zł
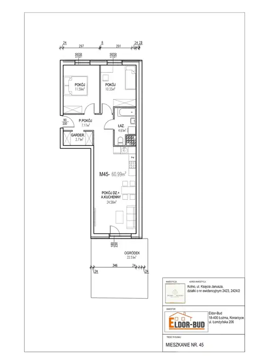
- Charakterystyka mieszkania 60.99 m2, 3 pokoje
- Budynek apartamentowiec
- Rozkład mieszkania parter piętro
- Stan lokalu deweloperski
Lokalizacja
- Adres podlaskie, kolneński, Kolno
Opis nieruchomości
WYJĄTKOWE MIESZKANIA W PIĘKNEJ OKOLICY - NOWE KOLNO
OPIS
- 3-pokojowe mieszkanie numer 45 na poziomie 0 w budynku w Inwestycji "Nowe Kolno" od Dewelopera ELDOR-BUD Sp. z o.o.
- ponadstandardowa jakość wykonania mieszkań
- okna PCV, od zewnątrz w kolorze brązowym, od wewnątrz białe
- taras z ogródkiem (płyta betonowa monolityczna wraz z deską kompozytową)
- dodatkowo można zakupić garaż w cenie 30 000 zł, parking naziemny w cenie 15 000 zł oraz komórkę lokatorską w cenie 3000 zł/m2 w zależności od metrażu
- Park Miejski (3 minuty rowerem)
- Przystanek autobusowy (9 minut spacerem)
- Media Expert (12 minut spacerem)
- Biedronka (10 minut spacerem)
Nowe Kolno - poznaj inwestycję
Inwestycja Nowe Kolno to zabudowa wielorodzinna zlokalizowana przy ulicy Księcia Janusza w Kolnie.
Inwestycja to łącznie 54 lokali mieszkalnych na IV kondygnacjach o zróżnicowanej powierzchni od 40,96 m2 do 65,17 m2 z dodatkowymi komórkami lokatorskimi.
Do mieszkań na parterze przyporządkowane są zielone ogródki których metraż zaczyna się od 17,93 m2 do 35,17m2.
Balkony mają powierzchnię od 5,50 do 14,22 m2.
Do dyspozycji mieszkańców są 46 miejsca parkingowe w hali garażowej oraz 13 miejsc postojowych zewnętrznych.
W bezpośrednim sąsiedztwie inwestycji dominuje przede wszystkim zieleń i niska zabudowa – przyszli mieszkańcy będą mogli cieszyć się każdego dnia naturalnym widokiem, który nie jest zasłonięty np. blokowiskiem.
Nowe Kolno - poznaj lokalizację
Kolno, ul. Księcia Janusza
- 1 km do centrum
- 2 km szkoła podstawowa
- 3 km Park Miejski oraz Urząd Miasta
- tuż przy Drodze Krajowej 63
- w okolicy skrzyżowanie z Drogą Wojewódzką 647
- Biedronka (500 m, 10 minut spacerem)
- Media Expert (650 m, 12 minut spacerem)
- Kościół Rzymskokatolicki (200 m2, 3 minuty spacerem)
Eldor-Bud Ostrołęka Sp. z o.o. to polska firma rodzinna z ponad 11-letnim doświadczeniem w branży nieruchomości. Wybudowaliśmy oraz przekazaliśmy klientom ponad 280 lokali, kolejnych 640 jest w trakcie projektowania a planowane inwestycje podwajają tę wartość. Zatrudniamy doświadczonych inżynierów i specjalistów z różnych dziedzin (budownictwo, architektura, prawo), niezbędnych w etapach złożonego procesu, jakim jest budowa domu.
Stale rozwijamy swoje kompetencje, śledzimy obecne trendy w technice i materiałach, a także zmiany w prawnych regulacjach budowlanych. Nasza firma jest znana z tego, że po podpisaniu umów z klientem zawsze utrzymała stałe ceny sprzedaży, mimo dużych wzrostów cen materiałów na rynku budowlanym, co wyróżnia nas na tle konkurencji. Wszyscy klienci mogą mieć pewność, że powierzone nam zadania zostaną wykonane w 100% i w umówionym terminie. Nieustannie pracujemy na swoją renomę, z każdą inwestycją powiększając liczbę osób zadowolonych ze zbudowanych domów i innych świadczonych im usług.
ZAPRASZAMY DO KONTAKTU Z DZIAŁEM SPRZEDAŻY !!!