Hala na wynajem
17 600 zł
800 m2














1 / 14
Szczegóły ogłoszenia
- Symbol oferty LOK-HW-4058
- Typ oferty hala na wynajem
- Czynsz wynajmu 17 600 zł / miesiąc
- Charakterystyka mieszkania 800 m2
- Budynek rok budowy: 2000
Lokalizacja
- Adres łódzkie, Konstantynów Łódzki
Opis nieruchomości
OFERTA BEZ PROWIZJI DLA POSZUKUJĄCEGO. CAŁOŚĆ WYNAGRODZENIA DLA BIURA POKRYWA WŁAŚCICIEL NIERUCHOMOŚCI.
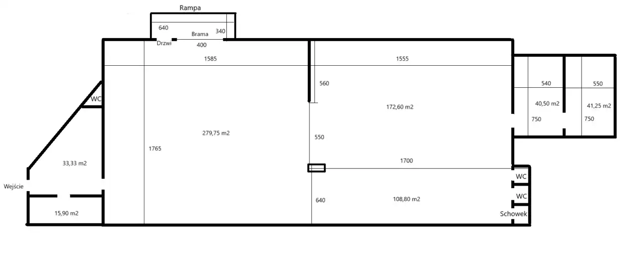
Do wynajęcia hala magazynowo-produkcyjna 800 m2 usytuowana na parterze budynku.
- hala produkcyjno magazynowa, wysokość od 3,20 m do 6,30 m,
- dostęp przez bramę z rampy, wymiary bramy 4,00 m x 4,00 m,
- powierzchnia socjalna w tym, kuchnia, szatnia, łazienki, toalety, powierzchnia klimatyzowana
- powierzchnia biurowa (klimatyzacja) przy hali
Budynek o konstrukcji murowanej. Powierzchnia ogrzewana. Istnieje możliwość wynajęcia dodatkowej powierzchni biurowej lub magazynowej. Dostępna moc energii elektrycznej do 400 kW. Przed budynkiem dostępny jest parking i plac manewrowy. Jest możliwość podjazdu samochodów dostawczych oraz TIR-a.Teren jest ogrodzony i chroniony.
Lokalizacja: centrum Polski - Konstantynów Łódzki bezpośrednie sąsiedztwo Łodzi. Szybki dostęp do drogi ekspresowej S-14 zachodniej obwodnicy Łodzi, węzeł Konstantynów Łódzki, węzeł Łódź - Retkinia, oraz szybki dostęp do autostrad A1/A2 i S8.
MEDIA: woda i kanalizacja miejska, ogrzewanie (gaz), energia elektryczna (trafostacja), monitoring, ochrona, Internet.
CZYNSZ: 22 zł/m2 netto + VAT + media
Oferta nie stanowi oferty określonej w art. 66 i następnych Kodeksu Cywilnego i może być w danym momencie nieaktualna. Prosimy o kontakt telefoniczny.
Do wynajęcia hala magazynowo-produkcyjna 800 m2 usytuowana na parterze budynku.
- hala produkcyjno magazynowa, wysokość od 3,20 m do 6,30 m,
- dostęp przez bramę z rampy, wymiary bramy 4,00 m x 4,00 m,
- powierzchnia socjalna w tym, kuchnia, szatnia, łazienki, toalety, powierzchnia klimatyzowana
- powierzchnia biurowa (klimatyzacja) przy hali
Budynek o konstrukcji murowanej. Powierzchnia ogrzewana. Istnieje możliwość wynajęcia dodatkowej powierzchni biurowej lub magazynowej. Dostępna moc energii elektrycznej do 400 kW. Przed budynkiem dostępny jest parking i plac manewrowy. Jest możliwość podjazdu samochodów dostawczych oraz TIR-a.Teren jest ogrodzony i chroniony.
Lokalizacja: centrum Polski - Konstantynów Łódzki bezpośrednie sąsiedztwo Łodzi. Szybki dostęp do drogi ekspresowej S-14 zachodniej obwodnicy Łodzi, węzeł Konstantynów Łódzki, węzeł Łódź - Retkinia, oraz szybki dostęp do autostrad A1/A2 i S8.
MEDIA: woda i kanalizacja miejska, ogrzewanie (gaz), energia elektryczna (trafostacja), monitoring, ochrona, Internet.
CZYNSZ: 22 zł/m2 netto + VAT + media
Oferta nie stanowi oferty określonej w art. 66 i następnych Kodeksu Cywilnego i może być w danym momencie nieaktualna. Prosimy o kontakt telefoniczny.
Nota prawna
Opis oferty zawarty na stronie internetowej sporządzany jest na podstawie oględzin nieruchomości oraz informacji uzyskanych od właściciela, może podlegać aktualizacji i nie stanowi oferty określonej w art. 66 i następnych K.C.
Formularz kontaktowy