Mieszkanie na sprzedaż
860 000 zł
65 m2



















1 / 19
Szczegóły ogłoszenia
- Symbol oferty YNK-MS-2633
- Typ oferty mieszkanie na sprzedaż
- Cena 860 000 zł
- Charakterystyka mieszkania 65.2 m2, 3 pokoje
- Budynek apartamentowiec; rok budowy: 2013
- Rozkład mieszkania parter piętro
- Media Ogrzewanie: miejskie; Woda: tak - miejska
- Dojazd asfalt
- Garaż miejsce garażowe
- Okna PCV
- Stan lokalu do wprowadzenia
- Taras taras duży
- Winda Tak
Lokalizacja
- Adres pomorskie, Kosakowo, Pogórze
Opis nieruchomości
Wyjątkowe 3-pokojowe mieszkanie z ogrodem i tarasem | Pogórze, gm. Kosakowo - ul. Czarnieckiego 16
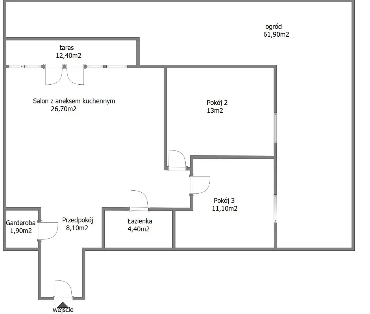
Szukasz komfortowego, gotowego do zamieszkania mieszkania w spokojnej okolicy, z doskonałym dojazdem do centrum Gdyni i nad morze? Ta oferta jest dla Ciebie!Na sprzedaż przestronne, słoneczne 3-pokojowe mieszkanie o powierzchni 65,20m² z tarasem (12,40m²) i pięknie zagospodarowanym ogrodem (61,90m²), położone na nowoczesnym, kameralnym osiedlu Shiraz Park II w Pogórzu.
Atuty nieruchomości:
- Wysoki standard wykończenia – mieszkanie po kapitalnym remoncie w 2023 r., gotowe do wprowadzenia.
- Duży, prywatny ogród z domkiem narzędziowym – idealny na poranną kawę, relaks po pracy czy rodzinne spotkania.
- Jasne, ustawne pomieszczenia – doskonała ekspozycja i przestrzeń dzienna z wyjściem na taras.
- Miejsce w hali garażowej (płatne dodatkowo 50 000 zł) oraz komórka lokatorska w cenie.
- Świetna lokalizacja – szybki dojazd do centrum Gdyni i obwodnicy dzięki Estakadzie Kwiatkowskiego.
Rozkład pomieszczeń:
- Salon z aneksem kuchennym – 26,70m² (z wyjściem na taras i ogród)
- Pokój 2 – 13m² (idealny jako sypialnia, pokój dziecięcy lub gabinet)
- Pokój 3 – 11,10m² (przytulna sypialnia)
- Łazienka – 4,40m² (wanna, WC, umywalka)
- Przedpokój – 8,10m² (duża szafa w zabudowie)
- Garderoba – 1,90m² (możliwość przywrócenia WC)
- Komórka lokatorska – 3m² (w cenie)
Lokalizacja:
Osiedle Shiraz Park II to spokojne i zielone miejsce, idealne dla rodzin i osób ceniących komfort życia. W pobliżu znajdują się:- sklepy i punkty usługowe,
- przedszkole, szkoły, przychodnia, kościół,
- przystanki autobusowe,
- szybki dojazd do centrum Gdyni, plaży oraz Trójmiejskiej Obwodnicy.
Dodatkowe informacje:
- Rok budowy: 2013
- Piętro: parter (z ogródkiem)
- Forma własności: pełna własność, brak obciążeń w KW
- Ogrzewanie: miejskie
- Czynsz: ok. 600 zł (woda, śmieci, fundusz remontowy) + sezonowo ogrzewanie ok. 290 zł zimą
- Cena mieszkania: 860 000 zł
- Cena miejsca w hali garażowej: 50 000 zł
Skontaktuj się już dziś i umów się na prezentację: Beata – tel. 730 980 150
GWARANTUJEMY:Bezpieczeństwo transakcji – posiadamy stosowne ubezpieczenie
Pomoc w uzyskaniu kredytu hipotecznego – oferty szyte na miarę
Nie czekaj – taka oferta nie pojawia się często! Komfort, ogród, świetna lokalizacja i gotowość do zamieszkania od zaraz to połączenie, które sprzedaje się szybko.
Niniejsze ogłoszenie ma charakter informacyjny i nie stanowi oferty w rozumieniu Kodeksu cywilnego.
Nota prawna
Opis oferty zawarty na stronie internetowej sporządzany jest na podstawie oględzin nieruchomości oraz informacji uzyskanych od właściciela, może podlegać aktualizacji i nie stanowi oferty określonej w art. 66 i następnych K.C.
Kalkulator kredytowy
Formularz kontaktowy