Dom na wynajem
8 500 zł
204 m2






































1 / 38
Szczegóły ogłoszenia
- Symbol oferty BS4-DW-312781
- Typ oferty dom na wynajem
- Czynsz wynajmu 8 500 zł / miesiąc
- Charakterystyka mieszkania 204 m2, 5 pokoi, BARDZO WYSOKI STANDARD
- Budynek rok budowy: 2018
- Media Ogrzewanie: C.O. GAZOWE; Woda: ciepła - piecyk; Kanalizacja: miejska; Prąd: jest; Gaz: jest
- Bezpieczeństwo ogrodzenie działki: ogrodzona
- Balkon jest
- Dojazd asfalt
- Działka Zagospodarowana, płaska, prostokąt
- Garaż garaż
- Ilość sypialni 4
- Instalacje nowe
- Okna drewniane
- Otoczenie działki zabudowane
- Pokrycie dachu dachówka
- Rodzaj domu wolnostojący
- Stan prawny Własność
- Umeblowanie tak
Lokalizacja
- Adres małopolskie, Kraków, Bronowice
Opis nieruchomości
Mam przyjemność zaoferować do wynajęcia wspaniały dom w cichej i spokojnej okolicy na terenie Krakowa, jedynie 8 kilometrów od jego centrum. Dom zlokalizowany w Bronowicach w sąsiedztwie zabudowy jednorodzinnej i niezabudowanych działek.
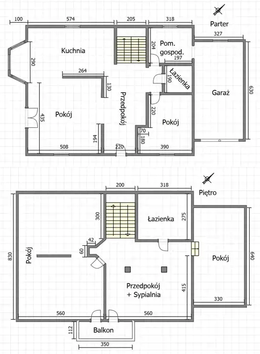
Na pierwsze piętro prowadzą doświetlone oknem dachowym schody. W komunikacji znalazło się miejsce na wydzielenie miejsca dla dużego dwuosobowego łóżka. Z tego pomieszczenia oraz z dużego pokoju obok możemy dostać się na balkon o powierzchni niespełna 4m2. Wspomniany pokój jest podzielony na strefę sypialni oraz dzienną. Na tym poziomie znalazło się również miejsce na kolejny pokój o powierzchni 21m2. Ponadto na piętrze znajduje się duża łazienka z wolnostojącą wanną z hydromasażem doświetlona oknem dachowym.
Uwagę zwracają duże okna z roletami antywłamaniowymi (parter). Do domu doprowadzony jest światłowód. Ogrzewanie oraz ciepłą wodę zapewnia piec dwufunkcyjny z zasobnikiem zlokalizowany w pomieszczeniu gospodarczym. Pralka jest na wyposażeniu. Dom posiada jednostanowiskowy garaż w bryle oraz dodatkowe miejsca na dwa samochody przed budynkiem na ogrodzonym terenie działki. W garażu jest dostępne przyłącze trójfazowe.
Dom jest bardzo przestronny i ma funkcjonalny układ pomieszczeń. Nigdy nie był zamieszkały. Powierzchnia działki wynosi 526m2.
Dom składa się na:
Parter:
Oferta na wyłączność. Czynsz najmu: 8500 zł + opłaty: wod.-kan., gaz, prąd, MPO. Kaucja w wysokości jednomiesięcznego czynszu. Ogrzewanie i ciepła woda z nowego, ekonomicznego pieca dwufunkcyjnego z zasobnikiem.
Serdecznie zachęcam do kontaktu i zapraszam na bezpłatną prezentację oferowanej nieruchomości po podpisaniu umowy pośrednictwa.
Łukasz Hołda
doradca ds. nieruchomości, nr licencji 29749
tel: 577- 796- 778
lukasz@sadurscy.pl
- Niespełna 200m2 powierzchni użytkowej,
- bardzo dobrze doświetlony dzięki dużym oknom,
- wyposażony i gotowy do zamieszkania,
- znakomita okolica w granicach Krakowa.
Na pierwsze piętro prowadzą doświetlone oknem dachowym schody. W komunikacji znalazło się miejsce na wydzielenie miejsca dla dużego dwuosobowego łóżka. Z tego pomieszczenia oraz z dużego pokoju obok możemy dostać się na balkon o powierzchni niespełna 4m2. Wspomniany pokój jest podzielony na strefę sypialni oraz dzienną. Na tym poziomie znalazło się również miejsce na kolejny pokój o powierzchni 21m2. Ponadto na piętrze znajduje się duża łazienka z wolnostojącą wanną z hydromasażem doświetlona oknem dachowym.
Uwagę zwracają duże okna z roletami antywłamaniowymi (parter). Do domu doprowadzony jest światłowód. Ogrzewanie oraz ciepłą wodę zapewnia piec dwufunkcyjny z zasobnikiem zlokalizowany w pomieszczeniu gospodarczym. Pralka jest na wyposażeniu. Dom posiada jednostanowiskowy garaż w bryle oraz dodatkowe miejsca na dwa samochody przed budynkiem na ogrodzonym terenie działki. W garażu jest dostępne przyłącze trójfazowe.
Dom jest bardzo przestronny i ma funkcjonalny układ pomieszczeń. Nigdy nie był zamieszkały. Powierzchnia działki wynosi 526m2.
Dom składa się na:
Parter:
- kuchnia z jadalnią oraz przestronnym salonem,
- sypialnia,
- łazienka z dużą kabiną prysznicową,
- komunikacja,
- pomieszczenie gospodarcze z pralnią,
- garaż o pow. ok. 21m2.
- pokój z dużym łóżkiem (wyjście na balkon),
- pokój ze strefą sypialnianą i dzienną (wyjście na balkon),
- sypialnia 21m2,
- łazienka z wanną z hydromasażem.
Oferta na wyłączność. Czynsz najmu: 8500 zł + opłaty: wod.-kan., gaz, prąd, MPO. Kaucja w wysokości jednomiesięcznego czynszu. Ogrzewanie i ciepła woda z nowego, ekonomicznego pieca dwufunkcyjnego z zasobnikiem.
Serdecznie zachęcam do kontaktu i zapraszam na bezpłatną prezentację oferowanej nieruchomości po podpisaniu umowy pośrednictwa.
Łukasz Hołda
doradca ds. nieruchomości, nr licencji 29749
tel: 577- 796- 778
lukasz@sadurscy.pl
Nota prawna
Opis oferty zawarty na stronie internetowej sporządzany jest na podstawie oględzin nieruchomości oraz informacji uzyskanych od właściciela, może podlegać aktualizacji i nie stanowi oferty określonej w art. 66 i następnych K.C.
Formularz kontaktowy