Działka na sprzedaż
7 500 000 zł
3 107 m2







1 / 7
Szczegóły ogłoszenia
- Symbol oferty FLT-GS-8701
- Typ oferty działka na sprzedaż
- Cena 7 500 000 zł
- Charakterystyka mieszkania 3107 m2
- Bezpieczeństwo ogrodzenie działki: ogrodzona
- Dojazd asfalt
Lokalizacja
- Adres małopolskie, Kraków, Prądnik Biały
Opis nieruchomości
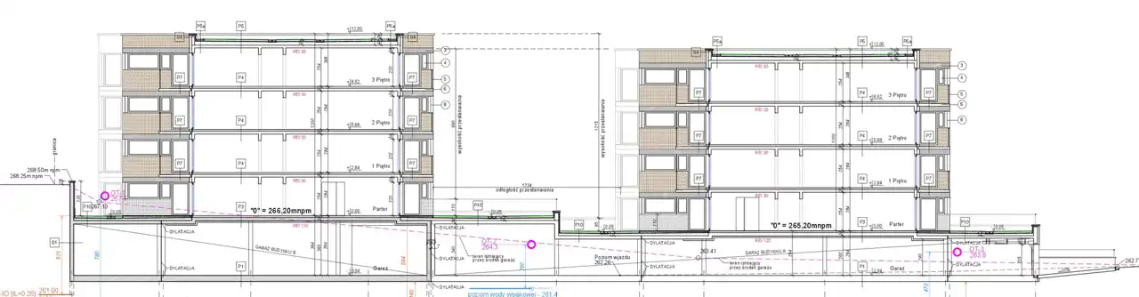
Inwestycja w Krakowie przy ul. Jurajskiej, obręb 25 Krowodrza, na działkach nr 136 i 137 o
łącznej powierzchni 3107 m2
Jest prawomocna i ostateczna decyzja PnB nr 979/6740.1/2024
Projektowany budynek dwupylonowy będzie posiadał 48 mieszkań - 2500 m2 PUM,
z garażem podziemnym na 58 miejsc.
Cena 7.500.000 zł netto.
łącznej powierzchni 3107 m2
Jest prawomocna i ostateczna decyzja PnB nr 979/6740.1/2024
Projektowany budynek dwupylonowy będzie posiadał 48 mieszkań - 2500 m2 PUM,
z garażem podziemnym na 58 miejsc.
Cena 7.500.000 zł netto.
Nota prawna
Opis oferty zawarty na stronie internetowej sporządzany jest na podstawie oględzin nieruchomości oraz informacji uzyskanych od właściciela, może podlegać aktualizacji i nie stanowi oferty określonej w art. 66 i następnych K.C.
Kalkulator kredytowy
Formularz kontaktowy