Lokal na sprzedaż
583 560 zł
65 m2







1 / 7
Szczegóły ogłoszenia
- Symbol oferty K11-LS-12458
- Typ oferty lokal na sprzedaż
- Cena 583 560 zł
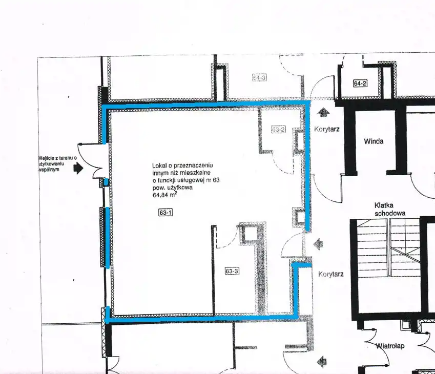
- Charakterystyka mieszkania 64.84 m2
- Rozkład mieszkania niski parter piętro
- Instalacje nowe
- Okna aluminiowe
- Stan lokalu deweloperski
Lokalizacja
- Adres małopolskie, Kraków m., Kraków
Opis nieruchomości
POLECAM KLINY ZACISZE UL. MAŁYSIAKA , do sprzedaży nowy lokal użytkowy w stanie deweloperskim , położony na nowo oddanym osiedlu przy ul. Biskupa Albina Małysiaka .
Pow. 64,84 m2 .
Cena: 583 560 zł -Netto + VAT
Cena : 9 000 zł /m2 + VAT
Sala główna o pow. 55,77 m2 .
Zaplecze kuchenne o pow. 6,30 m2.
WC O POW. 2,77 m2.
Możliwość dowolnej aranżacji i podziału .
WYŁĄCZNIE W NASZYM BIURZE.
Of. prowadzi oraz służy swoim ponad 25-letnim doświadczeniem z zakresu Rynku Nieruchomości : Elżbieta Guzik: +48 501/488-464
( licencja zawodowa pośrednika nieruchomości nr 1597, ubezpieczenie OC pośrednika ).
CENTRUM DORADCÓW NIERUCHOMOŚCI-KRAKÓW-UL.KRÓLEWSKA 1 .
Zadzwoń, by umówić się na spotkanie i dowiedzieć się więcej.
Dbamy o Twoje bezpieczeństwo przy przeprowadzaniu transakcji kupna-sprzedaży-najmu .
Oferujemy bezpłatną pomoc w uzyskaniu kredytu.
Pow. 64,84 m2 .
Cena: 583 560 zł -Netto + VAT
Cena : 9 000 zł /m2 + VAT
Sala główna o pow. 55,77 m2 .
Zaplecze kuchenne o pow. 6,30 m2.
WC O POW. 2,77 m2.
Możliwość dowolnej aranżacji i podziału .
WYŁĄCZNIE W NASZYM BIURZE.
Of. prowadzi oraz służy swoim ponad 25-letnim doświadczeniem z zakresu Rynku Nieruchomości : Elżbieta Guzik: +48 501/488-464
( licencja zawodowa pośrednika nieruchomości nr 1597, ubezpieczenie OC pośrednika ).
CENTRUM DORADCÓW NIERUCHOMOŚCI-KRAKÓW-UL.KRÓLEWSKA 1 .
Zadzwoń, by umówić się na spotkanie i dowiedzieć się więcej.
Dbamy o Twoje bezpieczeństwo przy przeprowadzaniu transakcji kupna-sprzedaży-najmu .
Oferujemy bezpłatną pomoc w uzyskaniu kredytu.
Nota prawna
Opis oferty zawarty na stronie internetowej sporządzany jest na podstawie oględzin nieruchomości oraz informacji uzyskanych od właściciela, może podlegać aktualizacji i nie stanowi oferty określonej w art. 66 i następnych K.C.
Kalkulator kredytowy
Formularz kontaktowy