Lokal na wynajem




Szczegóły ogłoszenia
- Symbol oferty CCN-LW-3601
- Typ oferty lokal na wynajem
- Czynsz wynajmu 12 818 zł / miesiąc
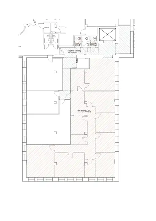
- Charakterystyka mieszkania 267.05 m2
- Budynek biurowiec
- Rozkład mieszkania 1p piętro
- Miejsce parkingowe Tak
- Dojazd asfalt
- Stan lokalu do wprowadzenia
- Winda Tak
Lokalizacja
- Adres małopolskie, Kraków m., Kraków
Opis nieruchomości
SZUKASZ BIURA OD ZARAZ? NIE MASZ CZASU NA REMONT?
TA OFERTA JEST IDEALNA DLA CIEBIE!
Do wynajęcia wykończony i gotowy do wejścia lokal biurowy zlokalizowany w nowoczesnym budynku biurowym przy ul. Wadowickiej w Krakowie.
Opis lokalu:
Powierzchnia lokalu wynosi 267,05m2 w układzie gabinetowym.
Lokal wyposażony jest w okablowanie teleinformatyczne oraz klimatyzację. Przy dłuższym okresie najmu istnieje możliwość dostosowania układu pomieszczeń do indywidualnych potrzeb najemcy.
Dodatkowe atuty:
- Bezpłatny parking dla najemców.
Lokalizacja:
Lokal znajduje się w świetnie skomunikowanej część Krakowa, w pobliżu Ronda Matecznego - jednego z największych węzłów przesiadkowych miasta. Zaledwie kilka metrów od budynku znajdują się przystanki tramwajowe i pętla tramwajowa Łagiewniki. Doskonały dojazd do autostrady A4 oraz obwodnicy Krakowa.
Koszty najmu:
- Czynsz najmu: 48zł/m2 netto + VAT
- Koszty eksploatacyjne (service charge): 17,50zł/m2 + VAT
- Ogrzewanie (CO) ryczałt: 3,37zł/m2 + VAT
- Woda/ścieki ryczałt: 0,35zł/m2
- Energia elektryczna: wg zużycia
* Zdjęcia w ofercie są poglądowe. Przedstawiają standard wykończenia biura oferowany najemcom.
*PODANY CZYNSZ NAJMU JEST CENĄ OFERTOWĄ I PODLEGA NEGOCJACJI. NAJEMCA MA MOŻLIWOŚĆ UZYSKANIA ZACHĘT FINANSOWYCH W POSTACI M.IN. WAKACJI CZYNSZOWYCH LUB KWOTY FIT-OUT DO WYKOŃCZENIA POWIERZCHNI BIUROWEJ.