Lokal na wynajem







Szczegóły ogłoszenia
- Symbol oferty AP7-LW-14267
- Typ oferty lokal na wynajem
- Czynsz wynajmu 17 697 zł / miesiąc
- Charakterystyka mieszkania 294.95 m2
- Budynek biurowo-handlowy
- Rozkład mieszkania 1p piętro
- Media Ogrzewanie: miejskie
- Miejsce parkingowe Tak
- Dojazd asfalt
- Instalacje nowe
- Kaucja trzymiesięczna, 87069 zł
- Okna PCV
- Stan lokalu do odświeżenia
- Umeblowanie brak
- Winda Tak
Lokalizacja
- Adres małopolskie, Kraków, Grzegórzki
Opis nieruchomości
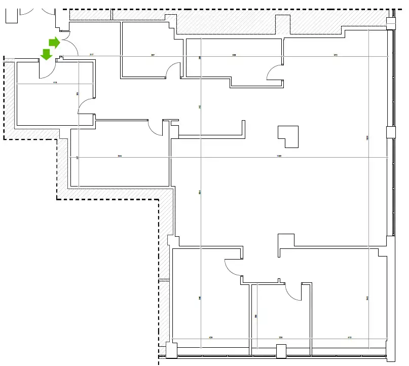
Do wynajęcia lokal biurowy o pow. całkowitej 294,95m2 i pow. użytkowej 280,91m2 położony na I piętrze w jednym z budynków biurowo-usługowych w okolicy ul. Fabrycznej.
Lokal składa się z: komunikacji, powierzchni open space, 2 jasnych pokoi, sali konferencyjnej, 2 pomieszczeń ślepych.
Lokal zostanie odświeżony.
Do ceny najmu należy doliczyć podatek VAT, 20zł/m2 opłaty eksploatacyjnej oraz prąd wg zużycia.
Wymagana trzymiesięczna kaucja brutto.
Lokal dostępny od zaraz.
Preferowany najem długoterminowy.
Zapraszam osoby zainteresowane.
W okolicy siedziby firm, sklepy, punkty usługowe, osiedla, przystanki komunikacji miejskiej.
Więcej ofert znajdziecie Państwo na naszej stronie internetowej www.ap7.pl
Nasze usługi świadczymy zgodnie z Ustawą z dnia 21 sierpnia 1997 r. o gospodarce nieruchomościami (t.j. Dz. U. z 2024 r. poz. 1145 z późn. zm.), w oparciu o umowę pośrednictwa, która gwarantuje Państwu bezpieczeństwo transakcji oraz pełną opiekę naszego doradcy przez cały okres trwania współpracy. Zgodnie z art. 179b. powołanej wyżej ustawy za wykonaną usługę pobieramy wynagrodzenie zgodnie z warunkami uzgodnionymi w zawartej umowie, którą podpisujemy podczas pierwszego spotkania z Klientem.