Lokal na wynajem
23 000 zł
460 m2



















1 / 19
Szczegóły ogłoszenia
- Symbol oferty ZEF-LW-1083
- Typ oferty lokal na wynajem
- Czynsz wynajmu 23 000 zł / miesiąc
- Charakterystyka mieszkania 460 m2
- Budynek biurowo-usługowy; rok budowy: 2004
- Rozkład mieszkania 1p piętro
- Media Ogrzewanie: C.O. GAZOWE
- Miejsce parkingowe Tak
- Dojazd ASFALTOWA
- Kaucja dwumiesięczna
- Okna PCV
- Stan lokalu do odświeżenia
Lokalizacja
- Adres małopolskie, Kraków, Prądnik Biały
Opis nieruchomości
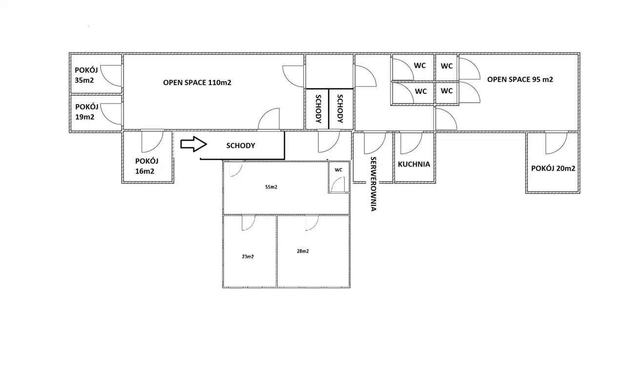
Lokal biurowo-usługowy 460 m2, Prądnik Biały
Lokal biurowo-usługowy znajduje się na 1 piętrze. Składa się z 2 pomieszczeń biurowych open space, 5 gabinetów, sali konferencyjnej, serwerowni, kuchni i toalet. Właściciel odnowi wykładzinę dla nowego Najemcy.
Atuty:
* Jasny lokal
* Atrakcyjna lokalizacja
* Możliwość własnej aranżacji bez zmian konstrukcyjnych
* Minuta na tramwaj
=> Idealne na lokal biurowy, usługowy, kancelarię, , gabinety psychoterapii, sklep internetowy.
Lokalizacja: Prądnik Biały, okolice ulicy Pachońskiego
Cena: 23 000 zł netto - do negocjacji.
Opłata eksploatacyjna do ustalenia.
Masz więcej pytań? Chcesz obejrzeć? Zadzwoń!
Kontakt: Piotr Górak
tel: +48 797 320 933
Lokal biurowo-usługowy znajduje się na 1 piętrze. Składa się z 2 pomieszczeń biurowych open space, 5 gabinetów, sali konferencyjnej, serwerowni, kuchni i toalet. Właściciel odnowi wykładzinę dla nowego Najemcy.
Atuty:
* Jasny lokal
* Atrakcyjna lokalizacja
* Możliwość własnej aranżacji bez zmian konstrukcyjnych
* Minuta na tramwaj
=> Idealne na lokal biurowy, usługowy, kancelarię, , gabinety psychoterapii, sklep internetowy.
Lokalizacja: Prądnik Biały, okolice ulicy Pachońskiego
Cena: 23 000 zł netto - do negocjacji.
Opłata eksploatacyjna do ustalenia.
Masz więcej pytań? Chcesz obejrzeć? Zadzwoń!
Kontakt: Piotr Górak
tel: +48 797 320 933
Nota prawna
Opis oferty zawarty na stronie internetowej sporządzany jest na podstawie oględzin nieruchomości oraz informacji uzyskanych od właściciela, może podlegać aktualizacji i nie stanowi oferty określonej w art. 66 i następnych K.C.
Formularz kontaktowy