Lokal na wynajem














Szczegóły ogłoszenia
- Symbol oferty KNP-LW-92532
- Typ oferty lokal na wynajem
- Czynsz wynajmu 2 300 zł / miesiąc
- Charakterystyka mieszkania 50 m2, 2 pokoje
- Budynek blok; rok budowy: 2009
- Rozkład mieszkania parter piętro
- Media Ogrzewanie: miejskie; Woda: tak - miejska; Gaz: brak
- Czynsz Czynsz letni: 400 zł
- Dojazd asfalt
- Instalacje nowe
- Kaucja jednomiesięczna, 2500 zł
- Okna nowe PCV
- Otoczenie działki zabudowane
- Stan lokalu bardzo dobry
Lokalizacja
- Adres małopolskie, Kraków, Zwierzyniec
Opis nieruchomości
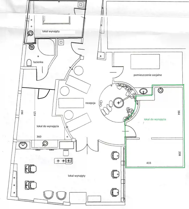
PREMIUM ESTATES prezentuje lokal usługowy o powierzchni około 25 m2 wraz z rejestracją i zapleczem.
Do wejścia od zaraz!
LOKALIZACJA:
Nieruchomość położona jest w dzielnicy Salwator przy ul. Senatorskiej tuż przy ul. Kościuszki. Jest to doskonała lokalizacja, skąd jest znakomite połączenie z pozostałymi rejonami Krakowa. Nieruchomość jest położona między Błoniami Krakowskimi a Bulwarami Wiślanymi. W pobliżu Stadion Cracovii i Muzeum Narodowe. Dwie minuty do przystanku autobusowego i tramwajowego Salwator.
Doskonała lokalizacja do wynajmu na lokal usługowy np. branża beauty, masaże, kosmetyka, gabinet terapeutyczny itp.
LOKAL:
Lokal do wyłącznego wynajmu ma powierzchnię około 25 m3, natomiast cały kompleks lokali 158 m2.
Do lokalu przynależy piękna recepcja, łazienka, pomieszczenie socjalne.
Wejście od ulicy Senatorskiej.
Lokal ma wysokość 3m, nie posiada okien. Jest przystosowany do wynajmu, bez nakładów finansowych.
Doskonałe miejsce do wynajmu na lokal usługowy np. branża beauty, masaże, kosmetyka, gabinet terapeutyczny itp.
CENA:
Kwota najmu wynosi 2300 PLN brutto.
Czynsz administracyjny ok 400 PLN (ogrzewanie miejskie, wywóz śmieci) + prąd i woda płatne według zużycia.
Kaucja zwrotna w wysokości 2500 PLN. Jednorazowa prowizja dla biura.
KONTAKT:
Agent prowadzący:
Dagmara Przybylska-Pazdan
tel: 570 600 706
e-mail: dagmara@premium-estates.pl
Premium Estates