Lokal na wynajem



















Szczegóły ogłoszenia
- Symbol oferty KKA-LW-4376
- Typ oferty lokal na wynajem
- Czynsz wynajmu 2 900 zł / miesiąc
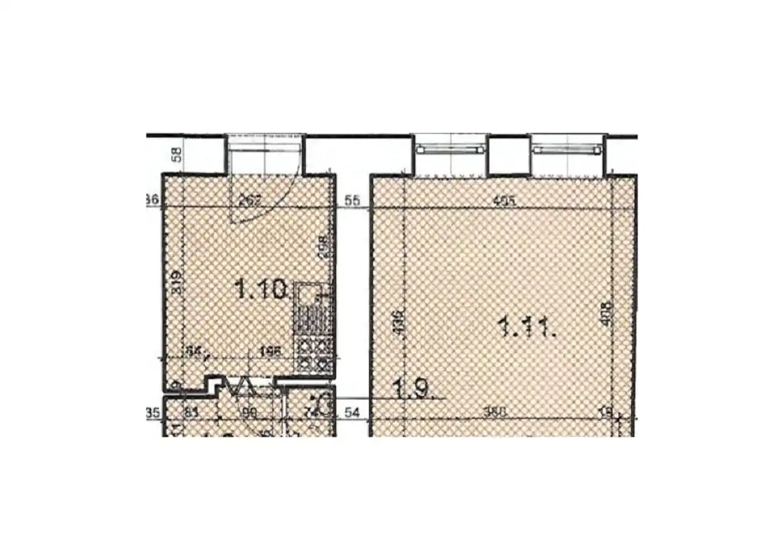
- Charakterystyka mieszkania 28.5 m2, 2 pokoje
- Budynek kamienica; rok budowy: 1930
- Rozkład mieszkania parter piętro
- Media Ogrzewanie: C.O. miejskie; Woda: ciepła - miejska; Gaz: brak
- Balkon taras
- Czynsz Czynsz letni: 490 zł
- Dojazd asfalt
- Instalacje nowe
- Kaucja jednomiesięczna, 2900 zł
- Okna DREWNIANE NOWY TYP
- Otoczenie centrum miasta
- Stan lokalu do wprowadzenia
- Taras taras duży
- Umeblowanie częściowo umeblowane
- Winda Tak
Lokalizacja
- Adres małopolskie, Kraków, Podgórze
Opis nieruchomości
WWW.KRAKOWSKAKAMIENICA.PL
INWESTYCJA JEST SKIEROWANA DO LUDZI, KTÓRZY CENIĄ SOBIE USTAWNY
ROZKŁAD POMIESZCZEŃ ORAZ LOKALIZACJĘ BLISKĄ BULWARÓW WIŚLANYCH
LOKAL DWUPOMIESZCZENIOWY DO WYNAJMU - DZIELNICA STARE PODGÓRZE
UL. TRAUGUTTA - METRAŻ CAŁKOWITY I UŻYTKOWY 28,50 M2
Lokal na wynajem o powierzchni całkowitej i użytkowej 28,50 m2 znajduje się w klimatycznej inwestycji mieszkaniowej przy ulicy Traugutta w dzielnicy Stare Podgórze (blisko do Bulwarów Wiślanych, Galerii Kazimierz, Parku Bednarskiego, komunikacji miejskiej). Inwestycja została zrealizowana przez inwestora który nabył i zamieszkuje budynek co wpłynęło na jakość wykończenia i dbałość o detale w budynku.
Cała Inwestycja składa się z 1 budynku wielorodzinnego w którym łącznie znajduje się 11 mieszkań o powierzchni od 20 m2 do 66 m2 i dwóch lokali niemieszkalnych, w budynku jest 5 kondygnacji naziemnych oraz 1 podziemna.
Lokal który chcemy państwu zaprezentować znajduje się na kondygnacji parter. Lokal jest 1-poziomowy a pomieszczenia posiadają wysokość 330 centymetrów. Ekspozycja okien względem stron świata: południowy wschód, lokal jest zatem doświetlony światłem dziennym. Lokal jest w stanie wykończonym oraz do stanu do samodzielnego doposażenia. Systemowe ogrzewanie miejskie (MPEC). Wszystkie instalacje w lokalu i w częściach wspólnych nowe i opomiarowane.
Lokal może być wykorzystany na cele biurowe, handlowe, usługowe, magazynowe.
Lokal składa się:
* pomieszczenie nr 1 - (17,50 m2)
* pomieszczenie nr 2 - (8 m2)
* pomieszczenie gospodarcze/zaplecze - (2,20 m2)
* łazienka razem z WC - (1 m2)
Lokal posiada wejście od strony ulicy Traugutta co czyni go atrakcyjniejszym pod względem funkcjonalności.
Lokal jest po gruntownym remoncie i posiada funkcjonalny układ pomieszczeń. Prace remontowe zostały wykonane przez sprawdzoną przez właściciela nieruchomości firmę remontową.
Czynsz do lokalu wynosi około 490 zł wraz z ogrzewaniem, ciepłą wodą, zimną wodą, śmieciami, zaliczką eksploatacyjną, funduszem remontowym, ubezpieczeniem budynku, konserwacją windy, sprzątaniem klatki i części wspólnych. Lokal posiada wysokość 330 cm co daje poczucie przestrzeni w każdym pomieszczeniu nieruchomości.
Lokalizacja budynku zapewnia właścicielom łatwy i szybki dostęp do okolicznych atrakcji w które obfituje dzielnica Starego Podgórza, komunikacji miejskiej, Rynku Podgórskiego, Galerii Kazimierz. Łatwo też korzystać z rekreacji, gdyż okolica obfituje w tereny zielone, które umożliwiają aktywny wypoczynek m.in. oznaczone trasy rowerowe, Bulwary Wiślane, w niedalekiej odległości Park Bednarskiego.
Inwestycja ta jest skierowana do ludzi, którzy poszukują praktycznych nieruchomości przy doskonałej lokalizacji. Budynek został zaprojektowany tak, by spełniać potrzeby wymagających klientów na małych i dużych metrażach. Wszystkie są naturalnie oświetlone i dobrze skomunikowane.
PROSIMY O KONTAKT TELEFONICZNY Z NASZYM DZIAŁEM SPRZEDAŻY DZIĘKI KTÓREMU UZYSKACIE PAŃSTWO WSZYSTKIE NIEZBĘDNE INFORMACJE PRZED PREZENTACJĄ NIERUCHOMOŚCI
CENA WYNAJMU: 2 900 ZŁ
NR OFERTY W BIURZE: MW 4376
798 280 189 (tel. kontaktowy)
mail: krakowskakamienica@gmail.com
---------------------------------------------------------------------------------------
Zamieszczone na naszych stronach oferty nie stanowią oferty w rozumieniu Kodeksu Cywilnego, a dane w nich zawarte mają jedynie charakter informacyjny.