Lokal na wynajem
47 080 zł
1 177 m2



















1 / 19
Szczegóły ogłoszenia
- Symbol oferty CCN-LW-3598
- Typ oferty lokal na wynajem
- Czynsz wynajmu 47 080 zł / miesiąc
- Charakterystyka mieszkania 1177 m2
- Budynek BUDYNEK BIUROWY
Lokalizacja
- Adres małopolskie, Kraków, Czyżyny
Opis nieruchomości
www.COMMERCIALCONCEPT.pl
ul. Sołtysowska| Czyżyny | Kraków | małopolskie
Wolnostojący budynek biurowo - usługowy z dużym parkingiem.
Oferujemy do wynajęcia powierzchnię biurowo - usługową w wolnostojącym budynku w dzielnicy Czyżyny w rejonie ul. Sołtysowskiej.
OPIS OBIEKTU:
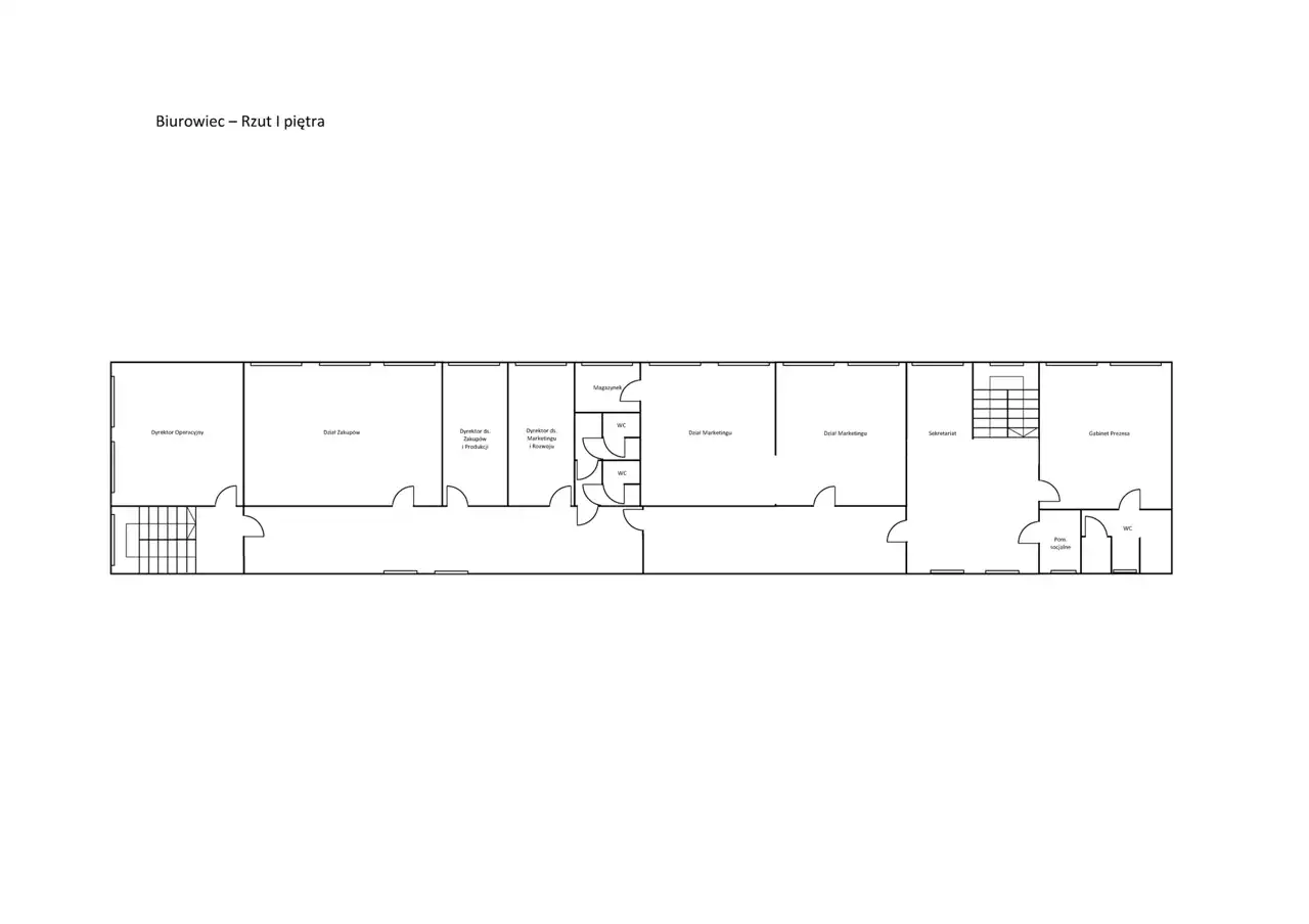
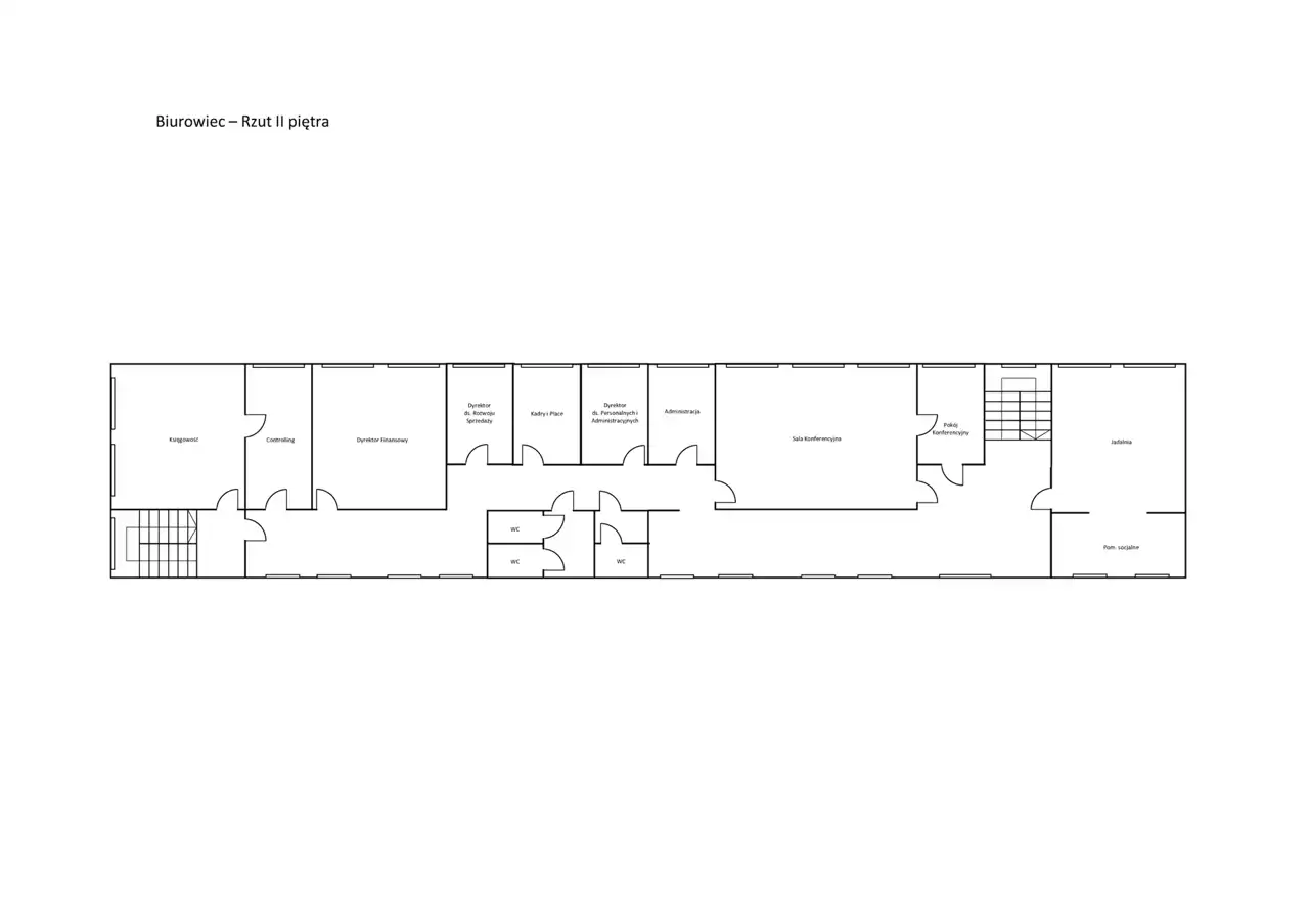
Budynek o łącznej powierzchni użytkowej 1177m2 składa się z 3 kondygnacji:
- parter o powierzchni: 466,50m2
- I piętro o powierzchni: 361,00m2
- II piętro o powierzchni: 349,50m2
Na parterze znajduje się przestrzeń biurowo usługowa nadająca się zarówno pod biura jak i różnego rodzaju usługi, gabinety, część warsztatowa, sklepowa itp.
Powierzchnia na I i II piętrze to typowa przestrzeń biurowa podzielona na kilkanaście pokoi w układzie gabinetowym, sale konferencyjne, część socjalną - kuchnię praz toalety.
Powierzchnie są wykończone i gotowe do wejścia. Wymagają jedynie ewentualnego odświeżenia. Budynek posiada dwie klatki schodowe ułatwiające komunikację między piętrami.
Budynek znajduje się na ogrodzonym terenie z parkingiem i częściami zielonymi do wykorzystania przez najemcę. Ilość miejsc parkingowych do ustalenia. Może być przeznaczony m.in. pod siedzibę firmy, szkołę, przychodnię medyczną itp.
DOSTĘPNOŚĆ OBIEKTU: do ustalenia
KOSZTY:
Czynsz najmu: 40,00 PLN / m2 netto + VAT
Opłata eksploatacyjna: 8,00 PLN / m2 netto + VAT
Media wg zużycia: prąd, woda, śmieci
Oferujemy do wynajęcia powierzchnię biurowo - usługową w wolnostojącym budynku w dzielnicy Czyżyny w rejonie ul. Sołtysowskiej.
OPIS OBIEKTU:
Budynek o łącznej powierzchni użytkowej 1177m2 składa się z 3 kondygnacji:
- parter o powierzchni: 466,50m2
- I piętro o powierzchni: 361,00m2
- II piętro o powierzchni: 349,50m2
Na parterze znajduje się przestrzeń biurowo usługowa nadająca się zarówno pod biura jak i różnego rodzaju usługi, gabinety, część warsztatowa, sklepowa itp.
Powierzchnia na I i II piętrze to typowa przestrzeń biurowa podzielona na kilkanaście pokoi w układzie gabinetowym, sale konferencyjne, część socjalną - kuchnię praz toalety.
Powierzchnie są wykończone i gotowe do wejścia. Wymagają jedynie ewentualnego odświeżenia. Budynek posiada dwie klatki schodowe ułatwiające komunikację między piętrami.
Budynek znajduje się na ogrodzonym terenie z parkingiem i częściami zielonymi do wykorzystania przez najemcę. Ilość miejsc parkingowych do ustalenia. Może być przeznaczony m.in. pod siedzibę firmy, szkołę, przychodnię medyczną itp.
DOSTĘPNOŚĆ OBIEKTU: do ustalenia
KOSZTY:
Czynsz najmu: 40,00 PLN / m2 netto + VAT
Opłata eksploatacyjna: 8,00 PLN / m2 netto + VAT
Media wg zużycia: prąd, woda, śmieci
Zadzwoń i umów się na prezentację!
Kontakt: Łukasz Figat | +48 731 933 334 | lukasz@commercialconcept.pl
ZAREZERWUJ SWOJĄ POWIERZCHNIĘ JUŻ DZIŚ!
Nota prawna
Opis oferty zawarty na stronie internetowej sporządzany jest na podstawie oględzin nieruchomości oraz informacji uzyskanych od właściciela, może podlegać aktualizacji i nie stanowi oferty określonej w art. 66 i następnych K.C.
Formularz kontaktowy