Lokal na wynajem
4 750 zł
52 m2







1 / 7
Szczegóły ogłoszenia
- Symbol oferty ZEF-LW-1042
- Typ oferty lokal na wynajem
- Czynsz wynajmu 4 750 zł / miesiąc
- Charakterystyka mieszkania 52 m2
- Budynek kamienica; rok budowy: 1910
- Rozkład mieszkania parter piętro
- Media Ogrzewanie: C.O. Z SIECI MIEJSKIEJ
- Dojazd asfalt
- Instalacje dobre
- Kaucja do uzgodnienia
- Okna aluminiowe
- Stan lokalu bardzo dobry
- Winda Tak
Lokalizacja
- Adres małopolskie, Kraków, Stare Miasto
Opis nieruchomości
Frontowy z witryną 52 m2 handel*cukiernia*kosmetyka
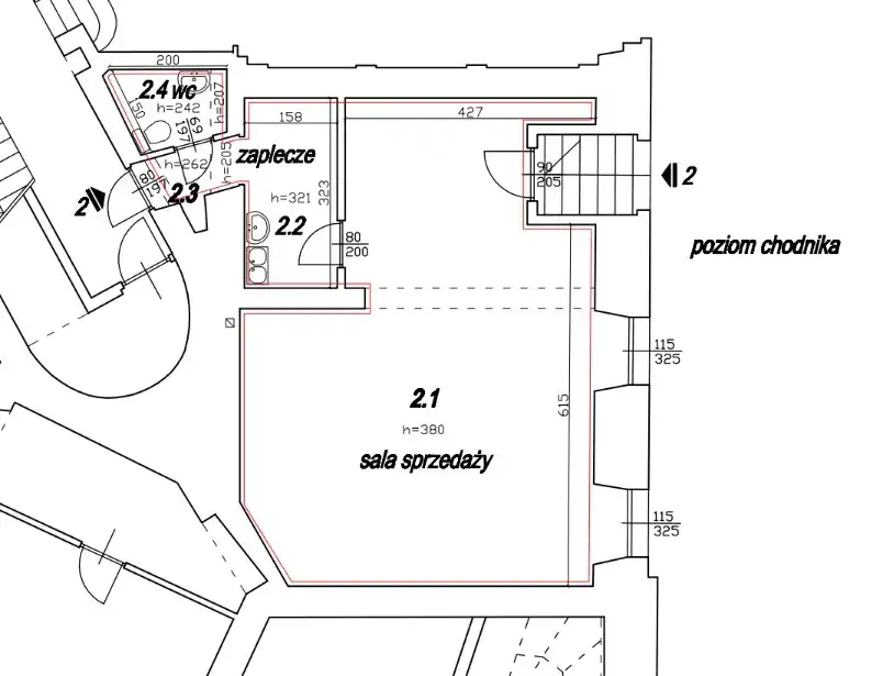
Lokal frontowy, z dużymi witrynami na parterze kamienicy o powierzchni 52 m2 składa się z sali sprzedaży, biura/magazynu oraz toalety.
Lokal frontowy, z dużymi witrynami na parterze kamienicy o powierzchni 52 m2 składa się z sali sprzedaży, biura/magazynu oraz toalety.
Lokal ma 2 wejścia, klimatyzację, instalację wod-kan w 3 miejscach - świetnie sprawdzi się na kosmetykę, handel, cukiernię lub inny punkt handlowo-usługowy.
Atuty:
- w budynku znajduję się świetnie prosperujący ApartHotel
- klimatyczny lokal
- duże witryny i okna, miejsce na reklamę
- zgoda na sprzedaż alkoholu
- klimatyzacja,
-ogrzewanie i ciepła woda z sieci miejskiej
Lokalizacja: Kazimierz, okolice ulic Dietla, Sebastiana, Starowiślnej
Cena: 4750 zł netto + media wg zużycia => ogrzewanie i ciepła woda z sieci miejskiej!
Masz więcej pytań? Chcesz obejrzeć? Zadzwoń!
Kontakt: Zuzanna Polańska
Kom: 518 212 675
- duże witryny i okna, miejsce na reklamę
- zgoda na sprzedaż alkoholu
- klimatyzacja,
-ogrzewanie i ciepła woda z sieci miejskiej
Lokalizacja: Kazimierz, okolice ulic Dietla, Sebastiana, Starowiślnej
Cena: 4750 zł netto + media wg zużycia => ogrzewanie i ciepła woda z sieci miejskiej!
Masz więcej pytań? Chcesz obejrzeć? Zadzwoń!
Kontakt: Zuzanna Polańska
Kom: 518 212 675
Nota prawna
Opis oferty zawarty na stronie internetowej sporządzany jest na podstawie oględzin nieruchomości oraz informacji uzyskanych od właściciela, może podlegać aktualizacji i nie stanowi oferty określonej w art. 66 i następnych K.C.
Formularz kontaktowy