Lokal na wynajem
5 290 zł
92 m2






1 / 6
Szczegóły ogłoszenia
- Symbol oferty AP7-LW-14218
- Typ oferty lokal na wynajem
- Czynsz wynajmu 5 290 zł / miesiąc
- Charakterystyka mieszkania 92 m2
- Budynek biurowiec
- Rozkład mieszkania parter piętro
- Media Ogrzewanie: NAWIEWOWE
- Dojazd asfalt
- Instalacje dobre
- Kaucja trzymiesięczna
- Okna aluminiowe
- Stan lokalu bardzo dobry
- Umeblowanie brak
- Winda Tak
Lokalizacja
- Adres małopolskie, Kraków, Czyżyny
Opis nieruchomości
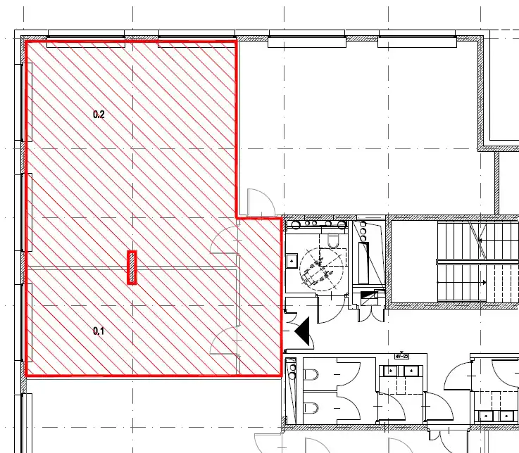
Do wynajęcia lokal biurowo-usługowy o pow. 92m2 położony na parterze w jednym z biurowców w okolicy elektrociepłowni Łęg.
Lokal składa się z: komunikacji z miejscem na małą poczekalnię, 2 niezależnych pokoi. Do pokoi doprowadzona woda.
Lokal wynajmowany jest bez mebli.
Do ceny najmu należy doliczyć podatek VAT, 9,50zł netto/m2 opłaty eksploatacyjnej oraz media wg zużycia. Ogrzewanie za pomocą ciepła technologicznego z elektrociepłowni.
Umowa najmu na 12-cie miesięcy lub czas nieokreślony z 3-miesięcznym okresem wypowiedzenia.
Wymagana trzymiesięczna kaucja wraz z opłatą eksploatacyjną brutto.
W okolicy siedziby firm, punkty handlowo-usługowe, zabudowa mieszkaniowa, przystanki komunikacji miejskiej.
Zapraszam osoby zainteresowane.
Więcej ofert znajdziecie Państwo na naszej stronie internetowej www.ap7.pl
Nasze usługi świadczymy zgodnie z Ustawą z dnia 21 sierpnia 1997 r. o gospodarce nieruchomościami (t.j. Dz. U. z 2024 r. poz. 1145 z późn. zm.), w oparciu o umowę pośrednictwa, która gwarantuje Państwu bezpieczeństwo transakcji oraz pełną opiekę naszego doradcy przez cały okres trwania współpracy. Zgodnie z art. 179b. powołanej wyżej ustawy za wykonaną usługę pobieramy wynagrodzenie zgodnie z warunkami uzgodnionymi w zawartej umowie, którą podpisujemy podczas pierwszego spotkania z Klientem.
Lokal składa się z: komunikacji z miejscem na małą poczekalnię, 2 niezależnych pokoi. Do pokoi doprowadzona woda.
Lokal wynajmowany jest bez mebli.
Do ceny najmu należy doliczyć podatek VAT, 9,50zł netto/m2 opłaty eksploatacyjnej oraz media wg zużycia. Ogrzewanie za pomocą ciepła technologicznego z elektrociepłowni.
Umowa najmu na 12-cie miesięcy lub czas nieokreślony z 3-miesięcznym okresem wypowiedzenia.
Wymagana trzymiesięczna kaucja wraz z opłatą eksploatacyjną brutto.
W okolicy siedziby firm, punkty handlowo-usługowe, zabudowa mieszkaniowa, przystanki komunikacji miejskiej.
Zapraszam osoby zainteresowane.
Więcej ofert znajdziecie Państwo na naszej stronie internetowej www.ap7.pl
Nasze usługi świadczymy zgodnie z Ustawą z dnia 21 sierpnia 1997 r. o gospodarce nieruchomościami (t.j. Dz. U. z 2024 r. poz. 1145 z późn. zm.), w oparciu o umowę pośrednictwa, która gwarantuje Państwu bezpieczeństwo transakcji oraz pełną opiekę naszego doradcy przez cały okres trwania współpracy. Zgodnie z art. 179b. powołanej wyżej ustawy za wykonaną usługę pobieramy wynagrodzenie zgodnie z warunkami uzgodnionymi w zawartej umowie, którą podpisujemy podczas pierwszego spotkania z Klientem.
Nota prawna
Opis oferty zawarty na stronie internetowej sporządzany jest na podstawie oględzin nieruchomości oraz informacji uzyskanych od właściciela, może podlegać aktualizacji i nie stanowi oferty określonej w art. 66 i następnych K.C.
Formularz kontaktowy