Lokal na wynajem










Szczegóły ogłoszenia
- Symbol oferty ACTV-LW-2138
- Typ oferty lokal na wynajem
- Czynsz wynajmu 5 290 zł / miesiąc
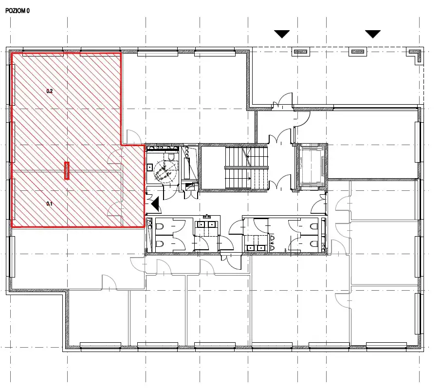
- Charakterystyka mieszkania 92 m2
- Budynek biurowiec; rok budowy: 2019
- Rozkład mieszkania parter piętro
- Miejsce parkingowe Tak
- Dojazd asfalt
- Kaucja trzymiesięczna
- Okna aluminiowe
- Stan lokalu bardzo dobry
Lokalizacja
- Adres małopolskie, Kraków, Czyżyny
Opis nieruchomości
Nowoczesny lokal biurowo-usługowy – 92m² | Kraków- Czyżyny
Oferuję do wynajęcia funkcjonalny lokal biurowo-usługowy o powierzchni ok. 92m², położony w zadbanym, nowoczesnym budynku biurowym.
To idealna propozycja dla firm poszukujących komfortowej i reprezentacyjnej przestrzeni do pracy lub obsługi klientów.
Atuty lokalu i budynku:
- nowoczesna wentylacja mechaniczna oraz klimatyzacja,
- 2 niezależne pomieszczenia, poczekalnia/ korytarz,
-
duże okna – dużo naturalnego światła,
-
wysokość pomieszczeń ok. 3,4 m,
-
posadzka betonowa (szara),
-
reprezentacyjne części wspólne – elegancka recepcja, klatka schodowa, korytarze, toalety,
-
parking zewnętrzny dla użytkowników budynku,
-
monitoring CCTV i kontrola dostępu zapewniające bezpieczeństwo.
Istnieje możliwość wynajęcia dodatkowej powierzchni 51m², co daje łącznie 144m².
Warunki najmu:
-
czynsz: 57,50 zł/m² netto / miesiąc,
-
opłata eksploatacyjna: 9,50 zł/m² netto / miesiąc,
-
media – według zużycia.
Dostępność:
Powierzchnia dostępna od listopada 2025 roku.
Jeśli szukasz komfortowego, nowoczesnego biura w zadbanym budynku z parkingiem i pełną infrastrukturą – ten lokal spełni Twoje oczekiwania!
Kontakt w sprawie oferty:
Paweł Baziak tel. 506-907-924
biuro@activenieruchomosci.com.pl
Opis oferty sporządzony został na podstawie oględzin nieruchomości oraz informacji uzyskanych od właściciela, może podlegać aktualizacji i nie stanowi oferty określonej w art. 66 i następnych K.C.
Więcej ofert naszego biura: www.activenieruchomosci.com.pl