Lokal na wynajem








Szczegóły ogłoszenia
- Symbol oferty DNX-LW-30448
- Typ oferty lokal na wynajem
- Czynsz wynajmu 6 270 zł / miesiąc
- Charakterystyka mieszkania 57 m2
- Budynek kamienica; rok budowy: 2023
- Rozkład mieszkania 2p piętro
- Media Ogrzewanie: C.O. GAZOWE
- Dojazd asfalt
- Instalacje nowe
- Kaucja dwumiesięczna
- Okna PCV 3 komorowe
- Stan lokalu bardzo dobry
Lokalizacja
- Adres małopolskie, Kraków, Stare Miasto
Opis nieruchomości
Nowoczesny lokal biurowy z dużym tarasem – ul. Rakowicka
Do wynajęcia elegancki lokal biurowy położony w nowo wybudowanej kamienicy przy ul. Rakowickiej w Krakowie. Budynek wyróżnia się nowoczesną architekturą, wysokim standardem wykończenia oraz doskonałą lokalizacją — w pobliżu Dworca Głównego, Galerii Krakowskiej i uczelni wyższych.
Opis lokalu
Lokal znajduje się na III piętrze i ma 57 m² powierzchni użytkowej oraz taras o powierzchni 30 m², stanowiący idealne miejsce na strefę relaksu lub spotkania na świeżym powietrzu.
Wykończony w wysokim standardzie, gotowy do adaptacji na potrzeby biura lub działalności usługowej.
Zdjęcia są poglądowe i przedstawiają lokal położony na II piętrze - lokal podany w ofercie jest wykończony w identycznym standardzie.
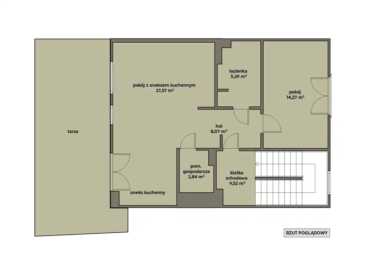
Układ pomieszczeń:
-
Pokój z aneksem kuchennym – ok. 27,57 m²,
-
Pokój – ok. 14,27 m²,
-
Łazienka – ok. 5,39 m²,
-
Hall – ok. 8,07 m²,
-
Pomieszczenie gospodarcze – ok. 2,84 m².
Wyposażenie i udogodnienia
-
Klimatyzacja z funkcją grzania i chłodzenia,
-
Ogrzewanie gazowe podłogowe,
-
Instalacja alarmowa,
-
Internet światłowodowy.
Lokal idealny dla firm poszukujących reprezentacyjnej, komfortowej przestrzeni biurowej lub usługowej w centrum miasta.
Warunki najmu
-
Czynsz najmu: 6270 zł/miesiąc netto,
-
Opłata za sprzątanie części wspólnych: 200 zł/miesiąc,
-
Media: według zużycia,
-
Kaucja: dwumiesięczna.
Dostępny również inny lokal w tym samym budynku
Na II piętrze dostępny jest większy lokal o powierzchni 75 m² z tarasem 7 m², wykończony w wysokim standardzie i przygotowany pod różne rodzaje działalności.
Układ pomieszczeń: open space z możliwością wydzielenia dwóch pokoi, osobny pokój, łazienka, hol oraz pomieszczenie gospodarcze.
Cena najmu: 8030 zł/miesiąc netto.
Zapraszamy na prezentację!
Skontaktuj się z nami, aby umówić się na oglądanie i poznać wszystkie dostępne lokale w tej wyjątkowej kamienicy przy ul. Rakowickiej.