Lokal na wynajem
7 400 zł
102 m2










1 / 10
Szczegóły ogłoszenia
- Symbol oferty ZEF-LW-1084
- Typ oferty lokal na wynajem
- Czynsz wynajmu 7 400 zł / miesiąc
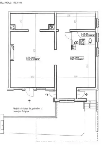
- Charakterystyka mieszkania 102.28 m2
- Budynek wieżowiec
- Rozkład mieszkania parter piętro
- Media Ogrzewanie: centralne
- Czynsz Czynsz letni: 760 zł
- Dojazd asfaltowa/kostka
- Instalacje dobre
- Kaucja do uzgodnienia
- Okna PCV
- Stan lokalu dobry
Lokalizacja
- Adres małopolskie, Kraków, Prądnik Biały
Opis nieruchomości
*Handel*Usługi*Biuro* 102 m, Górka Narodowa
Lokal 102,28 m2 frontowy, jednopoziomowy składa się dużej sali sprzedaży, łazienek, kuchni i pomieszczeń biurowych. Lokal zwolniony w trakcje adaptacji pod gastronomie - brak gazu w lokalu.
Atuty:
* Atrakcyjna lokalizacja na dużym osiedlu
* Lokal frontowy z witrynami
* Możliwość własnej aranżacji bez zmian konstrukcyjnych
* Trzy wejścia
* Moc przyłączeniowa 25 KW
Lokalizacja: Prądnik Biały, Górka Narodowa okolice alei 29 listopada
Cena 7400 zł czynsz najmu brutto + media wg zużycia
Opłata administracyjna 760 zł ( zaliczki na śmieci , ogrzewanie) + woda i prąd.
Chcesz poznać więcej szczegółów? Zadzwoń!
Kontakt: Piotr Górak
tel: +48 797 320 933
Lokal 102,28 m2 frontowy, jednopoziomowy składa się dużej sali sprzedaży, łazienek, kuchni i pomieszczeń biurowych. Lokal zwolniony w trakcje adaptacji pod gastronomie - brak gazu w lokalu.
Atuty:
* Atrakcyjna lokalizacja na dużym osiedlu
* Lokal frontowy z witrynami
* Możliwość własnej aranżacji bez zmian konstrukcyjnych
* Trzy wejścia
* Moc przyłączeniowa 25 KW
Lokalizacja: Prądnik Biały, Górka Narodowa okolice alei 29 listopada
Cena 7400 zł czynsz najmu brutto + media wg zużycia
Opłata administracyjna 760 zł ( zaliczki na śmieci , ogrzewanie) + woda i prąd.
Chcesz poznać więcej szczegółów? Zadzwoń!
Kontakt: Piotr Górak
tel: +48 797 320 933
Nota prawna
Opis oferty zawarty na stronie internetowej sporządzany jest na podstawie oględzin nieruchomości oraz informacji uzyskanych od właściciela, może podlegać aktualizacji i nie stanowi oferty określonej w art. 66 i następnych K.C.
Formularz kontaktowy