Lokal na wynajem








Szczegóły ogłoszenia
- Symbol oferty DNX-LW-30411
- Typ oferty lokal na wynajem
- Czynsz wynajmu 8 030 zł / miesiąc
- Charakterystyka mieszkania 75 m2
- Budynek kamienica; rok budowy: 2023
- Rozkład mieszkania 2p piętro
- Media Ogrzewanie: C.O. GAZOWE
- Dojazd asfalt
- Instalacje nowe
- Kaucja dwumiesięczna
- Okna PCV 3 komorowe
- Stan lokalu bardzo dobry
Lokalizacja
- Adres małopolskie, Kraków, Stare Miasto
Opis nieruchomości
Nowoczesny lokal biurowy z tarasem przy ul. Rakowickiej
Do wynajęcia nowy, elegancki lokal biurowy położony w nowo wybudowanej kamienicy przy ul. Rakowickiej w Krakowie. Budynek wyróżnia się wysokim standardem wykończenia oraz świetną lokalizacją — w sąsiedztwie centrum miasta, Dworca Głównego i uczelni wyższych.
Opis lokalu
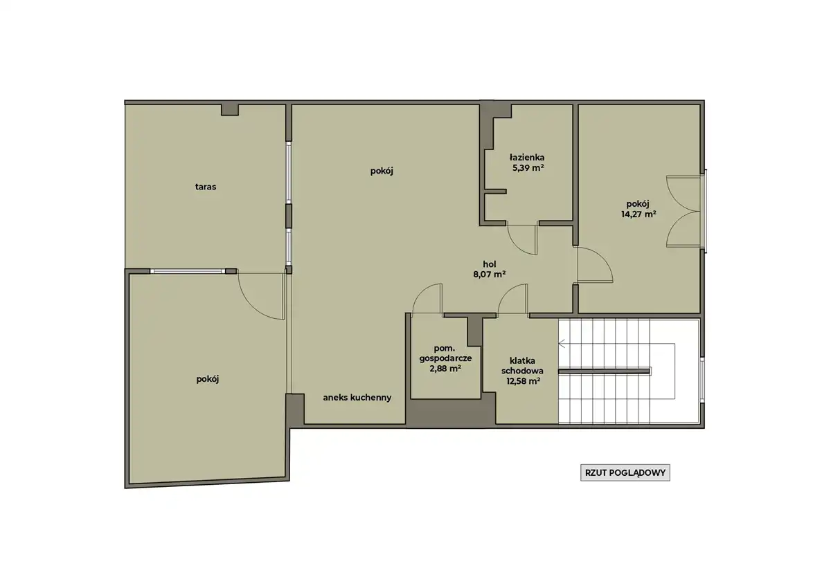
Lokal znajduje się na II piętrze i posiada 75 m² powierzchni użytkowej oraz taras o powierzchni 7 m². Został wykończony w wysokim standardzie i przygotowany do adaptacji pod różne rodzaje działalności.
Układ pomieszczeń:
-
Open space (ok. 44 m²) z instalacją pod aneks kuchenny i możliwością wydzielenia dwóch pokoi,
-
Oddzielny pokój – ok. 14,27 m²,
-
Łazienka – ok. 5,39 m²,
-
Hol – ok. 8,07 m²,
-
Pomieszczenie gospodarcze – ok. 2,88 m².
Wyposażenie i udogodnienia
-
Klimatyzacja z funkcją grzania i chłodzenia,
-
Ogrzewanie gazowe podłogowe,
-
Instalacja alarmowa,
-
Internet światłowodowy.
Lokal idealnie sprawdzi się zarówno jako biuro, jak i przestrzeń usługowa.
Warunki najmu
-
Czynsz najmu: 110 zł/m²,
-
Opłata za sprzątanie części wspólnych: 200 zł/miesiąc,
-
Media: według zużycia,
-
Kaucja: dwumiesięczna.
Dostępne inne lokale w budynku
-
III piętro: 57 m² + 30 m² tarasu (dwa pomieszczenia, aneks kuchenny, łazienka, pom. gospodarcze) – 6270 zł/miesiąc.
Zapraszamy na prezentację!
Skontaktuj się z nami, aby umówić się na oglądanie i poznać wszystkie atuty tej wyjątkowej nieruchomości.