Lokal na wynajem













Szczegóły ogłoszenia
- Symbol oferty APRS-LW-364
- Typ oferty lokal na wynajem
- Czynsz wynajmu 8 450 zł / miesiąc
- Charakterystyka mieszkania 130 m2, 2 pokoje
- Budynek budynek wolnostojący; rok budowy: 2003
- Rozkład mieszkania 1p piętro
- Media Ogrzewanie: C.O. GAZOWE; Woda: ciepła - piecyk; Gaz: jest
- Instalacje ELEKTRYCZNA, GAZOWA
- Kaucja do uzgodnienia
- Okna drewniane
- Stan lokalu po generalnym remoncie
Lokalizacja
- Adres małopolskie, Kraków, Grzegórzki
Opis nieruchomości
"Biuro w koronach Drzew" - unikalny lokal 130 m² w stylu industrialnym w Centrum Krakowa
Biuro Nieruchomości APREST z przyjemnością prezentuje na wynajem lokal biurowy, zlokalizowany na wysokim pierwszym piętrze stylowego biurowca w centrum Krakowa. Lokal jest bezpośrednio po generalnym remoncie i jest dostępny do wynajmu od zaraz. Na zdjęciach zaprezentowano aktualny stan lokalu oraz wizualizacje przykładowych aranżacji przestrzeni.
Funkcjonalność i układ
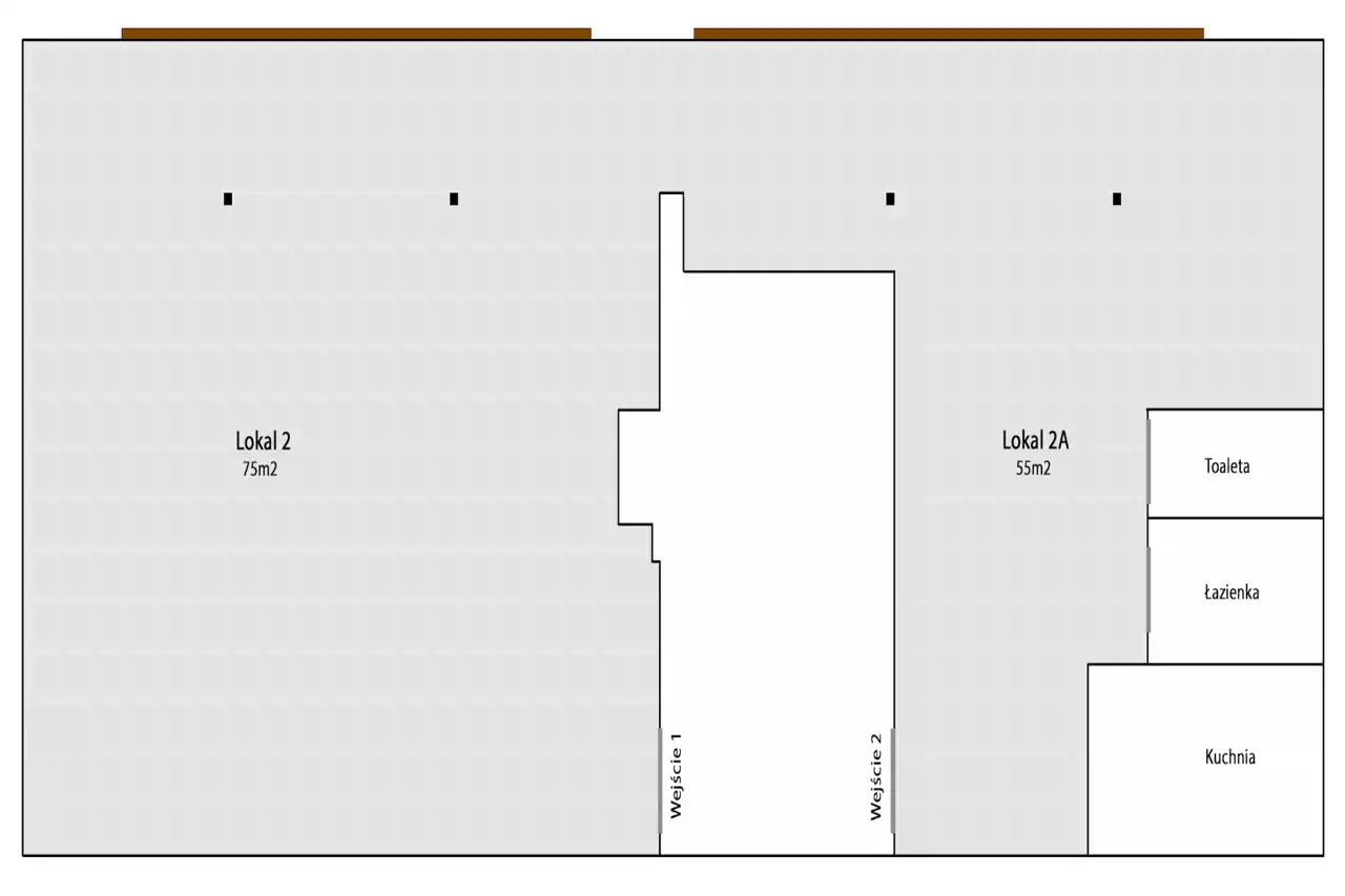
Powierzchnia 130 m² składa się z dwóch dużych (75 m² i 55 m²), ustawnych lokali, tworzących jedno funkcjonalne biuro z szeroką możliwością aranżacji stanowisk pracy.
- Wyposażenie: Lokal posiada nowoczesne oświetlenie LED oraz wydajną klimatyzację(chłodzenie i ogrzewanie), ogrzewanie gazowe, zapewniające komfort pracy o każdej porze dnia i roku.
- Zaplecze Socjalne: W biurze znajduje się pokój socjalny z nową, w pełni wykończoną kuchnią, pełna łazienka z prysznicem oraz dodatkowa osobna toaleta.
- Dodatkowa Przestrzeń: Mała wnęka (niche) może pełnić funkcję podręcznej, dyskretnej salki konferencyjnej.
Architektura i Design
Biuro charakteryzuje się modnym, industrialnym stylem, gdzie surowe elementy konstrukcyjne grają z naturalnym światłem i ciepłem.- Charakter Industrialny: Antracytowe, metalowe elementy nośne biurowca stanowią rdzeń wnętrza.
- Kolory: Jasno brązowe, drewniane ramy okien narzucają ciepłe barwy podstawowe, które doskonale komponują się z szarą, modułową wykładziną dywanową i bielą ścian.
- "Biuro w koronach drzew": Południowa ściana jest w całości przeszklona (tafla kilkunastu okien o wysokości 2,2 m), co zapewnia spektakularne naświetlenie i niepowtarzalny widok na drzewa w parku. Lokal znajduje się 6 metrów nad ziemią, co daje wrażenie pracy w koronach drzew.
Udogodnienia i Logistyka
- Parking: Do biura przynależą 2 zewnętrzne miejsca parkingowe, bezpośrednio przy drodze dojazdowej do budynku. Możliwość wynajmu dodatkowych miejsc na sąsiadującym z biurowcem parkingu.
- Dla Rowerzystów: Na tyłach biurowca znajdują się stojaki na rowery.
- Dojazd: Wejście do biura odbywa się przez metalowe schody i galerię, co podkreśla industrialny charakter budynku.
Lokalizacja – Doskonała komunikacja
Lokalizacja na ul. Cystersów, w dzielnicy Grzegórzki - w samym centrum Krakowa, świetnie skomunikowana:
- Przystanek autobusowy: ok. 30 m.
- Przystanek tramwajowy: ok. 200 m.
- Rondo Mogilskie: 900 m.
- Dworzec kolejowy: 1,8 km.
- Rynek Główny: 2,4 km.
- W bliskiej okolicy dostępne są punkty gastronomiczne, sklepy i siłownia.
To idealne biuro, kancelarię lub inną działalność usługową, dla firmy ceniącej nowoczesny design, komfort pracy, dogodny dojazd i centralną lokalizację.
Cena najmu: 8450 PLN
+ czynsz administracyjny: 800 PLN
+ media: prąd, gaz, wywóz śmieci – według zużycia
2 miejsca postojowe zewnętrzne – w cenie
Opiekun oferty:
Anna Piwowarska
Doradca ds. Nieruchomości
Tel. 501 858 805