Lokal na wynajem












Szczegóły ogłoszenia
- Symbol oferty ZEF-LW-1152
- Typ oferty lokal na wynajem
- Czynsz wynajmu 8 563 zł / miesiąc
- Charakterystyka mieszkania 134 m2
- Budynek biurowo-usługowy; rok budowy: 2016
- Rozkład mieszkania 2p piętro
- Media Ogrzewanie: C.O. GAZOWE
- Miejsce parkingowe Tak
- Dojazd ASFALTOWA
- Instalacje nowe
- Kaucja dwumiesięczna
- Okna aluminiowe
- Stan lokalu idealny
- Winda Tak
Lokalizacja
- Adres małopolskie, Kraków, Prądnik Biały
Opis nieruchomości
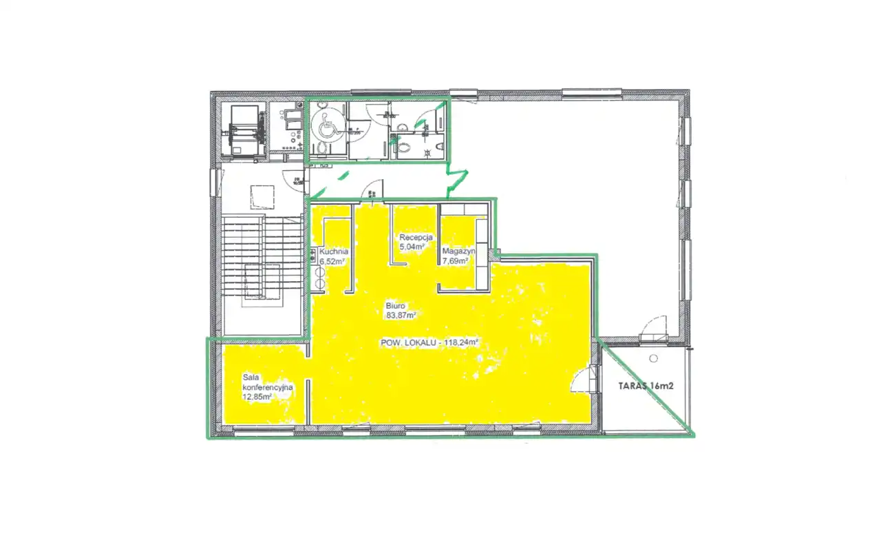
Do wynajęcia nowoczesny lokal biurowo - usługowy o powierzchni 134m2 znajdujący się na drugim piętrze z windą.
Powierzchnia składa się z przestrzeni open space ( 84m2) z możliwością podziału na gabinety , sali konferencyjnej (13m2), recepcji, magazynku i kuchni. Do wspólnej przestrzeni należy taras i toalety.
- jasny i zadbany lokal
- dowolna adaptacja bez zmian konstrukcyjnych
- atrakcyjna lokalizacja
- instalacja fotowoltaiczna
- teren ogrodzony i oświetlony
- cztery miejsca parkingowe jako opcja dodatkowa ( 200 zł netto za jedno miejsce )
- dostępny od 05.2026
Lokalizacja: Prądnik Biały, ul. Radzikowskiego
Koszt: 8563 zł netto (czynsz)+ media wg zużycia
Opłata eksploatacyjna 19zł netto m2 (2542,20 zł)
Masz więcej pytań? Chcesz obejrzeć? Zadzwoń!
Kontakt: Piotr Górak
tel: +48 797 320 933