Lokal na wynajem
9 500 zł
240 m2










1 / 10
Szczegóły ogłoszenia
- Symbol oferty ZEF-LW-1047
- Typ oferty lokal na wynajem
- Czynsz wynajmu 9 500 zł / miesiąc
- Charakterystyka mieszkania 240 m2
- Budynek biurowo-usługowy; rok budowy: 1995
- Rozkład mieszkania 3p piętro
- Media Ogrzewanie: C.O. miejskie
- Dojazd ASFALTOWA
- Instalacje dobre
- Kaucja do uzgodnienia
- Okna PCV
- Stan lokalu bardzo dobry
Lokalizacja
- Adres małopolskie, Kraków, Prądnik Biały
Opis nieruchomości
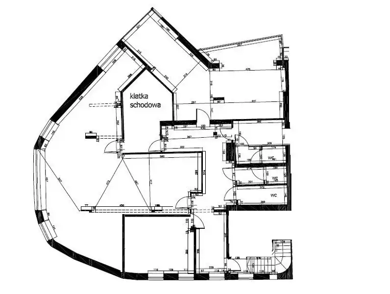
Lokal biurowo-usługowy 240 m2, Prądnik Biały ul. Opolska
Lokal 240 m2 znajduje się w budynku biurowo-usługowym na trzecim piętrze. Składa się z dużego pomieszczenia open-space , podwójnego gabinetu z możliwością podziału na pół, drugiego gabinetu , korytarza i trzech toalet. Do lokalu prowadza dwie klatki schodowe.
* Atrakcyjna lokalizacja
Lokalizacja: Prądnik Biały okolice ulicy Opolskiej
Cena: 9500 zł netto
Opłata eksploatacyjna: 1920 zł ( woda, ogrzewanie, śmieci)
Masz więcej pytań? Chcesz obejrzeć? Zadzwoń!
Kontakt: Piotr Górak
tel: +48 797 320 933
Lokal 240 m2 znajduje się w budynku biurowo-usługowym na trzecim piętrze. Składa się z dużego pomieszczenia open-space , podwójnego gabinetu z możliwością podziału na pół, drugiego gabinetu , korytarza i trzech toalet. Do lokalu prowadza dwie klatki schodowe.
* Atrakcyjna lokalizacja
* Dostępny od zaraz
* Dowolna adaptacja bez zmian konstrukcyjnych
* Klimatyzacja
* Możliwość wynajęcia pietra poniżej o takim samym metrażu.
=> Idealne na, usługi, kancelarie, biuro, call-center, sklep internetowy. * Dowolna adaptacja bez zmian konstrukcyjnych
* Klimatyzacja
* Możliwość wynajęcia pietra poniżej o takim samym metrażu.
Lokalizacja: Prądnik Biały okolice ulicy Opolskiej
Cena: 9500 zł netto
Opłata eksploatacyjna: 1920 zł ( woda, ogrzewanie, śmieci)
Masz więcej pytań? Chcesz obejrzeć? Zadzwoń!
Kontakt: Piotr Górak
tel: +48 797 320 933
Nota prawna
Opis oferty zawarty na stronie internetowej sporządzany jest na podstawie oględzin nieruchomości oraz informacji uzyskanych od właściciela, może podlegać aktualizacji i nie stanowi oferty określonej w art. 66 i następnych K.C.
Formularz kontaktowy