Mieszkanie na sprzedaż
1 049 000 zł
99 m2









1 / 9
Szczegóły ogłoszenia
- Symbol oferty POD-MS-37137
- Typ oferty mieszkanie na sprzedaż
- Cena 1 049 000 zł
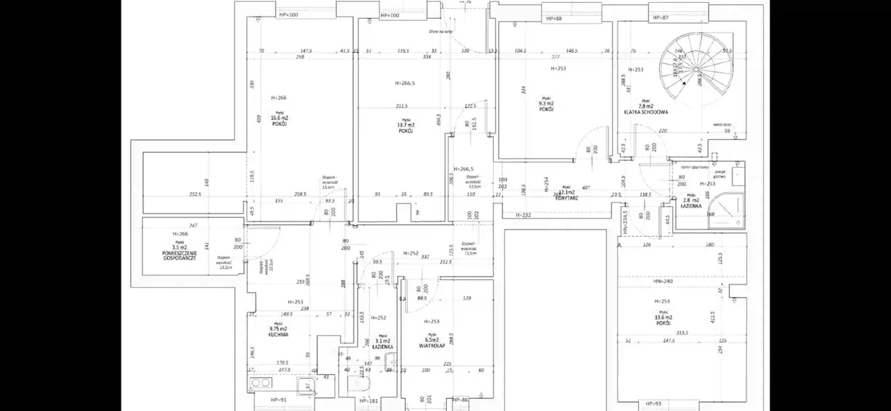
- Charakterystyka mieszkania 98.5 m2, 4 pokoje
- Budynek blok; rok budowy: 2003
- Rozkład mieszkania parter piętro
- Media Ogrzewanie: C.O. GAZOWE; Woda: piec gazowy dwufunkcyjny
- Balkon taras
- Czynsz Czynsz letni: 1500 zł
- Instalacje dobre
- Okna PCV
- Stan lokalu dobry
- Taras taras duży
- Technologia budowlana mieszana
Lokalizacja
- Adres Małopolskie, Kraków, Krowodrza
Opis nieruchomości
Zapraszam do zapoznania się z ofertą sprzedaży wyjątkowego mieszkania czteropokojowego przy ul. Kuźnicy Kołłątajowskiej (Górka Narodowa)
Mieszkanie:
- 4 pokoje, kuchnia, łazienka, osobna toaleta, spiżarnia oraz przedpokój
- dodatkowo 50,5 m2 pomieszczenie na poziomie -1 ( do wykorzystania według własnych potrzeb i pomysłów)
- taras 80m2
- stan dobry - do zamieszkania ewentualnie własnej aranżacji
- ogrzewanie i ciepła woda z pieca gazowego dwufunkcyjnego
Budynek i okolica:
- budynek z roku 2003, ogrodzony
- tuż przy przystanku tramwajowym i autobusowym
- pełna infrastruktura handlowo-usługowa na osiedlu
- placówki edukacyjne
- szybki dojazd do centrum miasta
Polecam i zapraszam na prezentację!
Mieszkanie:
- 4 pokoje, kuchnia, łazienka, osobna toaleta, spiżarnia oraz przedpokój
- dodatkowo 50,5 m2 pomieszczenie na poziomie -1 ( do wykorzystania według własnych potrzeb i pomysłów)
- taras 80m2
- stan dobry - do zamieszkania ewentualnie własnej aranżacji
- ogrzewanie i ciepła woda z pieca gazowego dwufunkcyjnego
Budynek i okolica:
- budynek z roku 2003, ogrodzony
- tuż przy przystanku tramwajowym i autobusowym
- pełna infrastruktura handlowo-usługowa na osiedlu
- placówki edukacyjne
- szybki dojazd do centrum miasta
Polecam i zapraszam na prezentację!
Nota prawna
Opis oferty zawarty na stronie internetowej sporządzany jest na podstawie oględzin nieruchomości oraz informacji uzyskanych od właściciela, może podlegać aktualizacji i nie stanowi oferty określonej w art. 66 i następnych K.C.
Kalkulator kredytowy
Formularz kontaktowy