Mieszkanie na sprzedaż
1 081 000 zł
43 m2





1 / 5
Szczegóły ogłoszenia
- Symbol oferty SBK-MS-19409
- Typ oferty mieszkanie na sprzedaż
- Cena 1 081 000 zł
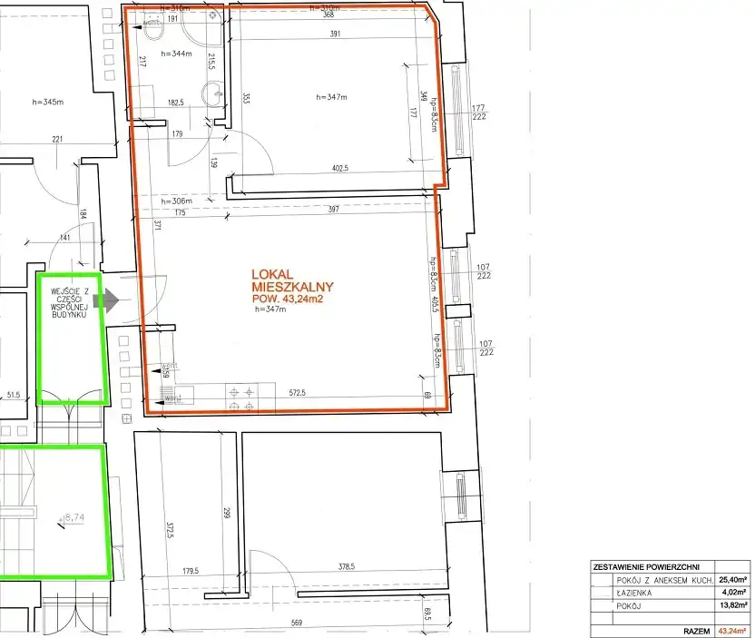
- Charakterystyka mieszkania 43.24 m2, 2 pokoje
- Budynek kamienica
- Rozkład mieszkania 2p piętro
- Media Ogrzewanie: C.O. miejskie; Woda: jest
- Dojazd asfalt
- Ilość sypialni 1
- Instalacje nowe
- Okna drewniane
- Otoczenie centrum miasta
- Winda Tak
Lokalizacja
- Adres małopolskie, Kraków, Stare Miasto
Opis nieruchomości
OFERUJEMY PAŃSTWU DO SPRZEDAŻY w stanie deweloperskim z możliwością wykończenia pod klucz mieszkanie o powierzchni 43m2 mieszczące się na II piętrze wyremontowanej kamienicy z windą w centrum Starego Miasta. Lokal składa się z salonu z aneksem kuchennym, sypialni i łazienki. Wyposażone jest w instalację elektryczną, wodno- kanalizacyjną, teletechniczną, instalację kanalizacji ogólnospławnej, instalację centralnego ogrzewania oraz ciepłej wody użytkowej opartych na własnej wymiennikowni MPEC, a także instalację. Wentylacja częściowo grawitacyjna, częściowo mechaniczna.
Budynek wybudowany w technologii tradycyjnej. Ławy fundamentowe betonowe, ściany fundamentowe – z cegły pełnej. Ściany nośne wszystkich kondygnacji nadziemnych murowane z cegły pełnej oraz z bloczków ceramicznych. Stropy - żelbetowe. Ścianki działowe w większości murowane, częściowo z płyt gipsowo-kartonowych, stolarka okienna w większości drewniana. Więźba dachowa drewniana, pokrycie dachu - blacha stalowa, powlekana na tzw „rąbek stojący”. Drzwi wejściowe do lokali - drewniane. W BUDYNKU KILKA INNYCH MIESZKAŃ O RÓŻNYM METRAŻU NA RÓŻNYCH PIĘTRACH. Doskonała lokalizacja i dobry dojazd w każdym kierunku miasta.
Budynek wybudowany w technologii tradycyjnej. Ławy fundamentowe betonowe, ściany fundamentowe – z cegły pełnej. Ściany nośne wszystkich kondygnacji nadziemnych murowane z cegły pełnej oraz z bloczków ceramicznych. Stropy - żelbetowe. Ścianki działowe w większości murowane, częściowo z płyt gipsowo-kartonowych, stolarka okienna w większości drewniana. Więźba dachowa drewniana, pokrycie dachu - blacha stalowa, powlekana na tzw „rąbek stojący”. Drzwi wejściowe do lokali - drewniane. W BUDYNKU KILKA INNYCH MIESZKAŃ O RÓŻNYM METRAŻU NA RÓŻNYCH PIĘTRACH. Doskonała lokalizacja i dobry dojazd w każdym kierunku miasta.
Polecam i zapraszam na prezentację.
Kontakt; Urszula Bugajska 530 260 261
Biuro Nieruchomości SZEMBEK EWA
GRODZKA 41
Powyższa oferta ma charakter informacyjny i nie stanowi oferty handlowej w rozumieniu Kodeksu Cywilnego oraz innych właściwych przepisów prawnych. Numer licencji pośrednika odpowiedzialnego zawodowo 2240
Nota prawna
Opis oferty zawarty na stronie internetowej sporządzany jest na podstawie oględzin nieruchomości oraz informacji uzyskanych od właściciela, może podlegać aktualizacji i nie stanowi oferty określonej w art. 66 i następnych K.C.
Kalkulator kredytowy
Formularz kontaktowy