Mieszkanie na sprzedaż
1 089 300 zł
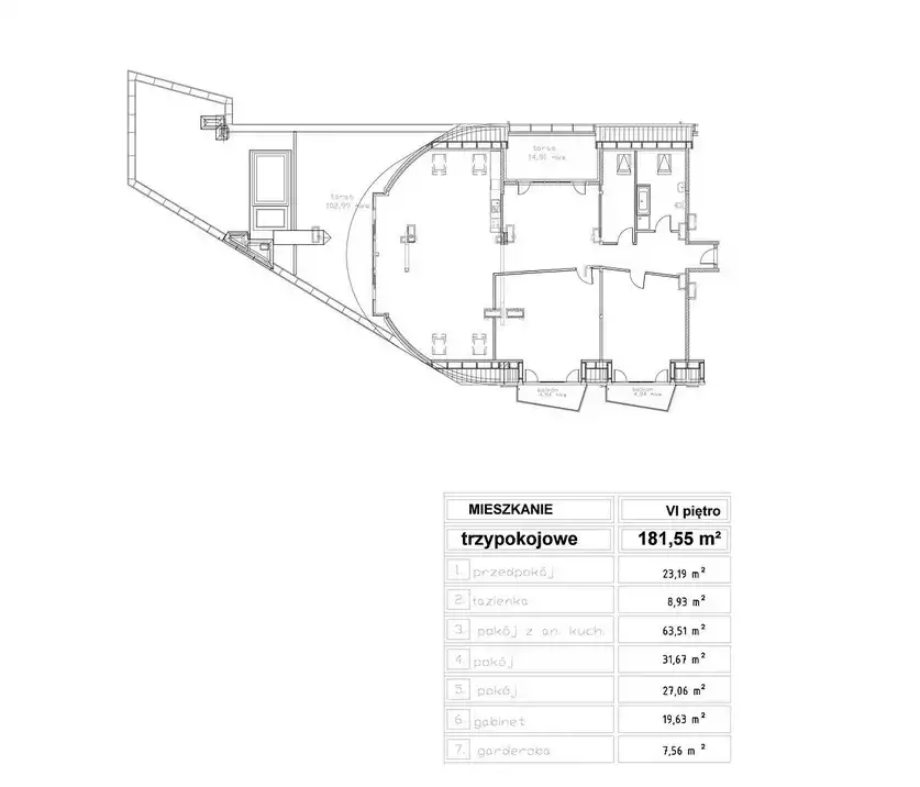
182 m2





1 / 5
Szczegóły ogłoszenia
- Symbol oferty DST-MS-575
- Typ oferty mieszkanie na sprzedaż
- Cena 1 089 300 zł
- Charakterystyka mieszkania 181.55 m2, 3 pokoje
- Budynek blok
- Rozkład mieszkania 6p piętro
- Media Ogrzewanie: miejskie
- Garaż miejsce parkingowe
- Instalacje nowe
- Okna nowe PCV
- Stan lokalu deweloperski
- Technologia budowlana żelbeton
- Winda Tak
Lokalizacja
- Adres małopolskie, Kraków, Krowodrza
Opis nieruchomości
Do sprzedania mieszkania w stanie deweloperskim położone w nowoczesnym 6 – kondygnacyjnym budynku przy ulicy Radzikowskiego – w bliskiej odległości od Rynku Głównego w Krakowie. W inwestycji znajdują się mieszkania o powierzchni od 27 m2 do 105 m2. Parter stanowią lokale usługowe. W budynku zaprojektowano prawie 90 mieszkań, od 1 do 4 pokojowych, każde mieszkanie będzie posiadać balkon lub taras. Mieszkania jasne, funkcjonalne, z możliwością własnej aranżacji układu pomieszczeń. Bardzo dobra lokalizacja, liczna komunikacja autobusowa, trochę dalej tramwajowa, blisko do Dworca Głównego w Krakowie, dobre połączenie z autostradą A4. Liczne sklepy, centra handlowe, szkoły, przedszkola, restauracje. Budynek będzie oddany do użytkowania w marcu 2016 r. SZCZEGÓŁOWE INFORMACJE O WSZYSTKICH INWESTYCJACH DEWELOPERSKICH Z KRAKOWA I OKOLIC (ok. 1500 mieszkań/ 49 Inwestycji ) ORAZ POMOC W UZYSKANIU KREDYTU - prosimy o kontakt telefoniczny. USŁUGI BIURA NIERUCHOMOŚCI ORAZ DORADZTWO KREDYTOWE - BEZPŁATNIE! Serdecznie zapraszamy!
Nota prawna
Opis oferty zawarty na stronie internetowej sporządzany jest na podstawie oględzin nieruchomości oraz informacji uzyskanych od właściciela, może podlegać aktualizacji i nie stanowi oferty określonej w art. 66 i następnych K.C.
Kalkulator kredytowy
Formularz kontaktowy