Mieszkanie na sprzedaż







Szczegóły ogłoszenia
- Symbol oferty ATM-MS-6030
- Typ oferty mieszkanie na sprzedaż
- Cena 1 090 000 zł
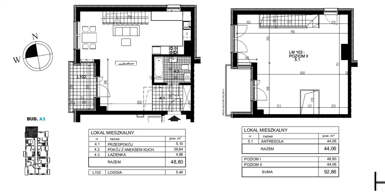
- Charakterystyka mieszkania 92.94 m2, 5 pokoi
- Budynek blok; rok budowy: 2025
- Rozkład mieszkania 4p piętro
- Media Ogrzewanie: C.O. miejskie; Woda: ciepła - miejska; Gaz: brak
- Balkon duży
- Dojazd asfalt
- Garaż miejsce parkingowe
- Ilość sypialni 4
- Instalacje nowe
- Okna PCV
- Otoczenie działki zabudowane
- Plac zabaw Tak
- Stan lokalu deweloperski
- Technologia budowlana beton, cegła
- Winda Tak
Lokalizacja
- Adres małopolskie, Kraków, Czyżyny
Opis nieruchomości
KRAKÓW - CZYŻYNY - UL. CENTRALNA
GOTOWE DO ODBIORU
please scroll down for english version...
NOWA CENA => RABAT 70TYS. ZŁ !!
Przedmiotem sprzedaży jest mieszkanie o powierzchni 92,94 m² (powierzchnia po inwentaryzacji powykonawczej, na rzucie pow. 92,86m2; dwa poziomy) z balkonem zlokalizowane na IV i V piętrze (budynek 5-piętrowy z windą). Mieszkanie w standardzie deweloperskim +.
ZAPRASZAMY NA PREZENTACJE - UMOWA NA WYŁĄCZNOŚĆ
(POSIADAMY KLUCZE DO MIESZKANIA)
- stan deweloperski +
- mieszkanie z antresolą (wydzielenie ścian wg własnej aranżacji, np. na górnym poziomie 2 sypialnie, gabinet/biuro, łazienka i garderoba)
- atrakcyjna lokalizacja - w najbliższej okolicy m.in. "Centrum Handlowe M1", "Park Lotników Polskich", "Łąki Nowohuckie", szkoła, przedszkole, żłobek, infrastruktura handlowo-usługowa, itp.
- teren monitorowany
- bardzo dobra komunikacja z centrum miasta
- 5 linii autobusowych
- szeroki balkon o pow. 5,44m²
- ekspozycja okien: zachód i północ
- wysokość mieszkań: 2,53m (obie kondygnacje)
- wysoki standard cieplny budynków (m.in. porotherm "25" + styropian grafitowy)
- wysoki standard inwestycji (drzwi zewnętrzne antywłamaniowe "Porta", okna trzyszybowe "Dako", windy cichobieżne, grzejniki, styropian akustyczny pomiędzy stropami, wysokiej klasy videodomofony, stanowiska do ładowania samochodów elektrycznych, oświetlenie i gniazdka także na balkonach itp.)
- ogrzewanie i ciepła woda z sieci miejskiej MPEC
- dwa szerokie miejsca postojowe w cenie 90.000zł
- komórka lokatorska o pow. 8,93m² w cenie 8.000zł
- niskie koszty utrzymania
- plac zabaw na terenie osiedla
- możliwość wykończenia mieszkania "pod klucz" w jednym z wielu wariantów wykończeniowych
CHCESZ WIEDZIEĆ WIĘCEJ NAPISZ LUB ZADZWOŃ
Opis oferty sporządzany jest na podstawie oględzin nieruchomości oraz informacji uzyskanych od Inwestora, może podlegać aktualizacji i nie stanowi oferty w rozumieniu art. 66 i następnych K.C.
Biuro Nieruchomości ALTAM
ul. Witosa 39 lok. E
30-612 Kraków
opiekun oferty: Krzysztof Warczak (licencja PwON: 22315)
tel. 534534918
mail: k.warczak@altam.com.pl
www.altam-nieruchomosci.com.pl
english version below:
NEW PRICE => DISCOUNT 70.000PLN !!
NEW APARTMENT (TWO-LEVELS)
CRACOW-CZYŻYNY - CENTRALNA STREET
APARTMENT READY FOR HANDOVER
The property for sale is a 92.94 m² apartment (two levels) with a balcony, located on the 4th and 5th floors of a five-storey building with an elevator. The apartment is in developer’s standard +.
ATTRACTIVE LOCATION AT A GOOD PRICE
WE INVITE YOU FOR A VIEWING - EXCLUSIVE AGREEMENT
(WE HAVE THE KEYS TO THE APARTMENT)
-
Developer’s standard +
-
Apartment with a mezzanine (partition walls can be arranged according to your own design; e.g., on the upper level: 2 bedrooms, office, bathroom, and walk-in closet)
-
Attractive location – nearby: M1 Shopping Centre, Park Lotników, Łąki Nowohuckie nature area, school, kindergarten, nursery, commercial and service infrastructure, etc.
-
Monitored area
-
Very good transport connection with the city center:
-
3 tram lines
-
5 bus lines
-
-
Wide balcony of 5.44 m²
-
Window exposure: west and north
-
Ceiling height: 2.53 m (both levels)
-
High thermal standard of the building (e.g., Porotherm 25 + graphite polystyrene)
-
High standard of the investment (anti-burglary entrance door Porta, triple-glazed windows Dako, silent elevators, radiators, acoustic polystyrene between floors, high-quality video intercoms, electric car charging stations, lighting and sockets also on balconies, etc.)
-
Heating and hot water from the municipal MPEC network
-
Two wide parking spaces at the price of PLN 90,000
-
Storage unit of 8.93 m² at the price of PLN 8,000
-
Low maintenance costs
-
Playground on the estate
-
Possibility of turnkey finishing in one of many design options
WANT TO KNOW MORE? WRITE OR CALL US
The description of the offer is based on an on-site inspection of the property and information provided by the developer. It is subject to updates and does not constitute an offer within the meaning of Article 66 and subsequent articles of the Civil Code.
ALTAM Real Estate Agency
ul. Witosa 39 lok. E
30-612 Krakow
the offer's supervisor: Krzysztof Warczak (license PwON No. 22315)
tel. 534534918
mail: k.warczak@altam.com.pl
www.altam-nieruchomosci.com.pl