Mieszkanie na sprzedaż








Szczegóły ogłoszenia
- Symbol oferty PAC-MS-9243
- Typ oferty mieszkanie na sprzedaż
- Cena 1 150 000 zł
- Charakterystyka mieszkania 122.8 m2, 5 pokoi
- Budynek apartamentowiec; rok budowy: 2025
- Rozkład mieszkania 1p piętro
- Media Ogrzewanie: C.O. GAZOWE; Woda: jest; Gaz: jest
- Balkon jest
- Dojazd ASFALTOWA
- Garaż miejsce postojowe
- Ilość sypialni 4
- Instalacje ELEKTRYCZNA, WODNA, GAZOWA
- Okna PCV 3 szyby, ciepły montaż
- Otoczenie zabudowa jednorodzinna
- Stan lokalu deweloperski
- Technologia budowlana tradycyjna murowana
Lokalizacja
- Adres małopolskie, Kraków, Prądnik Biały
Opis nieruchomości
!0 % PROWIZJI - BRAK DODATKOWYCH KOSZTÓW!
2 MIEJSCA POSTOJOWE W CENIE!
Do sprzedania atrakcyjne pięciopokojowe, dwupoziomowe mieszkanie D2 zlokalizowane na nowo budowanym osiedlu w Krakowie-Prądniku Białym, rejon Witkowice. Mieszkanie o pow. 122,8m2 usytuowane na I i II piętrze w 3-kondygnacyjnym budynku w zabudowie bliźniaczej. Nieruchomość położona na nowoczesnym, zamkniętym osiedlu, na które składa się 6 budynków mieszkalnych w zabudowie bliźniaczej. Teren inwestycji w pełni zagospodarowany. Lokal z przynależnym dużym balkonem o powierzchni około 18m2.
Brak czynszu administracyjnego, możliwość wydzielenia dwóch oddzielnych lokali z odrębnymi wejściami.
Media: prąd, woda, gaz, szambo + przygotowana instalacja pod kanalizację.
Mieszkanie sprzedawane w stanie deweloperskim obejmującym:
- podstawowy materiał budowlany: bloczki silikatowe,
- podwójna izolacja stropu, z wełną mineralną 30 cm oraz płytą GK,
- okna PCV 3-szybowe, gwarantujące doskonałą izolację termiczną i akustyczną,
- parapety zew.: stalowe,
- elewacja: tynk silikonowy,
- budynki ocieplone: styropian o gr. 20cm,
- drzwi wejściowe antywłamaniowe,
- pokrycie dachu: blachodachówka na rąbek,
- tynki wew.: maszynowe, gipsowe, utwardzane,
- ogrzewanie: gazowe, piec dwufunkcyjny,
- ogrzewanie podłogowe,
- zamontowane kasety pod rolety automatyczne,
- teren osiedla ogrodzony,
- balkon: płytki na dystansach z fugą + balustrady: stal nierdzewna,
- miejsca parkingowe oraz dojścia do mieszkań wyłożone kostką betonową,
- teren wokół budynków wyrównany, obsiany trawą,
- możliwość postawienia komórki lokatorskiej na terenie osiedla,
- możliwość dokupienia dodatkowego miejsca postojowego pod wiatą samochodową,
- światłowód.
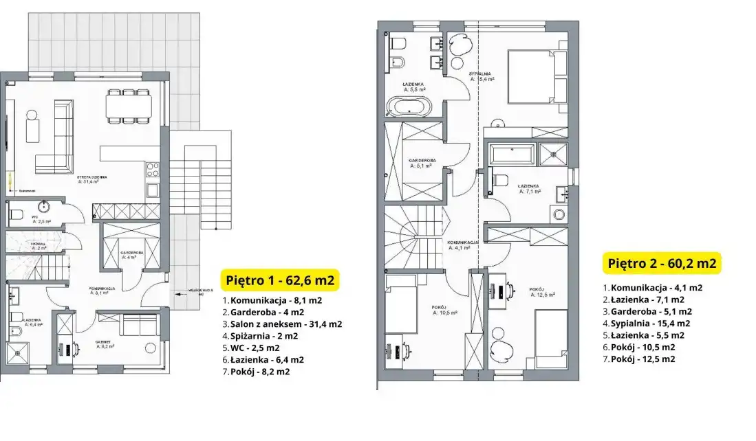
I piętro: komunikacja (8,1m2), garderoba (4m2), salon z aneksem (31,4m2), spiżarnia (2m2), WC (2,5m2), łazienka (6,4m2), pokój (8,2m2) - razem 62,6m2
II piętro: komunikacja (4,1m2), łazienka (7,1m2), garderoba (5,1m2), sypialnia (15,4m2), łazienka (5,5m2), pokój (10,5m2), pokój (12,5m2) - razem 60,2m2
LOKALIZACJA
Nieruchomość usytuowana w spokojnej okolicy w sąsiedztwie luźnej zabudowy domów jednorodzinnych. Dobra komunikacja z resztą miasta - przystanek MPK zaledwie 270m dalej. Nieopodal: żłobek, sklep, myjnia samochodowa, szkoła językowa, paczkomat (350m), gabinet kosmetyczny, klub fitness, fizjoterapia, Park Leśny Witkowice (2,5km), szkoła, kościół, gabinety lekarskie (2,8km). Ponadto komunikację usprawnia Północna Obwodnica Krakowa - ok. 2,5km
PLANOWANY ODBIÓR: czerwiec 2026 r.
Cena: 1.150.000 zł. Kupujący nie płaci 2 % podatku PCC.
Serdecznie polecamy i zachęcamy do bezpłatnej prezentacji !!! Więcej podobnych ofert na naszej stronie www.pacanowscy.pl Kontakt do opiekuna oferty: 503-604-108 Mieszko Pacanowski